Beds: 4
Baths: 1 Full

11 Third Avenue, Saint Peters, SA, 5069, Australia

Listed by: Eric Jem | Belle Property Australia

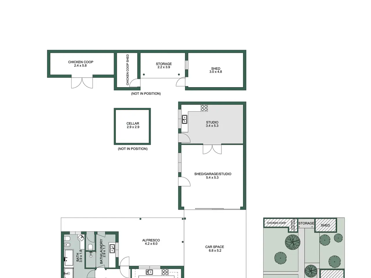
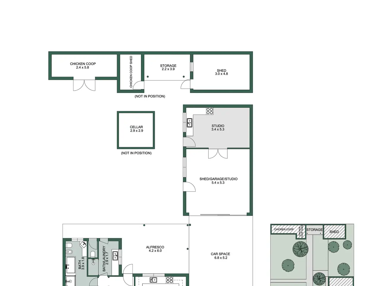
Historic character and a substantial landholding are the hallmarks of this circa 1900 villa, sure to capture your attention with its valuable prospects. Ready for renovation with ample space for a modern extension, visionary buyers will find distinguished original features to highlight, including the exquisite stone façade, lofty 3.3m ceilings (approx.) and a magnificent entry-hall archway. The layout offers the flexibility of four large bedrooms or three bedrooms and a formal lounge or dining room accompanying the semi-open connection between the oversized timber kitchen and the expansive living room. Generous wet areas provide a large bathroom plus an additional w/c and a shower in the laundry. And beyond the alfresco lies a big multi-purpose studio with kitchen facilities, garden sheds and a family-friendly backyard. The 920sqm allotment stamps its valuable footprint in prestigious St Peters, within walking distance of St Peter's College, Linear Park, Botanic Park and the city. Nestled on an idyllic, treelined street, this expansive residence presents 19.3m frontage with dual driveways facilitating easy access to separate carports accommodating up to four vehicles. - Charismatic C.1900 four-bedroom residence on 920sqm - 19.3m width x 47.9m depth - Invest, nest or renovate - Ducted reverse cycle air conditioning - Huge timber kitchen: stainless appliances, 900mm gas cooktop, dishwasher - Underground cellar - Four large bedrooms, one includes a ceiling fan - Large living area semi-open to the eat-in kitchen - Bathtub, shower, vanity, toilet and bidet - Large laundry with a second shower - Outside access to a second toilet - Undercover outdoor living - Dual entry driveways - Separate studio with kitchen facilities - Garden sheds and large backyard - Zoned East Adelaide School and Walkerville Primary School - Zoned Adelaide Botanic High School and Adelaide High School - Near St Peter's College, Wilderness School, Prince Alfred College - Close to local dining, shopping, entertainment and medical facilities RLA 285309
Show More Show Less

Historic character and a substantial landholding are the hallmarks of this circa 1900 villa, sure to capture your attention with its valuable prospects. Ready for renovation with ample space for a modern extension, visionary buyers will find distinguished original features to highlight, including the exquisite stone façade, lofty 3.3m ceilings (approx.) and a magnificent entry-hall archway. The layout offers the flexibility of four large bedrooms or three bedrooms and a formal lounge or dining room accompanying the semi-open connection between the oversized timber kitchen and the expansive living room. Generous wet areas provide a large bathroom plus an additional w/c and a shower in the laundry. And beyond the alfresco lies a big multi-purpose studio with kitchen facilities, garden sheds and a family-friendly backyard. The 920sqm allotment stamps its valuable footprint in prestigious St Peters, within walking distance of St Peter's College, Linear Park, Botanic Park and the city. Nestled on an idyllic, treelined street, this expansive residence presents 19.3m frontage with dual driveways facilitating easy access to separate carports accommodating up to four vehicles. - Charismatic C.1900 four-bedroom residence on 920sqm - 19.3m width x 47.9m depth - Invest, nest or renovate - Ducted reverse cycle air conditioning - Huge timber kitchen: stainless appliances, 900mm gas cooktop, dishwasher - Underground cellar - Four large bedrooms, one includes a ceiling fan - Large living area semi-open to the eat-in kitchen - Bathtub, shower, vanity, toilet and bidet - Large laundry with a second shower - Outside access to a second toilet - Undercover outdoor living - Dual entry driveways - Separate studio with kitchen facilities - Garden sheds and large backyard - Zoned East Adelaide School and Walkerville Primary School - Zoned Adelaide Botanic High School and Adelaide High School - Near St Peter's College, Wilderness School, Prince Alfred College - Close to local dining, shopping, entertainment and medical facilities RLA 285309

Highlights:

  • Exquisite stone façade

  • Lofty 3.3m ceilings

  • Magnificent entry-hall archway

  • Huge timber kitchen with stainless appliances

  • Underground cellar

  • Dual driveways

  • Separate studio with kitchen facilities

  • Garden sheds

  • Ducted reverse cycle air conditioning

  • Show More Show Less
  • Large backyard

Reference ID: 222P598165 Web ID: dguw

Listed by Eric Jem | Belle Property Australia

Contact by phone:  0417 885 888
Contact email form:

Highlights:

  • Exquisite stone façade

  • Lofty 3.3m ceilings

  • Magnificent entry-hall archway

  • Huge timber kitchen with stainless appliances

  • Underground cellar

  • Dual driveways

  • Separate studio with kitchen facilities

  • Garden sheds

  • Ducted reverse cycle air conditioning

  • Large backyard

Continue Exploring Related Collections