Beds: 5
Baths: 3 Full

40A College Road South, Riverview, NSW, 2066, Australia

Listed by: Simon Harrison | Belle Property Australia

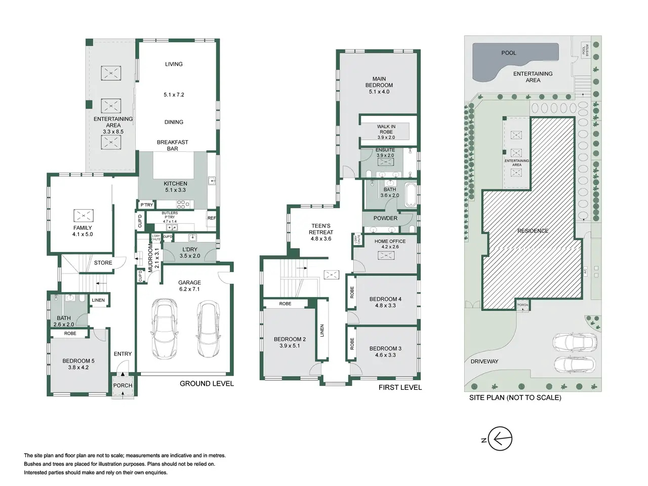
A substantial contemporary home nestled 300 metres from the prestigious St Ignatius College, this premium newly built property is the perfect fit for your executive household. Boasting privacy and luxury in abundance, it's truly impressive throughout – with multiple living areas plus an office or sixth bedroom, a gourmet kitchen complete with butler's pantry, and free-flowing entertainers' design providing a sublime day-to-day experience. Feel light-years away from the bustle, while enjoying easy access to CBD and North Sydney transport, York's Corner shops and Lane Cove village. - Chic classic meets magnificent modern in a blue-chip lifestyle locale - Sun-filled family room plus upstairs retreat, multiple family zones - Seamless stacking door connection to BBQ terrace, level yard and pool - Grand waterfall-edge stone breakfast island, European appliances - Master quarters with couple's ensuite; robe storage throughout - Beautiful high ceilings, large mud room, ducted A/C, double garage - Minutes to bus stops, parks, Lane Cove schools and Canopy precinct
Show More Show Less

A substantial contemporary home nestled 300 metres from the prestigious St Ignatius College, this premium newly built property is the perfect fit for your executive household. Boasting privacy and luxury in abundance, it's truly impressive throughout – with multiple living areas plus an office or sixth bedroom, a gourmet kitchen complete with butler's pantry, and free-flowing entertainers' design providing a sublime day-to-day experience. Feel light-years away from the bustle, while enjoying easy access to CBD and North Sydney transport, York's Corner shops and Lane Cove village. - Chic classic meets magnificent modern in a blue-chip lifestyle locale - Sun-filled family room plus upstairs retreat, multiple family zones - Seamless stacking door connection to BBQ terrace, level yard and pool - Grand waterfall-edge stone breakfast island, European appliances - Master quarters with couple's ensuite; robe storage throughout - Beautiful high ceilings, large mud room, ducted A/C, double garage - Minutes to bus stops, parks, Lane Cove schools and Canopy precinct

Highlights:

  • Stone waterfall-edge breakfast island

  • European appliances

  • Multiple living areas

  • Grand entrance with high ceilings

  • Entertainers' BBQ terrace

  • Private pool with seamless connection

  • Mud room

  • Ducted air conditioning

  • Double garage

  • Close to prestigious schools

  • Show More Show Less
Walk-Thru
Reference ID: 222P501747 Web ID: ojjc

Listed by Simon Harrison | Belle Property Australia

Contact by phone:  0433 100 150
Contact email form:

Highlights:

  • Stone waterfall-edge breakfast island

  • European appliances

  • Multiple living areas

  • Grand entrance with high ceilings

  • Entertainers' BBQ terrace

  • Private pool with seamless connection

  • Mud room

  • Ducted air conditioning

  • Double garage

  • Close to prestigious schools