Beds: 6
Baths: 5 Full

17733 Northwest Layla Drive, Portland, Oregon, 97229, USA

Listed by: Megan Talalemotu | John L. Scott Real Estate

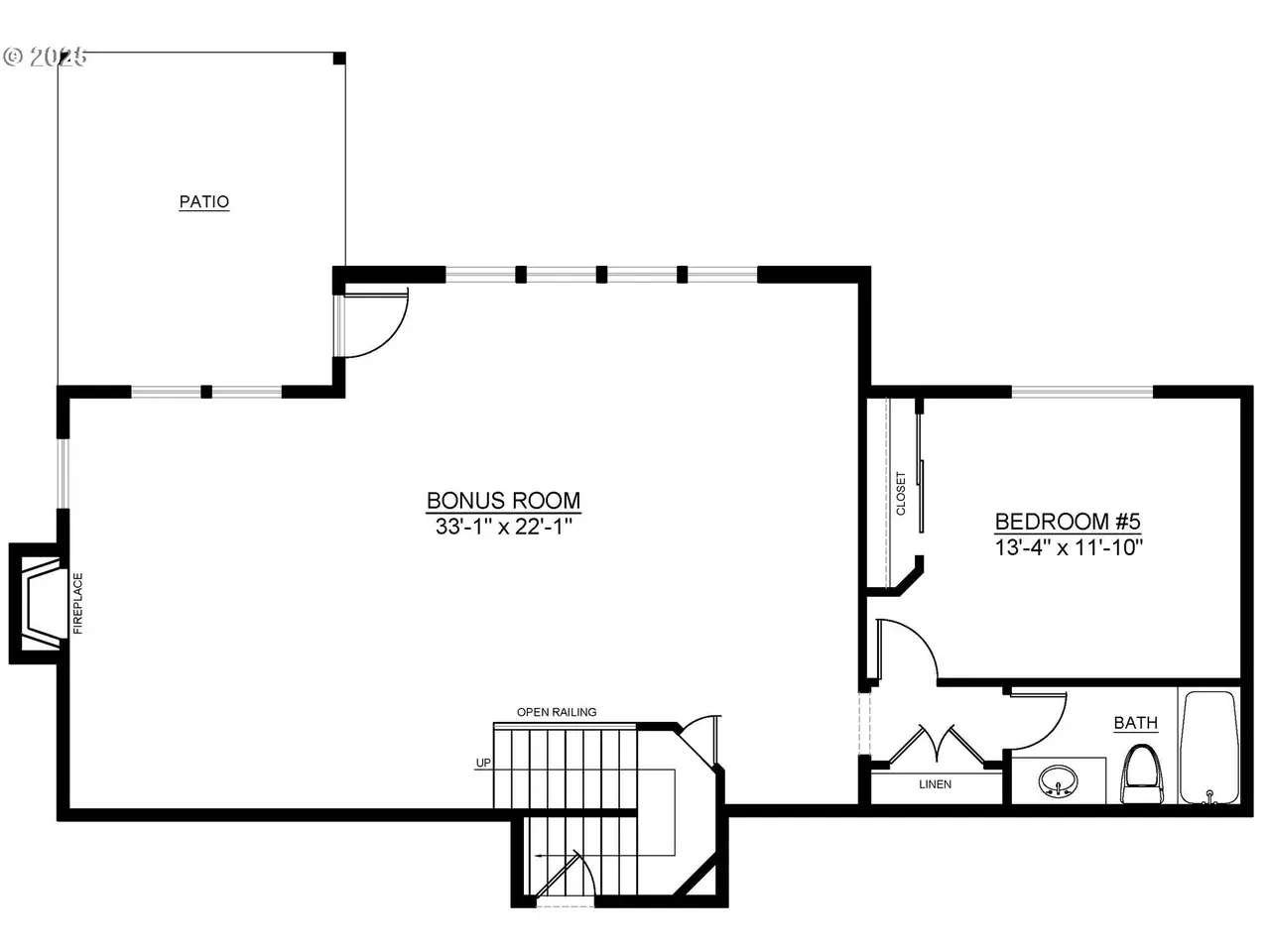
This Home has it all! Gorgeous Greenway with large yard, two story great room, Guest bedroom/bathroom suite on main, 3 car, separate living with bonus and additional guest suite, views, privacy... Come visit Noyes Development's BRAND NEW 65-Home Community in Bethany. Floor plans range 2500-4,500 sf. Highlights include guest suites, 3-car garages, greenspace views, and daylight basements. As a trusted local company, Noyes delivers high-performance homes that are Earth Advantage Platinum certified, Zero-Energy Ready, and exceed ENERGY STAR standards, all complemented by luxurious amenities and finishes. Noyes offers early buyers the exciting opportunity to customize & personalize their home. Collaborate with the talented interior design team to select finishes through a seamless, guided process at their in-house design center. Call Agents for Introductory Builder Promotion Details and to schedule a tour! Pictures are of a similar Noyes Home. This Fabulous Unique Floor plan is perfect for entertaining boasting two story great room, extensive wood floors, stunning tile face fireplace, gorgeous built ins, lots of windows! Stunning Gourmet Kitchen with large quartz slab Island, pantry, butlers pantry. Huge covered deck opening to Tree's & Greenspace. Guest bedroom/den on main with full bath, mini suite upstairs. Downstairs offers separate living and guest room w/bath suite. Noyes Development is a 17-time Earth Advantage Award winner, HBA Builder of the Year, Energy Star Market Leader, 6-time Oregon Home Magazine winner, Department of Energy ZER Award Winner, and recipient of Earth Advantage's Project of the Year.
Show More Show Less

This Home has it all! Gorgeous Greenway with large yard, two story great room, Guest bedroom/bathroom suite on main, 3 car, separate living with bonus and additional guest suite, views, privacy... Come visit Noyes Development's BRAND NEW 65-Home Community in Bethany. Floor plans range 2500-4,500 sf. Highlights include guest suites, 3-car garages, greenspace views, and daylight basements. As a trusted local company, Noyes delivers high-performance homes that are Earth Advantage Platinum certified, Zero-Energy Ready, and exceed ENERGY STAR standards, all complemented by luxurious amenities and finishes. Noyes offers early buyers the exciting opportunity to customize & personalize their home. Collaborate with the talented interior design team to select finishes through a seamless, guided process at their in-house design center. Call Agents for Introductory Builder Promotion Details and to schedule a tour! Pictures are of a similar Noyes Home. This Fabulous Unique Floor plan is perfect for entertaining boasting two story great room, extensive wood floors, stunning tile face fireplace, gorgeous built ins, lots of windows! Stunning Gourmet Kitchen with large quartz slab Island, pantry, butlers pantry. Huge covered deck opening to Tree's & Greenspace. Guest bedroom/den on main with full bath, mini suite upstairs. Downstairs offers separate living and guest room w/bath suite. Noyes Development is a 17-time Earth Advantage Award winner, HBA Builder of the Year, Energy Star Market Leader, 6-time Oregon Home Magazine winner, Department of Energy ZER Award Winner, and recipient of Earth Advantage's Project of the Year.

Highlights:

  • Custom cabinetry

  • Stunning tile face fireplace

  • Extensive wood floors

  • Gourmet kitchen with quartz slab island

  • Guest bedroom suite with full bath

  • Large covered deck with views

  • Separate living area

  • Daylight basement

  • High-performance home

  • Luxurious finishes

  • Show More Show Less
Reference ID: 549456385 Web ID: dhbl

Listed by Megan Talalemotu | John L. Scott Real Estate

Contact by phone:  503-936-0332
Contact email form:

Highlights:

  • Custom cabinetry

  • Stunning tile face fireplace

  • Extensive wood floors

  • Gourmet kitchen with quartz slab island

  • Guest bedroom suite with full bath

  • Large covered deck with views

  • Separate living area

  • Daylight basement

  • High-performance home

  • Luxurious finishes