Beds: 4
Baths: 3 Full

1 Nicholls Avenue, Haberfield, NSW, 2045, Australia

Listed by: Melissa Strazzeri | Belle Property Australia

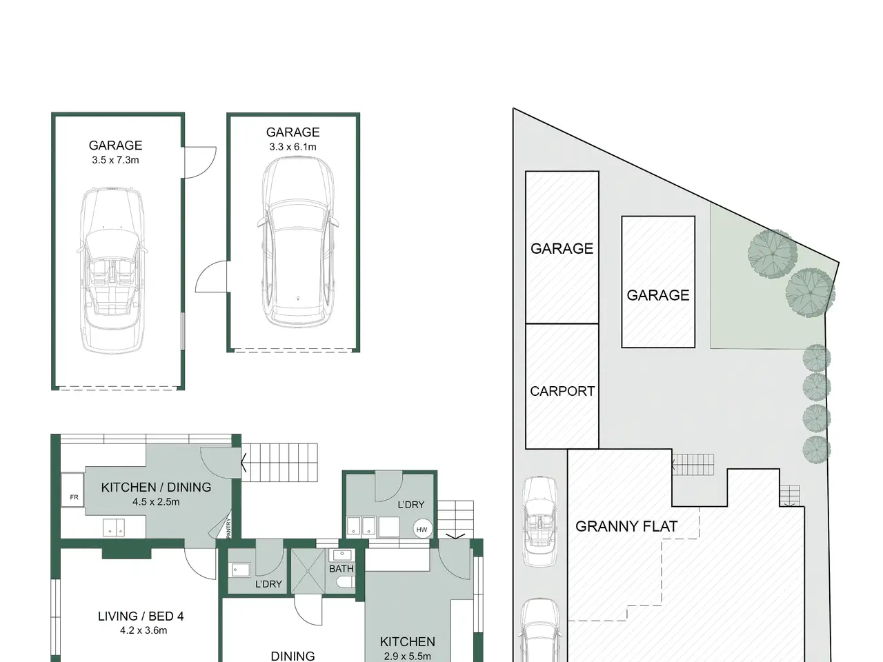
Positioned in a peaceful, tree-lined cul-de-sac in the heart of Haberfield, this much-loved family home presents an outstanding opportunity to secure a substantial property with enduring charm and exciting potential. Offered for the first time in decades, this elegant residence blends period character with comfortable proportions. Ideal for families seeking space and future flexibility, this single-level residence offers immediate livability with scope to renovate, extend or completely transform (STCA). Enjoy the unbeatable convenience of being just moments to Haberfield Village, Summer Hill Station, city buses, light rail, parks, and renowned local schools, all while enjoying the privacy of a quiet, tightly held street. - Wide frontage and beautifully maintained gardens - Spacious and sunlit interiors with high ceilings and timeless appeal - Multiple living and dining areas including formal and casual spaces - Modern timber kitchen with stainless steel appliances and dishwasher - Granny flat / studio, ideal for dual family living or future redesign - Expansive, fully fenced backyard perfect for kids, pets, or future extension - Two Lock-up garage's, covered carport, and additional off-street parking - Short stroll to village shops, transport, parks and local schools Disclaimer: The information provided has been prepared by Belle Property Drummoyne and/or its agents. While we strive for accuracy, we accept no responsibility for any errors or omissions. Interested parties should make their own enquiries and obtain independent advice.
Show More Show Less

Positioned in a peaceful, tree-lined cul-de-sac in the heart of Haberfield, this much-loved family home presents an outstanding opportunity to secure a substantial property with enduring charm and exciting potential. Offered for the first time in decades, this elegant residence blends period character with comfortable proportions. Ideal for families seeking space and future flexibility, this single-level residence offers immediate livability with scope to renovate, extend or completely transform (STCA). Enjoy the unbeatable convenience of being just moments to Haberfield Village, Summer Hill Station, city buses, light rail, parks, and renowned local schools, all while enjoying the privacy of a quiet, tightly held street. - Wide frontage and beautifully maintained gardens - Spacious and sunlit interiors with high ceilings and timeless appeal - Multiple living and dining areas including formal and casual spaces - Modern timber kitchen with stainless steel appliances and dishwasher - Granny flat / studio, ideal for dual family living or future redesign - Expansive, fully fenced backyard perfect for kids, pets, or future extension - Two Lock-up garage's, covered carport, and additional off-street parking - Short stroll to village shops, transport, parks and local schools Disclaimer: The information provided has been prepared by Belle Property Drummoyne and/or its agents. While we strive for accuracy, we accept no responsibility for any errors or omissions. Interested parties should make their own enquiries and obtain independent advice.

Highlights:

  • Wide frontage and beautifully maintained gardens

  • High ceilings and timeless appeal

  • Granny flat / studio for dual family living

  • Expansive, fully fenced backyard for kids and pets

  • Modern timber kitchen with stainless steel appliances

  • Multiple living and dining areas

  • Two lock-up garages and covered carport

  • Sunlit interiors with spacious layout

  • Ideal location in a peaceful cul-de-sac

  • Short stroll to village shops, parks, and schools

  • Show More Show Less
Walk-Thru
Reference ID: 59P2321 Web ID: qjoe

Listed by Melissa Strazzeri | Belle Property Australia

Contact by phone:  0410 336 795
Contact email form:

Highlights:

  • Wide frontage and beautifully maintained gardens

  • High ceilings and timeless appeal

  • Granny flat / studio for dual family living

  • Expansive, fully fenced backyard for kids and pets

  • Modern timber kitchen with stainless steel appliances

  • Multiple living and dining areas

  • Two lock-up garages and covered carport

  • Sunlit interiors with spacious layout

  • Ideal location in a peaceful cul-de-sac

  • Short stroll to village shops, parks, and schools