Beds: 7
Baths: 4 Full

9 Namba Road, Duffys Forest, NSW, 2084, Australia

Listed by: Stephen Allen | Belle Property Australia

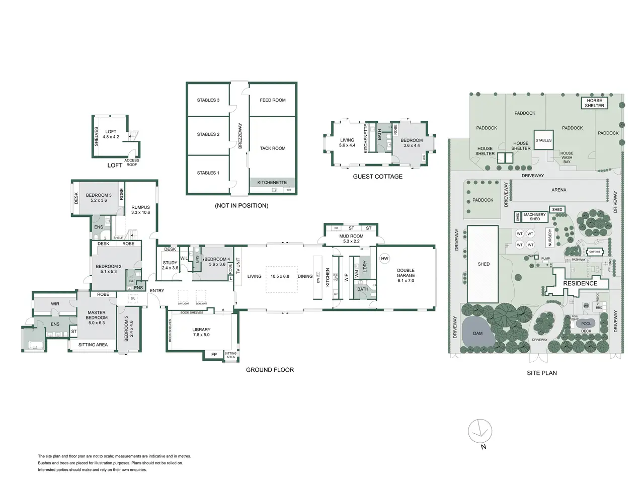
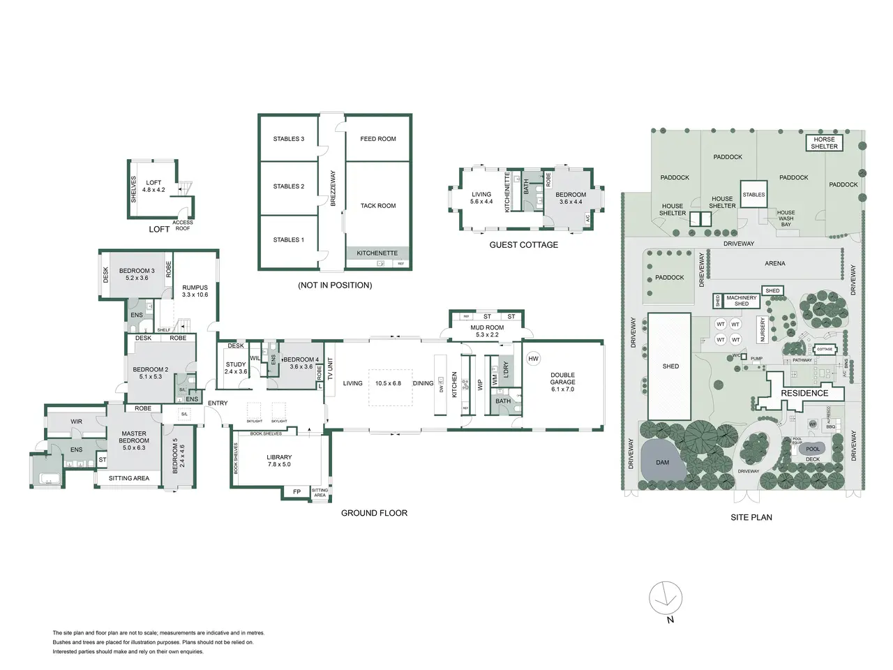
Encompassing five acres, this property is clearly one of the most captivating country retreats on the Northern Beaches; the residence is exquisite - the layout, dimension and quality of this home and its grounds are of rare calibre. Designed by Pettit + Sevitt in the late 60s, it's been brilliantly updated and expanded to embrace the way we live now; sited with a perfect north/south aspect, its low-slung profile and the clean geometry of the architecture merge entirely with sun-dappled gardens, vast stone terraces and saltwater pool – it's an extraordinary entertainer. The free-flowing, single-level design reveals a refined collection of living zones including a second sunken lounge/library, an expansive family room joined by a versatile loft space, and either one or two home offices; each of the double bedrooms enjoys a private ensuite. Weekend visitors or extended family are easily accommodated with a lovely guest cottage just behind the main residence. The private drive winds through the property and its bucolic gardens to a series of lush green paddocks, vintage hay shed, stabling for four horses and a dressage arena. Additional highlights include a large machinery shed with four bays, workshop shed, 80,000L storm water retention tank, dam, 20kw solar power and three gated entrances with full video security systems; this is an impeccably maintained acreage. An extraordinary estate by every measure, with equine facilities to match, this is the ultimate in resort-style living in an exceptionally private setting – just moments from local shops, private and public schools plus a fabulous choice of iconic beaches. - Unique and exceptionally private where lifestyle reigns supreme - Tucked beautifully into the site, creating a sense of unity and flow - Stunning 5-acre property; residence boasts a perfect north aspect - Contemporary design highlights integrated, glass-wrapped interiors - Sunlit saltwater pool, expansive stone terracing and dining cabana - Open plan living plus sunken lounge/library and generous family room - Purpose-built home office, all bedrooms with ensuites and built-ins - Lavish master retreat with walk-in robe, dressing room, luxe ensuite - Custom-designed island kitchen; imported appliances and vast pantry - Separate guest cottage is fully self-contained; borders the gardens - Wisteria-covered walkways, established fruit trees and vege gardens - Spotted gum + tumbled travertine floors, ducted climate control - Full equine facilities: five paddocks, four stables + dressage arena - Hay shed, 20kw solar, commercial shed with four double-height bays - 80,000L water tanks fed by dam; also connected to town water supply - Automatically irrigated property and gated security on each entrance
Show More Show Less

Encompassing five acres, this property is clearly one of the most captivating country retreats on the Northern Beaches; the residence is exquisite - the layout, dimension and quality of this home and its grounds are of rare calibre. Designed by Pettit + Sevitt in the late 60s, it's been brilliantly updated and expanded to embrace the way we live now; sited with a perfect north/south aspect, its low-slung profile and the clean geometry of the architecture merge entirely with sun-dappled gardens, vast stone terraces and saltwater pool – it's an extraordinary entertainer. The free-flowing, single-level design reveals a refined collection of living zones including a second sunken lounge/library, an expansive family room joined by a versatile loft space, and either one or two home offices; each of the double bedrooms enjoys a private ensuite. Weekend visitors or extended family are easily accommodated with a lovely guest cottage just behind the main residence. The private drive winds through the property and its bucolic gardens to a series of lush green paddocks, vintage hay shed, stabling for four horses and a dressage arena. Additional highlights include a large machinery shed with four bays, workshop shed, 80,000L storm water retention tank, dam, 20kw solar power and three gated entrances with full video security systems; this is an impeccably maintained acreage. An extraordinary estate by every measure, with equine facilities to match, this is the ultimate in resort-style living in an exceptionally private setting – just moments from local shops, private and public schools plus a fabulous choice of iconic beaches. - Unique and exceptionally private where lifestyle reigns supreme - Tucked beautifully into the site, creating a sense of unity and flow - Stunning 5-acre property; residence boasts a perfect north aspect - Contemporary design highlights integrated, glass-wrapped interiors - Sunlit saltwater pool, expansive stone terracing and dining cabana - Open plan living plus sunken lounge/library and generous family room - Purpose-built home office, all bedrooms with ensuites and built-ins - Lavish master retreat with walk-in robe, dressing room, luxe ensuite - Custom-designed island kitchen; imported appliances and vast pantry - Separate guest cottage is fully self-contained; borders the gardens - Wisteria-covered walkways, established fruit trees and vege gardens - Spotted gum + tumbled travertine floors, ducted climate control - Full equine facilities: five paddocks, four stables + dressage arena - Hay shed, 20kw solar, commercial shed with four double-height bays - 80,000L water tanks fed by dam; also connected to town water supply - Automatically irrigated property and gated security on each entrance

Highlights:

  • Stone terraces

  • Saltwater pool

  • Guest cottage with gardens

  • Equine facilities: stables, paddocks, dressage arena

  • 80,000L water tanks

  • Commercial shed with double-height bays

  • Automated irrigation

  • Integrated glass-wrapped interiors

  • Lavish master retreat

  • Show More Show Less
Walk-Thru
Reference ID: 62P35213 Web ID: hruj

Listed by Stephen Allen | Belle Property Australia

Contact by phone:  0402 359 710
Contact email form:

Highlights:

  • Stone terraces

  • Saltwater pool

  • Guest cottage with gardens

  • Equine facilities: stables, paddocks, dressage arena

  • 80,000L water tanks

  • Commercial shed with double-height bays

  • Automated irrigation

  • Integrated glass-wrapped interiors

  • Lavish master retreat

Continue Exploring Related Collections