Beds: 7
Baths: 7 Full

7 Kerami Crescent, Marysville, VIC, 3779, Australia

Listed by: James Moss | Belle Property Australia

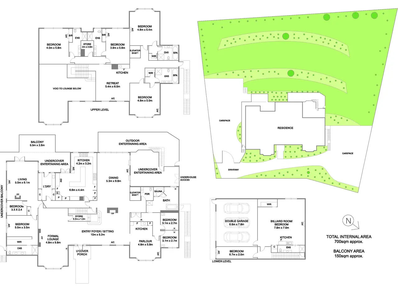
A carefully considered rebuild of the original art deco Kerami Guest House, lost to the 2009 Black Saturday fires, has resulted in Kerami Manor. A standout example of triumph over tragedy, period grandeur and contemporary finesse unite in elegant surrounds, creating a breathtaking family home or a brilliant weekender. Currently a well credentialled and popular getaway with an exceptional reputation for outstanding luxury and lifestyle, it will also suit astute buyers seeking the best of both worlds…. a walk-in walk-out opportunity for those looking to combine business with pleasure and enjoy a lifestyle change while receiving an income. Unrivalled within the district in heritage, prestige or magnitude, every detail has been beautifully crafted, retaining the home's architectural integrity and exuding a sophisticated presence across three expansive, flexible levels. Set to instantly captivate, the introduction is by way of a double height foyer, flooded with natural light and garnished with bespoke designer lighting. Every level is enhanced by premium quality floor coverings, window treatments, and luxury fittings, fixtures and finishes. The lower ground floor introduces two bedrooms, one large enough to work as a billiard/games room and a deluxe ensuite bathroom. The entry level is currently configured with huge formal lounge (OFP), sitting area (OFP) merging seamlessly with an expansive formal dining, living room, parlour with stone finished bar fitted with fridges, and a total of four bedrooms sharing two luxury bathrooms. A large stone finished, fitted laundry complements a striking commercial grade kitchen. Completed in white cabinetry under black stone tops and showcasing multiple dishwashers, along with three single and one double oven, it will cope with any event with stylish, sophisticated ease. Gathered around a first floor living area are four further bedrooms all served by individual, hotel inspired ensuite bathrooms…two of which feature indulgent spa-baths. Multiple decked alfresco spaces, all with views over Marysville, and a three-car garage round out an exceptional opportunity, a short walk from the Village and an easy drive to Lake Mountain.
Show More Show Less

A carefully considered rebuild of the original art deco Kerami Guest House, lost to the 2009 Black Saturday fires, has resulted in Kerami Manor. A standout example of triumph over tragedy, period grandeur and contemporary finesse unite in elegant surrounds, creating a breathtaking family home or a brilliant weekender. Currently a well credentialled and popular getaway with an exceptional reputation for outstanding luxury and lifestyle, it will also suit astute buyers seeking the best of both worlds…. a walk-in walk-out opportunity for those looking to combine business with pleasure and enjoy a lifestyle change while receiving an income. Unrivalled within the district in heritage, prestige or magnitude, every detail has been beautifully crafted, retaining the home's architectural integrity and exuding a sophisticated presence across three expansive, flexible levels. Set to instantly captivate, the introduction is by way of a double height foyer, flooded with natural light and garnished with bespoke designer lighting. Every level is enhanced by premium quality floor coverings, window treatments, and luxury fittings, fixtures and finishes. The lower ground floor introduces two bedrooms, one large enough to work as a billiard/games room and a deluxe ensuite bathroom. The entry level is currently configured with huge formal lounge (OFP), sitting area (OFP) merging seamlessly with an expansive formal dining, living room, parlour with stone finished bar fitted with fridges, and a total of four bedrooms sharing two luxury bathrooms. A large stone finished, fitted laundry complements a striking commercial grade kitchen. Completed in white cabinetry under black stone tops and showcasing multiple dishwashers, along with three single and one double oven, it will cope with any event with stylish, sophisticated ease. Gathered around a first floor living area are four further bedrooms all served by individual, hotel inspired ensuite bathrooms…two of which feature indulgent spa-baths. Multiple decked alfresco spaces, all with views over Marysville, and a three-car garage round out an exceptional opportunity, a short walk from the Village and an easy drive to Lake Mountain.

Highlights:

  • Bespoke designer lighting

  • Premium quality floor coverings

  • Stone finished bar with fridges

  • Commercial grade kitchen

  • Indulgent spa-baths

  • Multiple decked alfresco spaces

  • Show More Show Less
Walk-Thru
Reference ID: 222P480299 Web ID: yizk

Listed by James Moss | Belle Property Australia

Contact by phone:  0418 333 676
Contact email form:

Highlights:

  • Bespoke designer lighting

  • Premium quality floor coverings

  • Stone finished bar with fridges

  • Commercial grade kitchen

  • Indulgent spa-baths

  • Multiple decked alfresco spaces

Continue Exploring Related Collections