Beds: 4
Baths: 3 Full

7513 Twining Drive, Knoxville, Tennessee, 37919, USA

Listed by: CRYE-LEIKE Real Estate Services

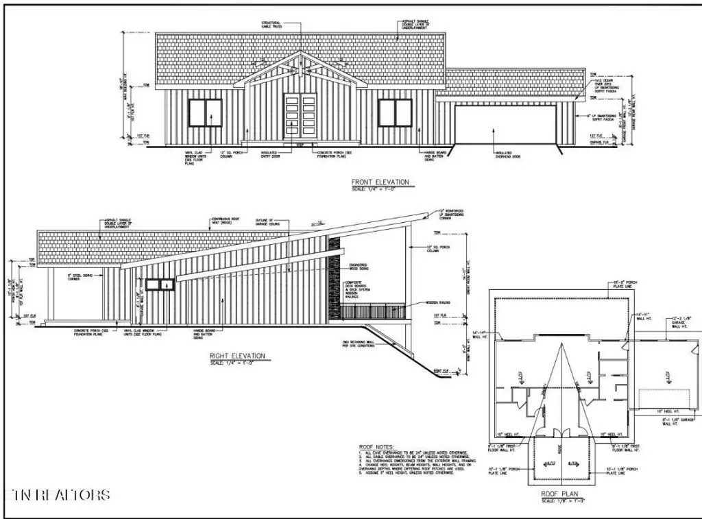
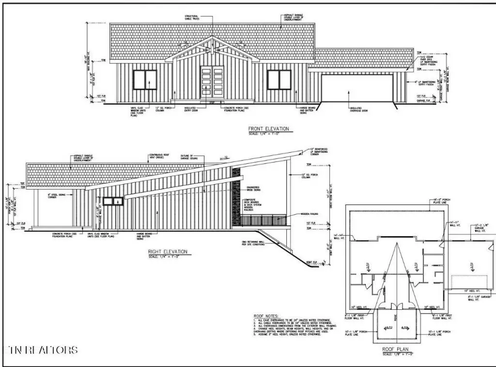
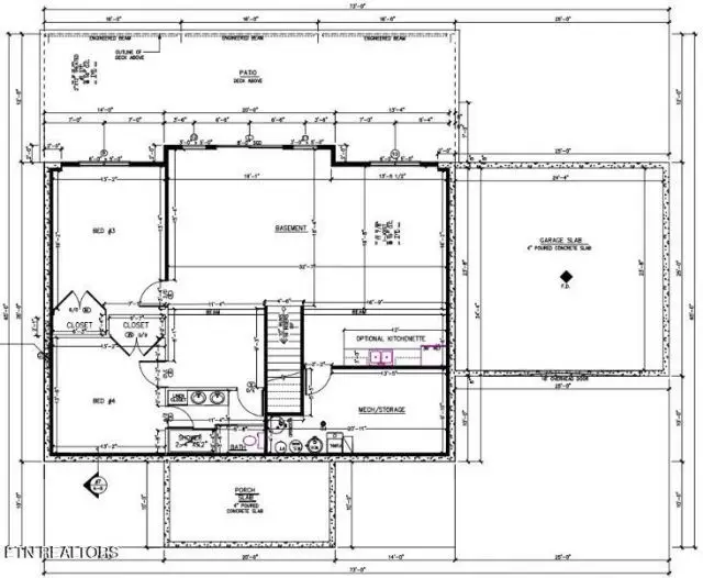
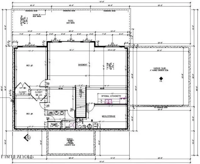
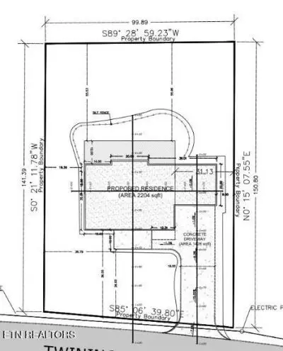
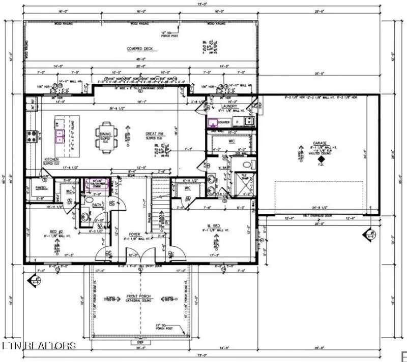
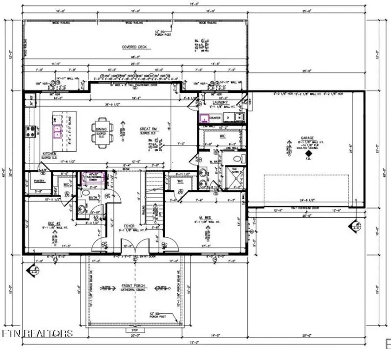
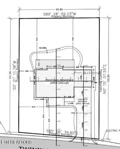
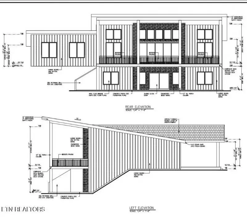
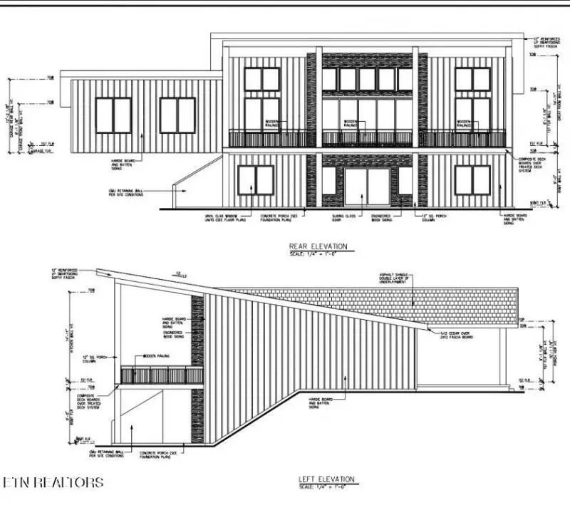
Currently Under Construction! Drywall very soon! November 2025 Completion! Fantastic Charming Modern Home with Incredible Floor Plan has 4 Bedrooms and 3 Bathrooms, Extra Square Feet (over 3000), and a 2 Car Garage. The Main floor contains Open Kitchen / Dining / Living areas the width of the home, Main Floor Primary Bedroom and Laundry, and features Soaring Vaulted Ceiling rising from the front of house to the rear Wall of Windows. The Fully Finished Lower Level has 9 Foot Ceilings, 2 Additional Bedrooms, and Spectacular Den / Bonus Room with Kitchenette. Both levels have walk-out Outdoor space with an Amazing Covered Deck on the upper level and Covered Patio on the lower level. Extra precision has been given to ensure very high-end construction from the foundation to the finishes. From the Insulated Concrete Forms for extra Energy Efficiency to the Modern Slim Shaker Cabinets and 8 Foot Doors throughout, there are too many upgrades to list. This lot backs up to an undevelopable lot due to a natural spring, so a beautiful tree view is always expected. Convenient location in walk-able friendly neighborhood is close to some of the best Parks, Shopping, and Schools in the region. Additional concept photos and building specs available upon request.
Show More Show Less

Currently Under Construction! Drywall very soon! November 2025 Completion! Fantastic Charming Modern Home with Incredible Floor Plan has 4 Bedrooms and 3 Bathrooms, Extra Square Feet (over 3000), and a 2 Car Garage. The Main floor contains Open Kitchen / Dining / Living areas the width of the home, Main Floor Primary Bedroom and Laundry, and features Soaring Vaulted Ceiling rising from the front of house to the rear Wall of Windows. The Fully Finished Lower Level has 9 Foot Ceilings, 2 Additional Bedrooms, and Spectacular Den / Bonus Room with Kitchenette. Both levels have walk-out Outdoor space with an Amazing Covered Deck on the upper level and Covered Patio on the lower level. Extra precision has been given to ensure very high-end construction from the foundation to the finishes. From the Insulated Concrete Forms for extra Energy Efficiency to the Modern Slim Shaker Cabinets and 8 Foot Doors throughout, there are too many upgrades to list. This lot backs up to an undevelopable lot due to a natural spring, so a beautiful tree view is always expected. Convenient location in walk-able friendly neighborhood is close to some of the best Parks, Shopping, and Schools in the region. Additional concept photos and building specs available upon request.

Highlights:

  • Custom cabinetry

  • Covered balcony

  • Finished basement with patio

  • Open concept living

  • Large bonus room

  • Show More Show Less
Walk-Thru
Reference ID: 1297121 Web ID: lqeo

Contact Agent | CRYE-LEIKE Real Estate Services

Contact email form:

Highlights:

  • Custom cabinetry

  • Covered balcony

  • Finished basement with patio

  • Open concept living

  • Large bonus room