Beds: 5
Baths: 1 Full | 1 Half

11776 Perry Street, Westminster, Colorado, 80031, USA

Listed by: Vesta Homes | Kentwood Real Estate

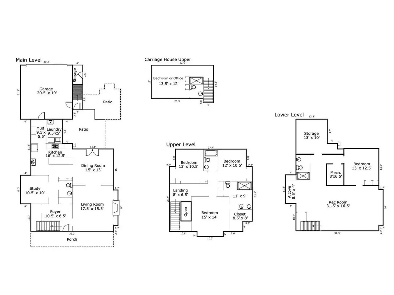
www.11776Perry.com - Located on Bradburn Green in the idyllic Bradburn Village, this Craftsman-style home was previously featured on the cover of 5280 Magazine and includes a carriage house! Don't miss your chance to own one of the first, and few, truly custom homes in this neighborhood. The inviting covered front porch with wood beams welcome you into a home filled with natural light, hardwood floors, and beautiful millwork throughout. The spacious open floor plan connects the living room complete with built-ins and a gas fireplace to the elegant dining room and updated kitchen. The kitchen features new Quartz countertops, white shaker cabinets, stainless steel appliances, a gas range, and direct access to a private patio and garden area, perfect for entertaining. The main floor office with French doors and built-ins is ideal for a secluded and quiet work space. A stylish powder room, mudroom, and oversized laundry room with utility sink and dog door add convenience on the main floor. Upstairs, a luxurious primary suite includes a walk-in closet with built-ins and a newly renovated spa-like bathroom with heated floors, a large walk-in shower, towel warmer, and extra storage. Two additional bedrooms with large closets and a full bath complete the second level. The finished basement offers a large bonus room, a fourth bedroom, a bathroom with slate flooring and storage room. A carriage house with a private entrance located above the detached garage is stylishly appointed with floor-to-ceiling bookcases, and features a full bath ideal for a guest suite or home office. Recent upgrades include new stucco system, new exterior paint, newer roof and refinished wood floors. Bradburn Village truly offers it all with a neighborhood pool, tennis/basketball court and clubhouse conveniently located to dining and retail along with access to recreation centers, trails and open space.
Show More Show Less

www.11776Perry.com - Located on Bradburn Green in the idyllic Bradburn Village, this Craftsman-style home was previously featured on the cover of 5280 Magazine and includes a carriage house! Don't miss your chance to own one of the first, and few, truly custom homes in this neighborhood. The inviting covered front porch with wood beams welcome you into a home filled with natural light, hardwood floors, and beautiful millwork throughout. The spacious open floor plan connects the living room complete with built-ins and a gas fireplace to the elegant dining room and updated kitchen. The kitchen features new Quartz countertops, white shaker cabinets, stainless steel appliances, a gas range, and direct access to a private patio and garden area, perfect for entertaining. The main floor office with French doors and built-ins is ideal for a secluded and quiet work space. A stylish powder room, mudroom, and oversized laundry room with utility sink and dog door add convenience on the main floor. Upstairs, a luxurious primary suite includes a walk-in closet with built-ins and a newly renovated spa-like bathroom with heated floors, a large walk-in shower, towel warmer, and extra storage. Two additional bedrooms with large closets and a full bath complete the second level. The finished basement offers a large bonus room, a fourth bedroom, a bathroom with slate flooring and storage room. A carriage house with a private entrance located above the detached garage is stylishly appointed with floor-to-ceiling bookcases, and features a full bath ideal for a guest suite or home office. Recent upgrades include new stucco system, new exterior paint, newer roof and refinished wood floors. Bradburn Village truly offers it all with a neighborhood pool, tennis/basketball court and clubhouse conveniently located to dining and retail along with access to recreation centers, trails and open space.

Highlights:

  • Gas fireplace with built-ins

  • Quartz countertops and white shaker cabinets

  • Heated floors in spa-like bathroom

  • Carriage house with floor-to-ceiling bookcases

  • Private patio and garden area

  • French doors leading to main floor office

  • Mudroom with built-ins

  • Neighborhood pool and clubhouse

  • Walk-in closet with built-ins in primary suite

  • Finished basement with large bonus room

  • Show More Show Less
Reference ID: 6980063 Web ID: rpzj

Listed by Vesta Homes | Kentwood Real Estate

Contact email form:

Highlights:

  • Gas fireplace with built-ins

  • Quartz countertops and white shaker cabinets

  • Heated floors in spa-like bathroom

  • Carriage house with floor-to-ceiling bookcases

  • Private patio and garden area

  • French doors leading to main floor office

  • Mudroom with built-ins

  • Neighborhood pool and clubhouse

  • Walk-in closet with built-ins in primary suite

  • Finished basement with large bonus room