Beds: 3
Baths: 3 Full

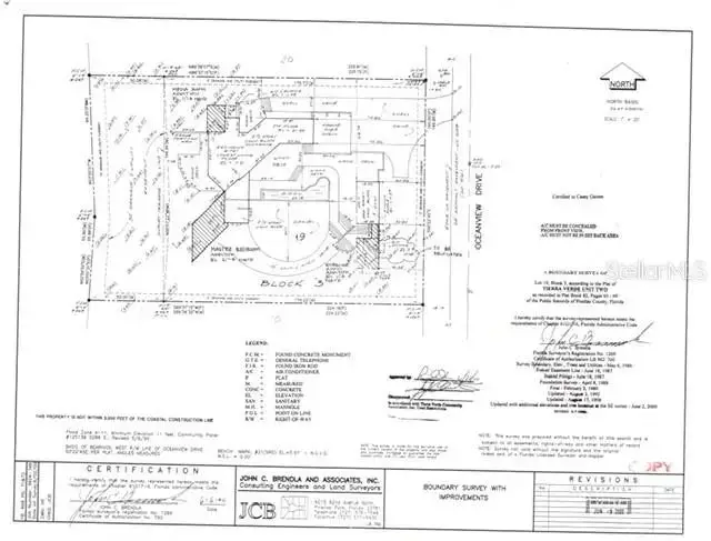
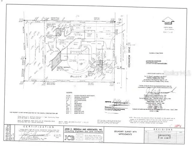
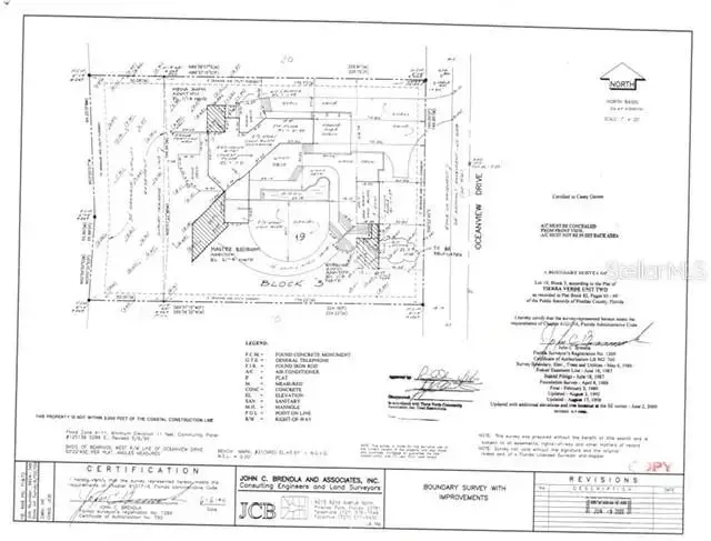
1761 Oceanview Drive, St. Petersburg, Florida, 33715, USA

Listed by: Liz Heinkel | Smith & Associates Real Estate

Enjoy modern coastal living on your own private waterfront beach with exquisite, unobstructed open water views of the Gulf of Mexico. Situated on nearly an acre with the prestigious Oceanview Drive address of Tierra Verde, this architecturally unique waterfront residence offers a wonderful opportunity to create your dream home in one of Tampa Bay’s most desirable locations. Built in 1988 with a forward-thinking open-concept design, the home features expansive floor-to-ceiling windows that blur the lines between indoors and out, offering panoramic views from nearly every room. White Oak hardwood floors span the main living areas, enhancing the warm, modern aesthetic. The upper-level primary suite present an exceptional opportunity for a redesign to your own specific vision - allowing you to fully personalize and elevate the living experience to today’s luxury standards. The flexible floor plan includes a loft-style second level with current drawings for a reconfiguration and expansion—add bedrooms, baths, or expand the rooftop entertaining 'sky deck' to suit your lifestyle. Outdoor living is just as impressive, with the rooftop deck and hot tub offering 360-degree views, a private lap pool, expansive deck, landscaped gardens, and a detached guest suite with a private gym. Located just 10 - 15 minutes from St. Pete Beach, Downtown St. Petersburg, Fort De Soto Park, and the I-275 corridor, this property combines privacy, potential, and prime waterfront access. Bring your vision and make this iconic Gulf-front property with its sandy beach your own.
Show More Show Less

Enjoy modern coastal living on your own private waterfront beach with exquisite, unobstructed open water views of the Gulf of Mexico. Situated on nearly an acre with the prestigious Oceanview Drive address of Tierra Verde, this architecturally unique waterfront residence offers a wonderful opportunity to create your dream home in one of Tampa Bay’s most desirable locations. Built in 1988 with a forward-thinking open-concept design, the home features expansive floor-to-ceiling windows that blur the lines between indoors and out, offering panoramic views from nearly every room. White Oak hardwood floors span the main living areas, enhancing the warm, modern aesthetic. The upper-level primary suite present an exceptional opportunity for a redesign to your own specific vision - allowing you to fully personalize and elevate the living experience to today’s luxury standards. The flexible floor plan includes a loft-style second level with current drawings for a reconfiguration and expansion—add bedrooms, baths, or expand the rooftop entertaining 'sky deck' to suit your lifestyle. Outdoor living is just as impressive, with the rooftop deck and hot tub offering 360-degree views, a private lap pool, expansive deck, landscaped gardens, and a detached guest suite with a private gym. Located just 10 - 15 minutes from St. Pete Beach, Downtown St. Petersburg, Fort De Soto Park, and the I-275 corridor, this property combines privacy, potential, and prime waterfront access. Bring your vision and make this iconic Gulf-front property with its sandy beach your own.

Highlights:

  • Floor-to-ceiling windows

  • White Oak hardwood floors

  • Rooftop entertaining 'sky deck'

  • Private lap pool

  • Detached guest suite with private gym

  • Show More Show Less
Reference ID: TB8422194 Web ID: rwbv

Listed by Liz Heinkel | Smith & Associates Real Estate

Contact by phone:  727-239-5623
Contact email form:

Highlights:

  • Floor-to-ceiling windows

  • White Oak hardwood floors

  • Rooftop entertaining 'sky deck'

  • Private lap pool

  • Detached guest suite with private gym

Continue Exploring Related Collections