Beds: 3
Baths: 2 Full

6032 Vane Circle, Huntington Beach, California, 92647, USA

Listed by: Gil Suniga | First Team Real Estate

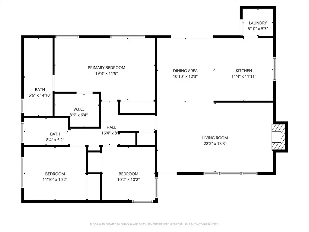
Welcome to this beautifully remodeled single-story home in one of Huntington Beach's most desirable neighborhoods! This 3-bedroom, 2-bath residence offers 1,434 sq. ft. of comfortable living space on a 6,500 sq. ft. landscaped lot with a double-car garage. Every detail has been thoughtfully updated to combine modern functionality with timeless style. The open-concept living area features new vinyl plank flooring, fresh interior and exterior paint, and a cozy fireplace, creating a warm and inviting atmosphere. The kitchen is a chef's dream, complete with quartz countertops, self-closing cabinets and drawers, built-in microwave, dishwasher, and ample storage, making it perfect for entertaining and everyday living. The spacious primary suite includes a luxurious updated bathroom with double sinks, quartz counters, and a custom tile shower. Two additional bedrooms provide flexibility for family, guests, or a home office. Recent upgrades include a brand-new HVAC system with heater and A/C, double-pane windows, automatic sprinklers, and a freshly painted roof. The dedicated laundry room offers convenient washer/dryer hookups, and the backyard provides a private, landscaped retreat ideal for outdoor gatherings. Located just 12 minutes from Bolsa Chica State Beach and Huntington Beach, this home offers easy access to the coast, top-rated schools, shopping, and dining. Combining modern updates, thoughtful design, and a prime coastal location, this property is truly move-in ready and ready to welcome its new owners.
Show More Show Less

Welcome to this beautifully remodeled single-story home in one of Huntington Beach's most desirable neighborhoods! This 3-bedroom, 2-bath residence offers 1,434 sq. ft. of comfortable living space on a 6,500 sq. ft. landscaped lot with a double-car garage. Every detail has been thoughtfully updated to combine modern functionality with timeless style. The open-concept living area features new vinyl plank flooring, fresh interior and exterior paint, and a cozy fireplace, creating a warm and inviting atmosphere. The kitchen is a chef's dream, complete with quartz countertops, self-closing cabinets and drawers, built-in microwave, dishwasher, and ample storage, making it perfect for entertaining and everyday living. The spacious primary suite includes a luxurious updated bathroom with double sinks, quartz counters, and a custom tile shower. Two additional bedrooms provide flexibility for family, guests, or a home office. Recent upgrades include a brand-new HVAC system with heater and A/C, double-pane windows, automatic sprinklers, and a freshly painted roof. The dedicated laundry room offers convenient washer/dryer hookups, and the backyard provides a private, landscaped retreat ideal for outdoor gatherings. Located just 12 minutes from Bolsa Chica State Beach and Huntington Beach, this home offers easy access to the coast, top-rated schools, shopping, and dining. Combining modern updates, thoughtful design, and a prime coastal location, this property is truly move-in ready and ready to welcome its new owners.

Highlights:

  • Quartz countertops

  • Custom tile shower

  • Vinyl plank flooring

  • Double sinks

  • Chef's kitchen

  • Cozy fireplace

  • Landscaped lot

  • Automatic sprinklers

  • Double-car garage

  • Show More Show Less
Reference ID: PW25254662 Web ID: pnjt

Listed by Gil Suniga | First Team Real Estate

Contact by phone:  714-328-9883
Contact email form:

Highlights:

  • Quartz countertops

  • Custom tile shower

  • Vinyl plank flooring

  • Double sinks

  • Chef's kitchen

  • Cozy fireplace

  • Landscaped lot

  • Automatic sprinklers

  • Double-car garage