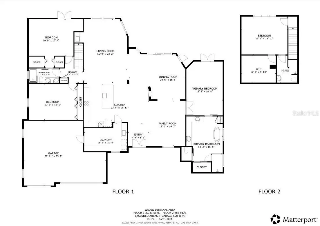
Beds: 4
Baths: 3 Full

1312 Wyndham Lakes Drive, Odessa, Florida, 33556, USA

Listed by: Richard Koster | Coastal Properties Group International - Forbes Global Properties

Odessa Lakeside Retreat Featuring Oversized Bedrooms, Modern Kitchen, and Expansive Outdoor Living! Welcome to lakeside living at its finest on the shores of Lake Ann, a pristine 97-acre ski lake in Odessa’s desirable Wyndham Lakes community. This elegant 4-bedroom, 3-bath ranch-style home spans 3,138 sqft. and sits on nearly an acre of property, offering both space and serenity. From boating and wakeboarding to poolside relaxation, this property blends luxury with adventure. Step inside to find vaulted ceilings that enhance the open design and flood the home with natural light. Oversized bedrooms with large closets provide comfort, while expansive picture windows showcase sweeping views of the lake. Thoughtful upgrades throughout the home include updated fixtures, hardwood floors (2023), updated drywall finishes in the main living areas (2023), a central vacuum system, motorized window shades, and even a dedicated movie screen with projector in one of the rooms—perfect for quiet evenings. The kitchen, updated in 2023, shines with stainless steel appliances and modern finishes. Bathrooms were refreshed in 2021, along with new tile, a roof replacement (2021), new gutter and leaf guards (2024), and a re-screened lanai (2021). A Generac generator (2023) and gas tankless water heater (2023) add peace of mind during the Florida storm season. Outside, in the front of the home there is a five car paver driveway (2023) that was permitted and approved by the HOA, and in the backyard the screened lanai and heated pool invite year-round enjoyment. The freshly painted dock extends into Lake Ann, ready for fishing, kayaking, skiing, and sunset cruises. An Astroturf dog run and private sandy beach area add unique touches to the backyard retreat. Located minutes from shopping, dining, The scenic 272-acre Lake Rogers Nature Park, and just 14 miles from Tampa International Airport, this property is the ideal balance of tranquility and convenience. Don’t miss your chance to own this Lake Ann retreat—schedule your private showing today!
Show More Show Less

Odessa Lakeside Retreat Featuring Oversized Bedrooms, Modern Kitchen, and Expansive Outdoor Living! Welcome to lakeside living at its finest on the shores of Lake Ann, a pristine 97-acre ski lake in Odessa’s desirable Wyndham Lakes community. This elegant 4-bedroom, 3-bath ranch-style home spans 3,138 sqft. and sits on nearly an acre of property, offering both space and serenity. From boating and wakeboarding to poolside relaxation, this property blends luxury with adventure. Step inside to find vaulted ceilings that enhance the open design and flood the home with natural light. Oversized bedrooms with large closets provide comfort, while expansive picture windows showcase sweeping views of the lake. Thoughtful upgrades throughout the home include updated fixtures, hardwood floors (2023), updated drywall finishes in the main living areas (2023), a central vacuum system, motorized window shades, and even a dedicated movie screen with projector in one of the rooms—perfect for quiet evenings. The kitchen, updated in 2023, shines with stainless steel appliances and modern finishes. Bathrooms were refreshed in 2021, along with new tile, a roof replacement (2021), new gutter and leaf guards (2024), and a re-screened lanai (2021). A Generac generator (2023) and gas tankless water heater (2023) add peace of mind during the Florida storm season. Outside, in the front of the home there is a five car paver driveway (2023) that was permitted and approved by the HOA, and in the backyard the screened lanai and heated pool invite year-round enjoyment. The freshly painted dock extends into Lake Ann, ready for fishing, kayaking, skiing, and sunset cruises. An Astroturf dog run and private sandy beach area add unique touches to the backyard retreat. Located minutes from shopping, dining, The scenic 272-acre Lake Rogers Nature Park, and just 14 miles from Tampa International Airport, this property is the ideal balance of tranquility and convenience. Don’t miss your chance to own this Lake Ann retreat—schedule your private showing today!

Highlights:

  • Vaulted ceilings with natural light

  • Oversized bedrooms with large closets

  • Expansive picture windows with lake views

  • Updated kitchen with stainless steel appliances

  • Modern bathroom finishes

  • Dedicated movie screen with projector

  • Generac generator for storm season

  • Gas tankless water heater

  • Heated pool with screened lanai

  • Lakefront dock for fishing and water activities

  • Show More Show Less
Reference ID: TB8421618 Web ID: omtl

Listed by Richard Koster | Coastal Properties Group International - Forbes Global Properties

Contact by phone:  7274235101
Contact email form:

Highlights:

  • Vaulted ceilings with natural light

  • Oversized bedrooms with large closets

  • Expansive picture windows with lake views

  • Updated kitchen with stainless steel appliances

  • Modern bathroom finishes

  • Dedicated movie screen with projector

  • Generac generator for storm season

  • Gas tankless water heater

  • Heated pool with screened lanai

  • Lakefront dock for fishing and water activities

Continue Exploring Related Collections