Proposed Construction in Paradise Island
1449 Jeremy Cay Court, Awendaw, South Carolina, 29429, USA
Listed by: Patty Lynn Connell | Carolina One Real Estate
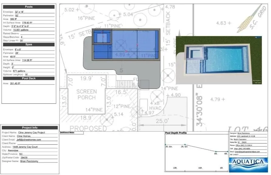
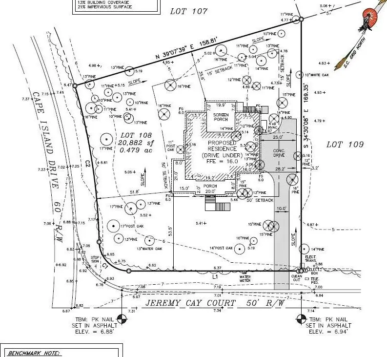
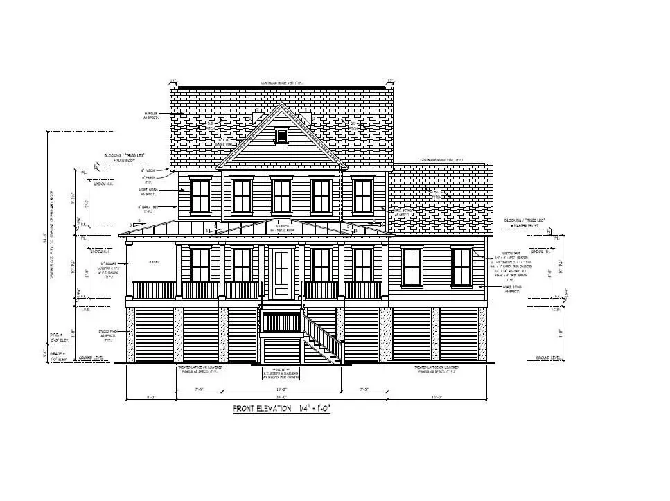
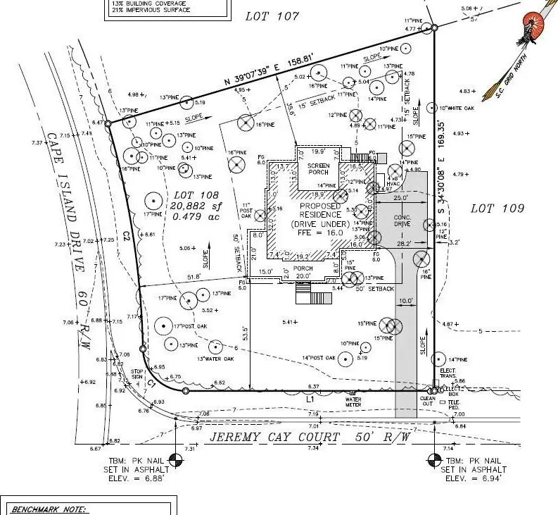
PROPOSED CONSTRUCTION! Paradise Island is an exclusive, private waterfront community nestled between the Wando River and Francis Marion National Forest, just minutes north of Mt. Pleasant, SC. The marsh views are sweeping, trees are mature, and the home sites are expansive ranging from half acre parcels to over one acre. This home is 1 of 2 remaining lots being offered to build a custom home by this local, award winning custom builder. This home is on a corner lot overlooking a pond in front and other lots available do back up to the marsh. Plan is subject to DRB approval but changes to the plan can still be made if desired!2 stop elevators are standard but can be taken out if desired. Pools can be added on to the build price and completed during the construction phase, pool not included in pricing. Financing Fees may apply. Architecture is distinctly low-country, porches are the focal point and homes are typically elevated construction, elevators are standard for all plans we build but you have the option to get a credit back if it's not desired. Quality construction, material, and features abound, included features are available upon request. This is a custom plan as are all of the homes to be built by this builder in Paradise Island. Finishes are custom, your design coordinator will walk you through your personal design selections, if you can envision it, we can make it happen! Welcome to Paradise Island, a private waterfront community nestled between the Wando River and Francis Marion National Forest, just minutes from Mt. Pleasant. This Lowcountry retreat offers a serene setting surrounded by marshlands, rivers, and mature trees. Enjoy exclusive amenities like a deepwater community dock, boat ramp, optional boat storage, and a picnic area for residents all just minutes from your doorstep. These stunning elevated homes provide breathtaking marsh views and represent the pinnacle of Lowcountry living. Partnering with Cline Homes, a renowned local custom builder, you have a unique opportunity to build a custom home that blends luxury with practicality. Featuring exceptional architectural design and a seamless flow, these homes offer unmatched comfort and charm. Experience a perfect balance of tranquility and accessibility with the added benefit of Mt. Pleasant water and sewer services; no septic tanks or wells required. Residents enjoy peaceful seclusion with convenient access to shopping centers, restaurants, hiking trails, and stunning beaches. Situated just 5 miles to Sewee Outpost for gas, groceries, clothing, fishing supplies, live music, homemade southern foods, plus all kinds of other goodies! Paradise Island is located just 15 minutes from Costco, more restaurants, butcher shop, pharmacy, retail shopping, fitness studios, Wando High School, Mt. Pleasant Active Park, Recreation Center, Crush Yard pickleball, Mt. Pleasant Library and Hospital...just to name a few!
Highlights:
Custom-built by award-winning builder
Elevated construction with sweeping marsh views
Distinct low-country architectural design with porches
Listed by Patty Lynn Connell | Carolina One Real Estate
Highlights:
Custom-built by award-winning builder
Elevated construction with sweeping marsh views
Distinct low-country architectural design with porches
Exclusive deepwater community dock access
Quality construction with premium materials
Option for custom finishes and design selections
Standard elevators in all plans
Chef's kitchen with upscale amenities
Corner lot overlooking a pond
Proximity to shopping centers, restaurants, and beaches