Beds: 11
Baths: 7 Full

1535 West Estes Avenue, Chicago, Illinois, 60626, USA

Listed by: Peter Fotopoulos | Baird & Warner

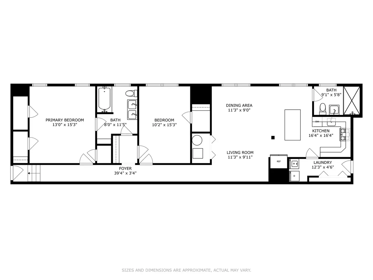
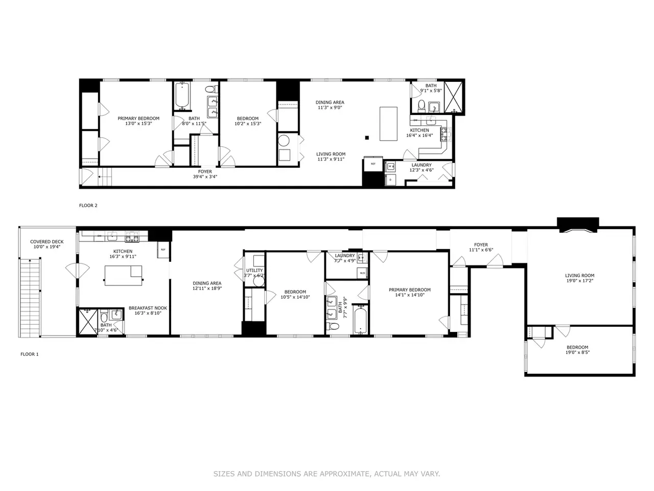
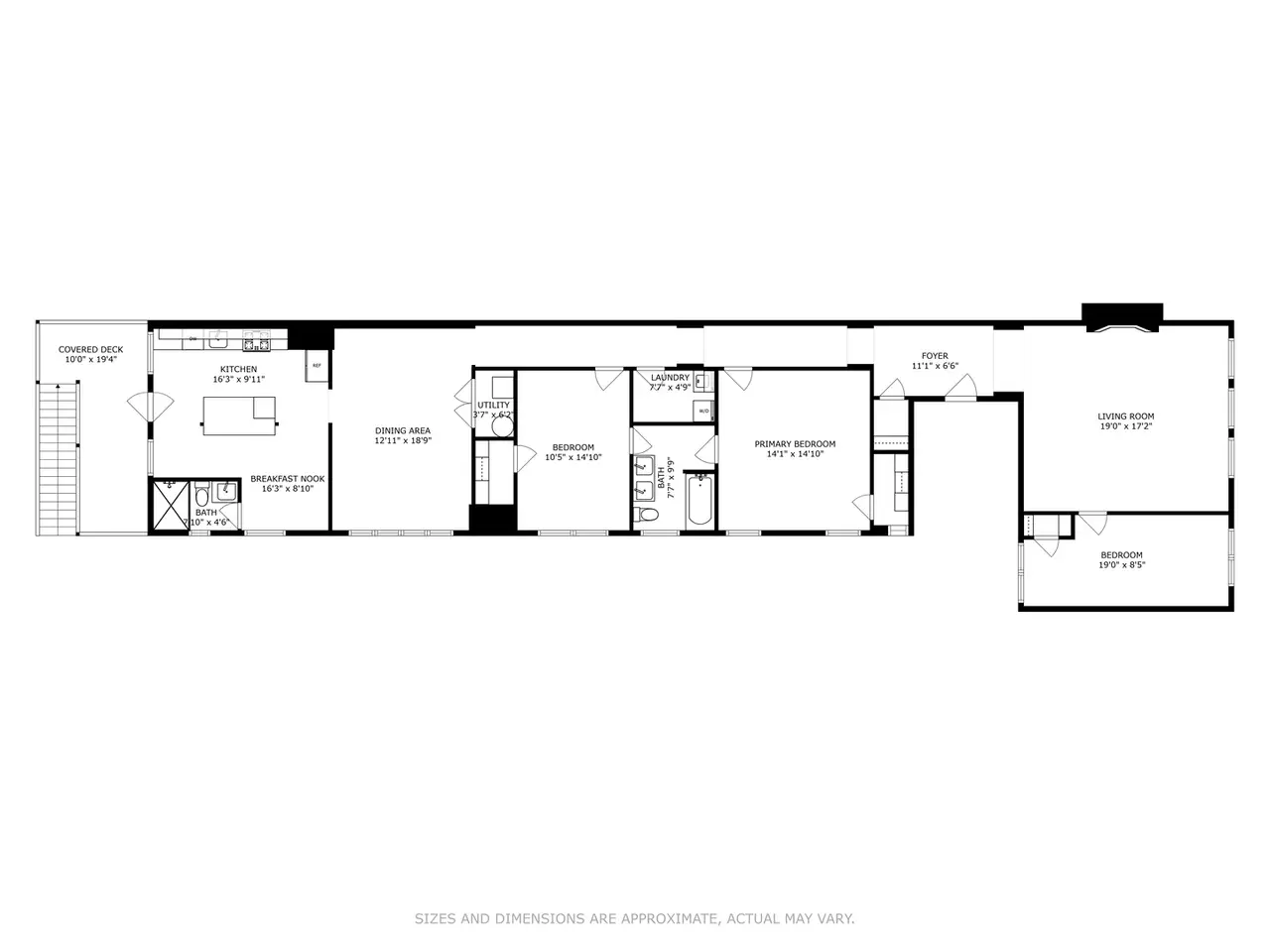
Introducing 1535 West Estes Avenue, located in the heart of East Rogers Park! This 2025 beautiful, enormous, completely renovated to the studs 4 unit multi-family building features top-notch design and craftsmanship throughout. The property sits on a huge 30x180 foot lot located on a quiet street and showcases exquisite gorgeous limestone as well as new tuckpointing, a complete tear off roof, all new windows, imported European doors, newly built back private decks, a fresh foundation, and an elegant custom interior staircase and lobby. This 4 unit property comprises three spacious 2,300 square foot units, each offering sweeping open layouts with city views and abundant natural light. Each unit has been completely updated with modern finishes from top to bottom. The kitchens are equipped with stainless steel GE appliances, quartz countertops, and stylish cabinets. Each unit also includes two full bathrooms with upscale finishes, as well as side-by-side in-unit laundry, fully updated electrical systems, new flooring, and high ceilings.The three upper units consist of three bedrooms and two full bathrooms, while the garden-level fourth unit offers two bedrooms, one full bath, and 9-foot ceilings. Residents can enjoy a sleek modern common lobby, private decks, and enter a private entrance to their three-car garage with fresh epoxy flooring. Conveniently located near two Red Line stations and within walking distance to Loyola Beach, Loyola University as well as being very close to Evanston; this property truly offers it all! A Major League turnkey Investment Property opportunity to build wealth with instant cash flow or convert into a condo building! Suitable for newbie investors who can house hack their way into luxury!
Show More Show Less

Introducing 1535 West Estes Avenue, located in the heart of East Rogers Park! This 2025 beautiful, enormous, completely renovated to the studs 4 unit multi-family building features top-notch design and craftsmanship throughout. The property sits on a huge 30x180 foot lot located on a quiet street and showcases exquisite gorgeous limestone as well as new tuckpointing, a complete tear off roof, all new windows, imported European doors, newly built back private decks, a fresh foundation, and an elegant custom interior staircase and lobby. This 4 unit property comprises three spacious 2,300 square foot units, each offering sweeping open layouts with city views and abundant natural light. Each unit has been completely updated with modern finishes from top to bottom. The kitchens are equipped with stainless steel GE appliances, quartz countertops, and stylish cabinets. Each unit also includes two full bathrooms with upscale finishes, as well as side-by-side in-unit laundry, fully updated electrical systems, new flooring, and high ceilings.The three upper units consist of three bedrooms and two full bathrooms, while the garden-level fourth unit offers two bedrooms, one full bath, and 9-foot ceilings. Residents can enjoy a sleek modern common lobby, private decks, and enter a private entrance to their three-car garage with fresh epoxy flooring. Conveniently located near two Red Line stations and within walking distance to Loyola Beach, Loyola University as well as being very close to Evanston; this property truly offers it all! A Major League turnkey Investment Property opportunity to build wealth with instant cash flow or convert into a condo building! Suitable for newbie investors who can house hack their way into luxury!

Highlights:

  • Exquisite limestone facade

  • Imported European doors

  • Custom interior staircase

  • Sweeping city views

  • Stainless steel GE appliances

  • Quartz countertops

  • Upscale finishes

  • Side-by-side in-unit laundry

  • Private decks

  • Fresh epoxy flooring

  • Show More Show Less
Reference ID: 12491410 Web ID: hwyk

Listed by Peter Fotopoulos | Baird & Warner

Contact by phone:  773-934-8898
Contact email form:

Highlights:

  • Exquisite limestone facade

  • Imported European doors

  • Custom interior staircase

  • Sweeping city views

  • Stainless steel GE appliances

  • Quartz countertops

  • Upscale finishes

  • Side-by-side in-unit laundry

  • Private decks

  • Fresh epoxy flooring

Continue Exploring Related Collections