Beds: 9
Baths: 5 Full

Zirndorf, Germany

Listed by: VON POLL IMMOBILIEN Fürth | von Poll Immobilien GmbH

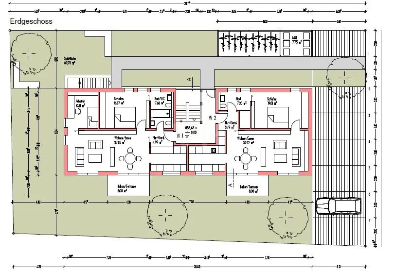
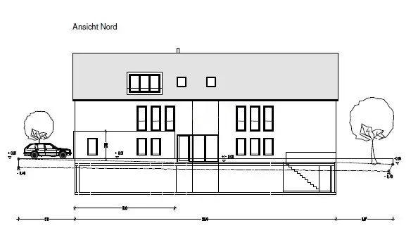
Built in 2014, this apartment building stands on a plot of approx. 670 m² in a quiet yet centrally located residential area. The building has a total living space of around 415 m², which is divided into four spacious 3-bedroom apartments and one 2-bedroom apartment. All units have a well thought-out layout and offer contemporary furnishings that guarantee long-term rentability. The property has been let continuously without vacancy since completion. The current net cold rental income is approx. 53,460 euros per year and offers further potential for growth due to the location and the quality of the fixtures and fittings. Thanks to the solid construction, the as-new condition and the fact that there is no elevator, the maintenance costs are extremely low, making this property a stable and secure investment. The apartments are characterized by bright rooms, open-plan living and dining areas and high-quality materials. Modern double glazing, easy-care floor coverings and central heating ensure efficient living comfort. The bathrooms have a timeless design and are fitted with high-quality sanitary ware. Each apartment has its own cellar room. There is also a communal cellar with space for baby carriages and garden tools, as well as a separate laundry room. The property is easy to maintain and offers a total of seven outdoor parking spaces. There is also a storage room on the property for bicycles and garbage cans. With a reliable rental structure, stable income and additional development potential, this apartment building represents a high-yield and future-proof investment. We would be happy to provide you with further information or arrange a viewing.
Show More Show Less

Built in 2014, this apartment building stands on a plot of approx. 670 m² in a quiet yet centrally located residential area. The building has a total living space of around 415 m², which is divided into four spacious 3-bedroom apartments and one 2-bedroom apartment. All units have a well thought-out layout and offer contemporary furnishings that guarantee long-term rentability. The property has been let continuously without vacancy since completion. The current net cold rental income is approx. 53,460 euros per year and offers further potential for growth due to the location and the quality of the fixtures and fittings. Thanks to the solid construction, the as-new condition and the fact that there is no elevator, the maintenance costs are extremely low, making this property a stable and secure investment. The apartments are characterized by bright rooms, open-plan living and dining areas and high-quality materials. Modern double glazing, easy-care floor coverings and central heating ensure efficient living comfort. The bathrooms have a timeless design and are fitted with high-quality sanitary ware. Each apartment has its own cellar room. There is also a communal cellar with space for baby carriages and garden tools, as well as a separate laundry room. The property is easy to maintain and offers a total of seven outdoor parking spaces. There is also a storage room on the property for bicycles and garbage cans. With a reliable rental structure, stable income and additional development potential, this apartment building represents a high-yield and future-proof investment. We would be happy to provide you with further information or arrange a viewing.

Highlights:

  • High-quality materials

  • Modern double glazing

  • Timeless bathroom design Efficient central heating

  • Communal cellar with storage

  • Outdoor parking spaces

  • Show More Show Less
Reference ID: 25369032-1 Web ID: hsts

Listed by VON POLL IMMOBILIEN Fürth | von Poll Immobilien GmbH

Contact email form:

Highlights:

  • High-quality materials

  • Modern double glazing

  • Timeless bathroom design Efficient central heating

  • Communal cellar with storage

  • Outdoor parking spaces