Beds: 4
Baths: 5 Full

21 Bensons Point Court, Stony Point, New York, 10980, USA

Listed by: Elly Walden | Howard Hanna – Rand Realty

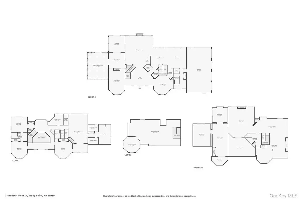
Welcome home to your private mini estate in the historic town of Stony Point! Nestled on nearly 3 acres of serene, tree-lined property, this beautifully designed residence offers the perfect blend of space, comfort, and privacy within 10 minutes of the Palisades Parkway for easy commuting. Step through the front door into a grand two-story foyer, where a sweeping open staircase ascends to a gallery-like landing and interior balcony overlooking the main living areas. Sunlight pours in through oversized windows, creating a warm, inviting ambiance throughout. Thoughtfully designed for both everyday comfort and elegant entertaining, this expansive home features an open-concept kitchen that allows you to cook and host with ease. Whether you're gathering on the wraparound deck overlooking the pool or enjoying a more formal evening in the elegant dining room, every detail supports effortless living. Furthermore, throughout this level of the home are two peaceful, light-filled sunrooms perfect for reading, relaxing, one of which becomes a cozy haven on rainy days steps from the family room, living room and den/library. The seamless flow between living areas makes hosting effortless, while still providing intimate corners for quiet reflection.Upstairs features 4 generously sized bedrooms and 3 full bathrooms. The luxurious primary suite is a true retreat, complete with an elegant fireplace, abundance of room for that quiet reading nook, a private balcony for morning meditation, and a spa-like en-suite bath. Three additional bedrooms provide comfort and privacy for family or guests. The fully finished walkout lower level is a home in itself, featuring a second kitchen and abundant space for extended family, guests, recreation, or a private home office. Whether you're accommodating multiple generations or seeking the ideal layout for entertaining, this flexible space adapts to your needs. Step outside to discover a backyard sanctuary, meticulously designed for outdoor enjoyment. Entertain in style with expansive decking, a sparkling in-ground pool, a gazebo for al fresco dining, and a jacuzzi for ultimate relaxation all surrounded by the natural beauty of your own private landscape. Whether you're entertaining or simply enjoying the peace and quiet, you'll love the expansive layout and tranquil surroundings, schedule your private showing today.
Show More Show Less

Welcome home to your private mini estate in the historic town of Stony Point! Nestled on nearly 3 acres of serene, tree-lined property, this beautifully designed residence offers the perfect blend of space, comfort, and privacy within 10 minutes of the Palisades Parkway for easy commuting. Step through the front door into a grand two-story foyer, where a sweeping open staircase ascends to a gallery-like landing and interior balcony overlooking the main living areas. Sunlight pours in through oversized windows, creating a warm, inviting ambiance throughout. Thoughtfully designed for both everyday comfort and elegant entertaining, this expansive home features an open-concept kitchen that allows you to cook and host with ease. Whether you're gathering on the wraparound deck overlooking the pool or enjoying a more formal evening in the elegant dining room, every detail supports effortless living. Furthermore, throughout this level of the home are two peaceful, light-filled sunrooms perfect for reading, relaxing, one of which becomes a cozy haven on rainy days steps from the family room, living room and den/library. The seamless flow between living areas makes hosting effortless, while still providing intimate corners for quiet reflection.Upstairs features 4 generously sized bedrooms and 3 full bathrooms. The luxurious primary suite is a true retreat, complete with an elegant fireplace, abundance of room for that quiet reading nook, a private balcony for morning meditation, and a spa-like en-suite bath. Three additional bedrooms provide comfort and privacy for family or guests. The fully finished walkout lower level is a home in itself, featuring a second kitchen and abundant space for extended family, guests, recreation, or a private home office. Whether you're accommodating multiple generations or seeking the ideal layout for entertaining, this flexible space adapts to your needs. Step outside to discover a backyard sanctuary, meticulously designed for outdoor enjoyment. Entertain in style with expansive decking, a sparkling in-ground pool, a gazebo for al fresco dining, and a jacuzzi for ultimate relaxation all surrounded by the natural beauty of your own private landscape. Whether you're entertaining or simply enjoying the peace and quiet, you'll love the expansive layout and tranquil surroundings, schedule your private showing today.

Highlights:

  • Two-story foyer with grand staircase

  • Open-concept kitchen for seamless hosting

  • Elegant fireplace in luxurious primary suite

  • Sunrooms for reading and relaxation

  • Wraparound deck overlooking pool

  • Private balcony for morning meditation

  • Fully finished walkout lower level

  • Gourmet second kitchen

  • Sparkling in-ground pool

  • Gazebo for al fresco dining

  • Show More Show Less
Reference ID: 841318 Web ID: egow

Listed by Elly Walden | Howard Hanna – Rand Realty

Contact by phone:  845-304-9468
Contact email form:

Highlights:

  • Two-story foyer with grand staircase

  • Open-concept kitchen for seamless hosting

  • Elegant fireplace in luxurious primary suite

  • Sunrooms for reading and relaxation

  • Wraparound deck overlooking pool

  • Private balcony for morning meditation

  • Fully finished walkout lower level

  • Gourmet second kitchen

  • Sparkling in-ground pool

  • Gazebo for al fresco dining

Continue Exploring Related Collections