Beds: 2
Baths: 2 Full

Paris, France

Listed by: Espaces Atypiques

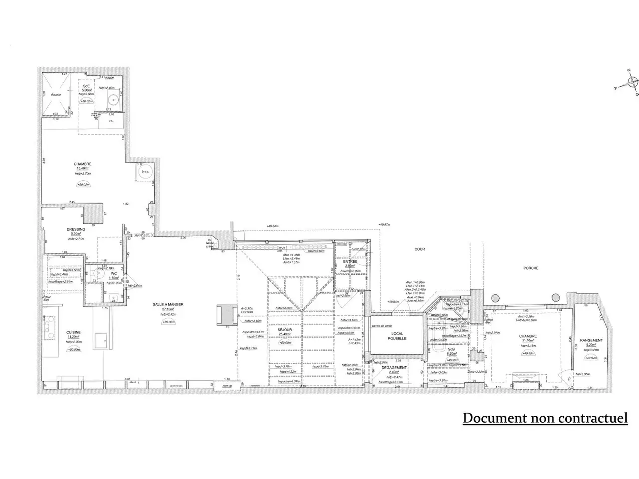
Located close to Square Montholon and the Marche Cadet, this 119.45 m2 (118.89 m2 Carrez) ground-floor loft is quiet and nestled within a classic Haussmann-style building. The property features an independent entrance that opens into the building's courtyard. Upon crossing the threshold, a glass vestibule serves as an entryway and leads to a spacious reception area with an open kitchen, totaling 64 m2. The reception space is characterized by its high ceilings and the natural light provided by the skylight. Numerous shelves and a fireplace complement the room's aesthetic. On the bedroom side, an industrial-style wooden door reveals the first bedroom, which spans nearly 27 m2. It includes a large walk-in closet and a private shower room with an Italian-style shower. On the opposite side, a second bedroom features its own dressing area and an open bathroom with a clawfoot bathtub under the skylight, covering more than 21 m2. This property will appeal to those who appreciate space and tranquility. Metro Stations : Cadet or Notre-Dame de Lorette (Lines 7 & 12) REF. 12933 Additional information * 4 rooms * 2 bedrooms * 1 bathroom * 1 bathroom * 6 floors in the building * 20 co-ownership lots * Annual co-ownership fees : 3 862 € * Property tax : 2 553 € * Proceeding : Non Energy Performance Certificate Primary energy consumption d : 224 kWh/m2.year High performance housing
Show More Show Less

Located close to Square Montholon and the Marche Cadet, this 119.45 m2 (118.89 m2 Carrez) ground-floor loft is quiet and nestled within a classic Haussmann-style building. The property features an independent entrance that opens into the building's courtyard. Upon crossing the threshold, a glass vestibule serves as an entryway and leads to a spacious reception area with an open kitchen, totaling 64 m2. The reception space is characterized by its high ceilings and the natural light provided by the skylight. Numerous shelves and a fireplace complement the room's aesthetic. On the bedroom side, an industrial-style wooden door reveals the first bedroom, which spans nearly 27 m2. It includes a large walk-in closet and a private shower room with an Italian-style shower. On the opposite side, a second bedroom features its own dressing area and an open bathroom with a clawfoot bathtub under the skylight, covering more than 21 m2. This property will appeal to those who appreciate space and tranquility. Metro Stations : Cadet or Notre-Dame de Lorette (Lines 7 & 12) REF. 12933 Additional information * 4 rooms * 2 bedrooms * 1 bathroom * 1 bathroom * 6 floors in the building * 20 co-ownership lots * Annual co-ownership fees : 3 862 € * Property tax : 2 553 € * Proceeding : Non Energy Performance Certificate Primary energy consumption d : 224 kWh/m2.year High performance housing

Highlights:

  • High ceilings

  • Skylight for natural light

  • Fireplace

  • Clawfoot bathtub

  • Independent entrance

  • Show More Show Less
Reference ID: 19458-12933 Web ID: dici

Contact Agent | Espaces Atypiques

Contact email form:

Highlights:

  • High ceilings

  • Skylight for natural light

  • Fireplace

  • Clawfoot bathtub

  • Independent entrance