Beds: 4
Baths: 3 Full | 1 Half

5115 South Nichol Street, Tampa, Florida, 33611, USA

Listed by: Maddie Comfort | Smith & Associates Real Estate

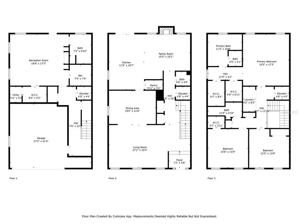
Welcome to the rarely available, private community of Crescent Place! This 4-bedroom, 3.5-bathroom townhome exudes elegance & Georgian architecture while nestled in the beloved Ballast Point neighborhood. Crescent Place is a highly desired community with only 20 residences surrounded by a stately brick wall for ultimate privacy and steps away from the Tampa Yacht & Country Club, Ballast Point Park, and Bayshore Boulevard. Boasting 3,749 SF, this end unit underwent a gut renovation in 2015, blending sophisticated style with functional living spaces while enhancing the character of the home. This 3-story unit is equipped with an elevator for complete convenience to all levels. The main living area, located on the second level, welcomes you into the home with a formal living & dining room and opens up to the family room. The family room features Venetian plaster walls, custom built-ins & built-in desk plus a wood-burning fireplace. The family room overlooks the eat-in chef's kitchen, which features top-of-the-line appliances, including double Wolf ovens, marble countertops, Moroccan subway tile backsplash, carefully constructed custom cabinets to utilize optimal storage space & a walk-in pantry. Sliding glass doors off the kitchen lead out onto the covered balcony overlooking the serene courtyard. On the 3rd level, you will find the spacious primary suite with 2 walk-in closets, a stunning bathroom with dual sinks, a soaking tub & walk-in shower, plus 2 additional bedrooms with a center hall bath & laundry area. The first-floor renovation was completed in January 2025 by Daley Construction with endless options for use. This multi-functional first-floor club room functions as a 4th bedroom with a built-in Murphy bed, a full bathroom with a walk-in shower, a large walk-in cedar closet, & a kitchenette/bar. Enjoy relaxing or alfresco dining in your private courtyard, which wraps around the side of the unit, providing additional backyard space. Additional upgrades include: Roof installed November 2024, upstairs AC replaced June 2025, & flood barrier installed at the gate, as well as backflow preventers in September 2025. 2-car garage with electric charging port & additional storage area. Minutes to Hyde Park, Soho, Downtown, TIA, International Mall, wonderful restaurants, shopping, and the Gulf beaches.
Show More Show Less

Welcome to the rarely available, private community of Crescent Place! This 4-bedroom, 3.5-bathroom townhome exudes elegance & Georgian architecture while nestled in the beloved Ballast Point neighborhood. Crescent Place is a highly desired community with only 20 residences surrounded by a stately brick wall for ultimate privacy and steps away from the Tampa Yacht & Country Club, Ballast Point Park, and Bayshore Boulevard. Boasting 3,749 SF, this end unit underwent a gut renovation in 2015, blending sophisticated style with functional living spaces while enhancing the character of the home. This 3-story unit is equipped with an elevator for complete convenience to all levels. The main living area, located on the second level, welcomes you into the home with a formal living & dining room and opens up to the family room. The family room features Venetian plaster walls, custom built-ins & built-in desk plus a wood-burning fireplace. The family room overlooks the eat-in chef's kitchen, which features top-of-the-line appliances, including double Wolf ovens, marble countertops, Moroccan subway tile backsplash, carefully constructed custom cabinets to utilize optimal storage space & a walk-in pantry. Sliding glass doors off the kitchen lead out onto the covered balcony overlooking the serene courtyard. On the 3rd level, you will find the spacious primary suite with 2 walk-in closets, a stunning bathroom with dual sinks, a soaking tub & walk-in shower, plus 2 additional bedrooms with a center hall bath & laundry area. The first-floor renovation was completed in January 2025 by Daley Construction with endless options for use. This multi-functional first-floor club room functions as a 4th bedroom with a built-in Murphy bed, a full bathroom with a walk-in shower, a large walk-in cedar closet, & a kitchenette/bar. Enjoy relaxing or alfresco dining in your private courtyard, which wraps around the side of the unit, providing additional backyard space. Additional upgrades include: Roof installed November 2024, upstairs AC replaced June 2025, & flood barrier installed at the gate, as well as backflow preventers in September 2025. 2-car garage with electric charging port & additional storage area. Minutes to Hyde Park, Soho, Downtown, TIA, International Mall, wonderful restaurants, shopping, and the Gulf beaches.

Highlights:

  • Elevator

  • Venetian plaster walls

  • Wood-burning fireplace

  • Chef's kitchen

  • Marble countertops

  • Custom built-ins

  • Walk-in pantry

  • Covered balcony

  • Spacious primary suite

  • Soaking tub

  • Show More Show Less
Reference ID: TB8424361 Web ID: qfrt

Listed by Maddie Comfort | Smith & Associates Real Estate

Contact by phone:  813-293-2278
Contact email form:

Highlights:

  • Elevator

  • Venetian plaster walls

  • Wood-burning fireplace

  • Chef's kitchen

  • Marble countertops

  • Custom built-ins

  • Walk-in pantry

  • Covered balcony

  • Spacious primary suite

  • Soaking tub