Beds: 3
Baths: 2 Full | 1 Half

224 Twin Peaks Boulevard, San Francisco, California, 94114, USA

Listed by: Randy Romero | Vanguard Properties

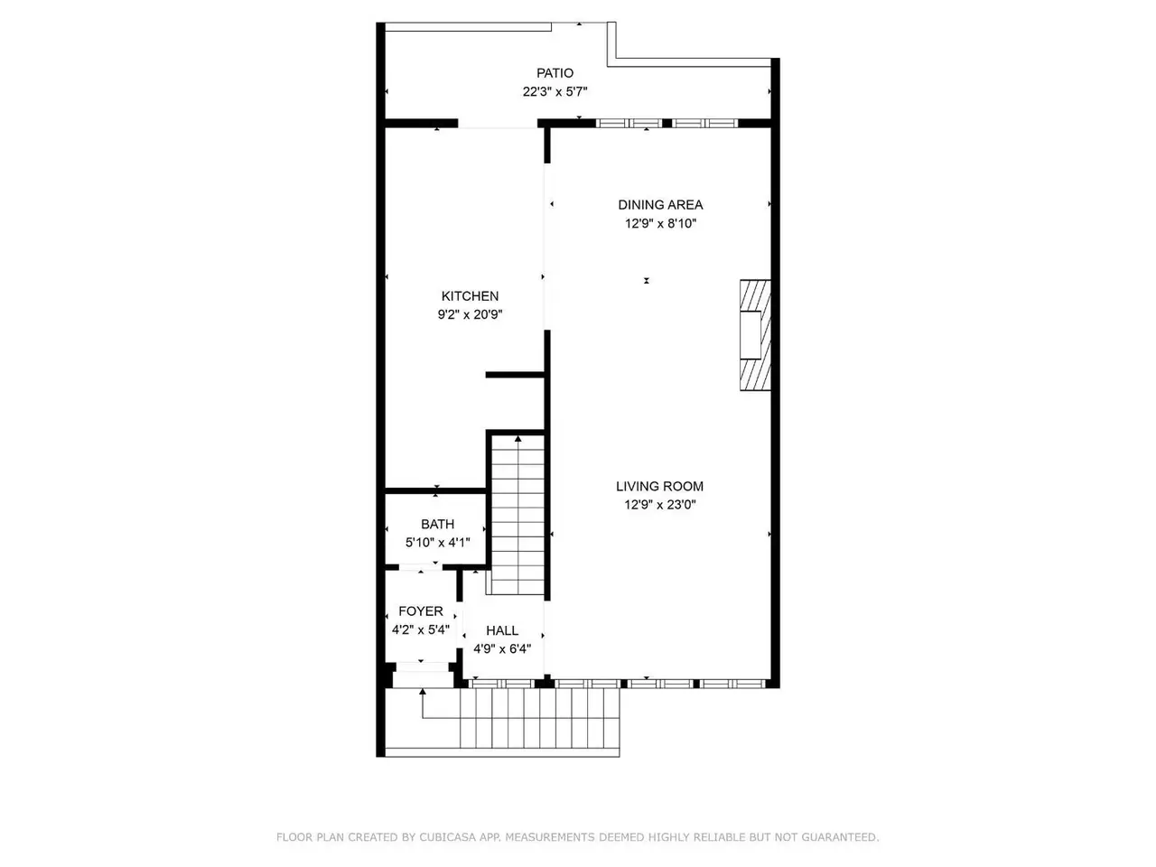
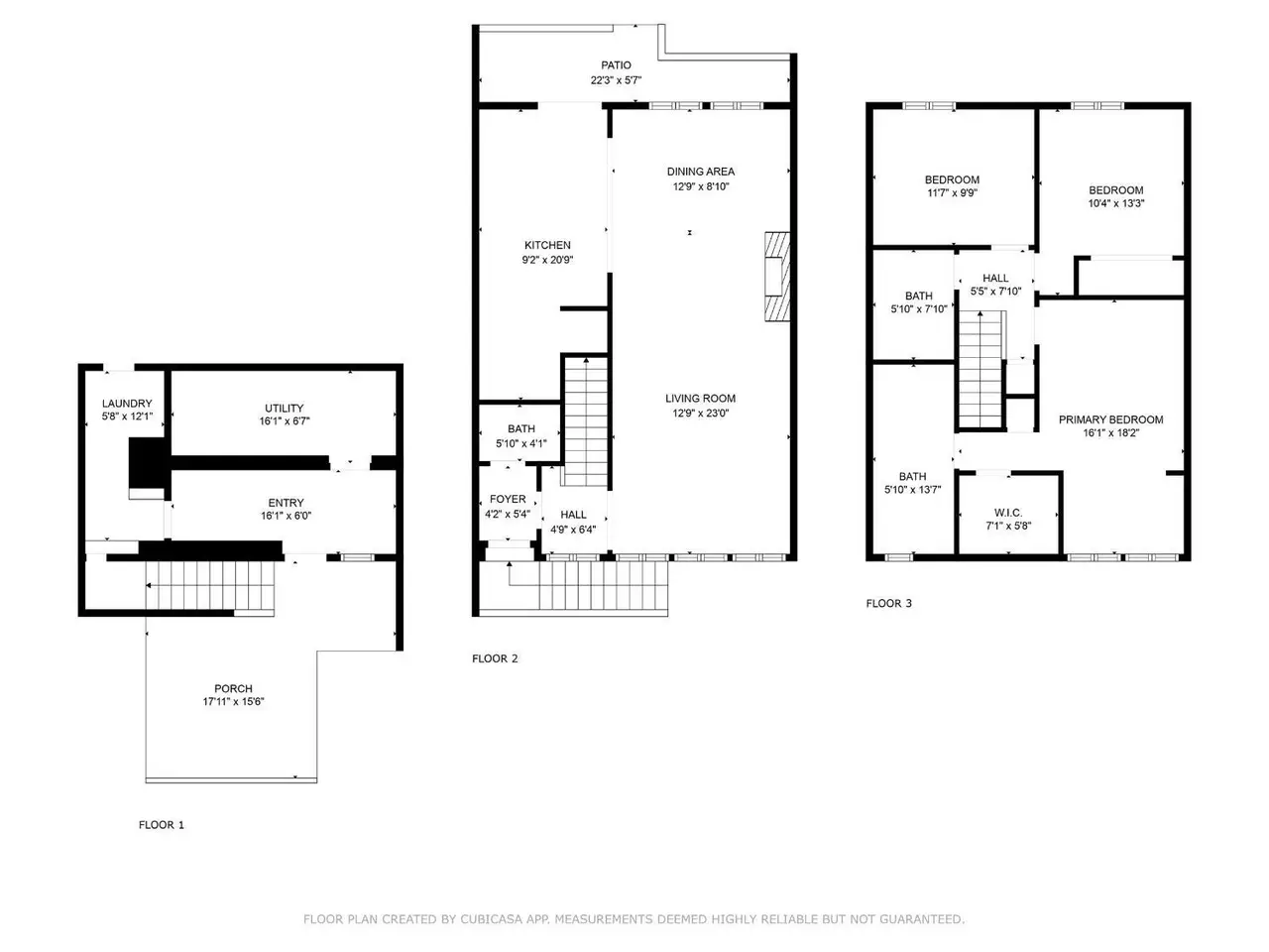
Past the rose-lined entrance and enclosed front garden patio lies a beautifully updated single-family home in the prestigious and highly sought-after Clarendon Heights. Boasting sweeping, dramatic vistas from the Bay to Downtown San Francisco, Mount Diablo, and beyond, this elegant residence blends classic Neo-Edwardian architecture with sophisticated, modern finishes. Step inside to an open floor plan that combines contemporary flair with refined details. The main level features coved ceilings, a guest powder room, spacious dining and entertainment areas, and a gourmet kitchen that opens seamlessly to a terraced backyard with brick and natural wood accents, perfect for outdoor entertaining or enjoying a morning cappuccino. The sunlit living room showcases breathtaking Bay views and a cozy, wood-burning fireplace that enhances the inviting ambiance. Upstairs, two guest bedrooms overlook the serene, colorful rear garden, while the primary suite offers postcard-worthy vistas, a walk-in closet, and a luxuriously appointed en suite bathroom. Additional highlights include a large, two-car garage and convenient proximity to nearby shopping, dining, and city amenities.
Show More Show Less

Past the rose-lined entrance and enclosed front garden patio lies a beautifully updated single-family home in the prestigious and highly sought-after Clarendon Heights. Boasting sweeping, dramatic vistas from the Bay to Downtown San Francisco, Mount Diablo, and beyond, this elegant residence blends classic Neo-Edwardian architecture with sophisticated, modern finishes. Step inside to an open floor plan that combines contemporary flair with refined details. The main level features coved ceilings, a guest powder room, spacious dining and entertainment areas, and a gourmet kitchen that opens seamlessly to a terraced backyard with brick and natural wood accents, perfect for outdoor entertaining or enjoying a morning cappuccino. The sunlit living room showcases breathtaking Bay views and a cozy, wood-burning fireplace that enhances the inviting ambiance. Upstairs, two guest bedrooms overlook the serene, colorful rear garden, while the primary suite offers postcard-worthy vistas, a walk-in closet, and a luxuriously appointed en suite bathroom. Additional highlights include a large, two-car garage and convenient proximity to nearby shopping, dining, and city amenities.

Highlights:

  • Wood-burning fireplace

  • Gourmet kitchen with terraced backyard

  • Neo-Edwardian architecture

  • Postcard-worthy vistas

  • Luxuriously appointed en suite bathroom

  • Show More Show Less
Reference ID: 425031138 Web ID: takz

Listed by Randy Romero | Vanguard Properties

Contact email form:

Highlights:

  • Wood-burning fireplace

  • Gourmet kitchen with terraced backyard

  • Neo-Edwardian architecture

  • Postcard-worthy vistas

  • Luxuriously appointed en suite bathroom