Beds: 3
Baths: 3 Full

Pina, Spain

Listed by: VON POLL REAL ESTATE Mallorca - Santa Maria | von Poll Immobilien GmbH

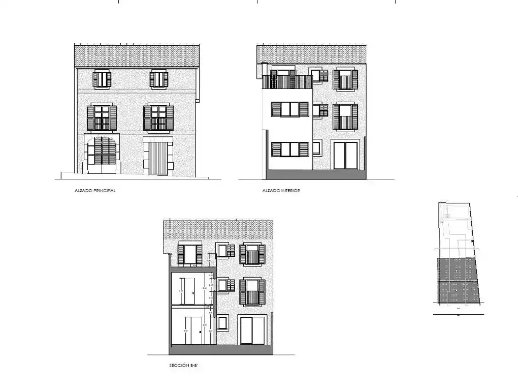
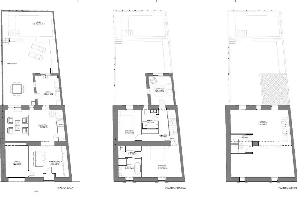
This renovated village house from 1890 is located in the picturesque village of Pina, in the municipality of Algaida. Its location on the outskirts of the village, yet centrally located, offers maximum tranquillity. Through the spacious entrance hall and through an antique marble arch you enter the spacious living room and the kitchen, and from there you enter directly into the patio with the terrace and the pool. There is also a guest WC on this level. There are three large bedrooms on the second floor, two of which share a spacious bathroom. The master suite has its own bathroom, dressing room and bathtub. On the second floor there is a large attic which could be converted into 2 further bedrooms. A bathroom is already available. The historic, three-storey house impresses with its antique arches, marble decorations and stone façades, which give it its unique character. The terrace with a breathtaking view of the church, the village and the surrounding countryside invites you to spend relaxing hours outdoors. The garage, right next to the entrance area, is another plus point of this property. Equipped with the latest technology, including underfloor heating on the first floor and in the bathrooms, central air conditioning for heating and cooling and a photovoltaic system with 570 watts (12 panels), the house guarantees maximum efficiency with minimum consumption. Arrange a viewing today and let yourself be convinced of the advantages of this dream property.
Show More Show Less

This renovated village house from 1890 is located in the picturesque village of Pina, in the municipality of Algaida. Its location on the outskirts of the village, yet centrally located, offers maximum tranquillity. Through the spacious entrance hall and through an antique marble arch you enter the spacious living room and the kitchen, and from there you enter directly into the patio with the terrace and the pool. There is also a guest WC on this level. There are three large bedrooms on the second floor, two of which share a spacious bathroom. The master suite has its own bathroom, dressing room and bathtub. On the second floor there is a large attic which could be converted into 2 further bedrooms. A bathroom is already available. The historic, three-storey house impresses with its antique arches, marble decorations and stone façades, which give it its unique character. The terrace with a breathtaking view of the church, the village and the surrounding countryside invites you to spend relaxing hours outdoors. The garage, right next to the entrance area, is another plus point of this property. Equipped with the latest technology, including underfloor heating on the first floor and in the bathrooms, central air conditioning for heating and cooling and a photovoltaic system with 570 watts (12 panels), the house guarantees maximum efficiency with minimum consumption. Arrange a viewing today and let yourself be convinced of the advantages of this dream property.

Highlights:

  • Antique marble archway

  • Stone façades

  • Master suite with dressing room

  • Spacious patio with pool

  • Breathtaking terrace view

  • Underfloor heating

  • Central air conditioning

  • Photovoltaic system

  • Garage with direct access

  • Historic architectural details

  • Show More Show Less
Reference ID: ES253745089 Web ID: rcje

Listed by VON POLL REAL ESTATE Mallorca - Santa Maria | von Poll Immobilien GmbH

Contact email form:

Highlights:

  • Antique marble archway

  • Stone façades

  • Master suite with dressing room

  • Spacious patio with pool

  • Breathtaking terrace view

  • Underfloor heating

  • Central air conditioning

  • Photovoltaic system

  • Garage with direct access

  • Historic architectural details

Continue Exploring Related Collections