Beds: 5
Baths: 4 Full | 1 Half

4811 Sebastian Court, Naperville, Illinois, 60564, USA

Listed by: Terri Christian | @properties Christie’s International Real Estate

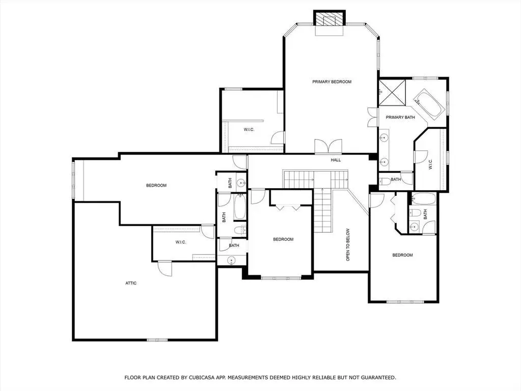
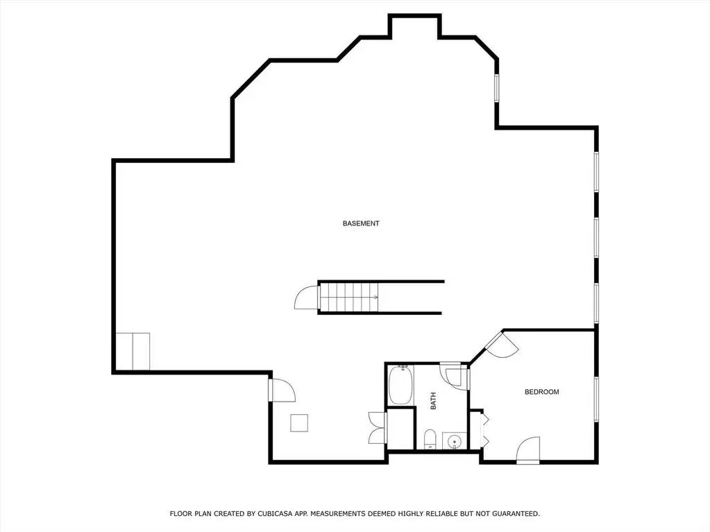
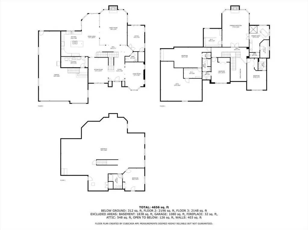
Welcome to 4811 Sebastian Court, a truly unique 4678 square foot home featuring a 4 car garage and in-ground pool! Situated on a half acre private lot in coveted River Run subdivision. Dining room with new neutral carpeting, tiered ceiling & wainscoting. Main level office with large closet & built in bookcase is adjacent to powder room. Closet could be converted to add shower to powder room. Huge family room has gas starter fireplace & opens to kitchen featuring vaulted ceiling, skylights, double oven, five burner cooktop, multiple cabinets with roll out shelving, French door fridge & center island with seating. Luxurious primary suite includes two walk-in closets, gas starter fireplace. Primary bath with cathedral ceiling, skylights, whirlpool tub, separate shower and dual vanity. Second bedroom with walk-in closet, Jack and Jill bath and access to unfinished 34x16 bonus room awaiting finishing touches. Fourth bedroom with ensuite bath. Partially finished basement with bedroom and full bath. Unique heated four car garage has 12 foot ceiling that can accommodate a boat or lift for car. Private yard features new fence and includes pool with tanning deck. Fire pit and sprinkler system. Central Vac, whole house fan. River Run club membership included with sale has Indoor/Outdoor pool, Clubhouse with banquet facility, Pickleball/tennis courts. Neuqua Valley high school district. Great proximity to shopping, dining and expressway!
Show More Show Less

Welcome to 4811 Sebastian Court, a truly unique 4678 square foot home featuring a 4 car garage and in-ground pool! Situated on a half acre private lot in coveted River Run subdivision. Dining room with new neutral carpeting, tiered ceiling & wainscoting. Main level office with large closet & built in bookcase is adjacent to powder room. Closet could be converted to add shower to powder room. Huge family room has gas starter fireplace & opens to kitchen featuring vaulted ceiling, skylights, double oven, five burner cooktop, multiple cabinets with roll out shelving, French door fridge & center island with seating. Luxurious primary suite includes two walk-in closets, gas starter fireplace. Primary bath with cathedral ceiling, skylights, whirlpool tub, separate shower and dual vanity. Second bedroom with walk-in closet, Jack and Jill bath and access to unfinished 34x16 bonus room awaiting finishing touches. Fourth bedroom with ensuite bath. Partially finished basement with bedroom and full bath. Unique heated four car garage has 12 foot ceiling that can accommodate a boat or lift for car. Private yard features new fence and includes pool with tanning deck. Fire pit and sprinkler system. Central Vac, whole house fan. River Run club membership included with sale has Indoor/Outdoor pool, Clubhouse with banquet facility, Pickleball/tennis courts. Neuqua Valley high school district. Great proximity to shopping, dining and expressway!

Highlights:

  • Gas starter fireplace

  • Vaulted ceilings with skylights

  • Custom cabinetry with roll out shelving

  • Whirlpool tub

  • Heated four car garage

  • In-ground pool with tanning deck

  • Central vacuum system

  • Pickleball/tennis courts

  • Whole house fan

  • Club membership with indoor/outdoor pool

  • Show More Show Less
Reference ID: 12444695 Web ID: oeoz

Listed by Terri Christian | @properties Christie’s International Real Estate

Contact email form:

Highlights:

  • Gas starter fireplace

  • Vaulted ceilings with skylights

  • Custom cabinetry with roll out shelving

  • Whirlpool tub

  • Heated four car garage

  • In-ground pool with tanning deck

  • Central vacuum system

  • Pickleball/tennis courts

  • Whole house fan

  • Club membership with indoor/outdoor pool

Continue Exploring Related Collections