Beds: 5
Baths: 5 Full

Luino, Italy

Listed by: Stresa Luxury Real Estate

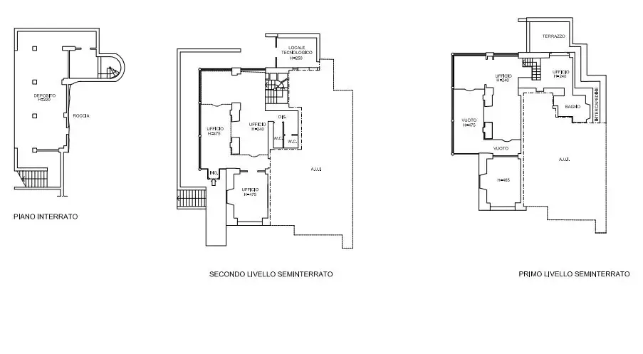
Period villa for sale in Luino, on the Lombard shore of Lake Maggiore. The year of construction is 1896, the complete renovation is in 1996. The prestigious period villa has a wonderful view of Lake Maggiore. The total area measures 800 square meters which encloses the main villa, the loft and the annex. The park is pleasantly planted, such as to offer a fascinating flowering, for most of the year. Its surface is 5,000 square meters. The prestigious villa has been renovated with particular attention to detail and using the best materials. The villa has four floors, all connected by the lift and the scenic staircase, illuminated at its peak by a large skylight. The ground floor is distributed with a large living room, dining room, kitchen. There are two large terraces with romantic views of the lake. The first floor with the sleeping area with a double bedroom with en suite bathroom with whirlpool tub and a wardrobe room. Continuing, there is another room with private bathroom and terrace. Upstairs in the attic there are two suites both with living area and bathroom. On this floor, of course, the view of the lake is even more beautiful. In the basement there is the area of ??the guest bathrooms. The loft measures 180sqm plus 100sqm of basement with large ceilings, and large lounges, which could be used as an office. These areas are surrounded by a large terrace. Thanks to the double height, this floor has a mezzanine divided into three rooms. Inside the property there is a pleasant independent annex on two levels with a terrace and a magnificent lake view. The latter is an interesting solution for a caretaker or for guests. The swimming pool is located in an upper area of ??the park, this part is equipped with a gazebo, changing room and shower. Inside the property there is a gym area of ??about 60 square meters, with large windows. The large garage of 160 square meters, can accommodate four cars and the laundry room complete the property. Historic villa with annex, park and swimming pool for sale in Luino on Lake Maggiore Period villa for sale in Luino, on the Lombard shore of Lake Maggiore. The year of construction is 1896, the complete renovation is in 1996. The prestigious period villa has a wonderful view of Lake Maggiore. The total area measures 800 square meters which encloses the main villa, the loft and the annex. The park is pleasantly planted, such as to offer a fascinating flowering, for most of the year. Its surface is 5,000 square meters. The prestigious villa has been renovated with particular attention to detail and using the best materials. The villa has four floors, all connected by the lift and the scenic staircase, illuminated at its peak by a large skylight. The ground floor is distributed with a large living room, dining room, kitchen. There are two large terraces with romantic views of the lake. The first floor with the sleeping area with a double bedroom with en suite bathroom with whirlpool tub and a wardrobe room. Continuing, there is another room with private bathroom and terrace. Upstairs in the attic there are two suites both with living area and bathroom. On this floor, of course, the view of the lake is even more beautiful. In the basement there is the area of ??the guest bathrooms. The loft measures 180sqm plus 100sqm of basement with large ceilings, and large lounges, which could be used as an office. These areas are surrounded by a large terrace. Thanks to the double height, this floor has a mezzanine divided into three rooms. Inside the property there is a pleasant independent annex on two levels with a terrace and a magnificent lake view. The latter is an interesting solution for a caretaker or for guests. The swimming pool is located in an upper area of ??the park, this part is equipped with a gazebo, changing room and shower. Inside the property there is a gym area of ??about 60 square meters, with large windows. The large 160 square meter garage can accommodate four cars and the laundry room complete the property.
Show More Show Less

Period villa for sale in Luino, on the Lombard shore of Lake Maggiore. The year of construction is 1896, the complete renovation is in 1996. The prestigious period villa has a wonderful view of Lake Maggiore. The total area measures 800 square meters which encloses the main villa, the loft and the annex. The park is pleasantly planted, such as to offer a fascinating flowering, for most of the year. Its surface is 5,000 square meters. The prestigious villa has been renovated with particular attention to detail and using the best materials. The villa has four floors, all connected by the lift and the scenic staircase, illuminated at its peak by a large skylight. The ground floor is distributed with a large living room, dining room, kitchen. There are two large terraces with romantic views of the lake. The first floor with the sleeping area with a double bedroom with en suite bathroom with whirlpool tub and a wardrobe room. Continuing, there is another room with private bathroom and terrace. Upstairs in the attic there are two suites both with living area and bathroom. On this floor, of course, the view of the lake is even more beautiful. In the basement there is the area of ??the guest bathrooms. The loft measures 180sqm plus 100sqm of basement with large ceilings, and large lounges, which could be used as an office. These areas are surrounded by a large terrace. Thanks to the double height, this floor has a mezzanine divided into three rooms. Inside the property there is a pleasant independent annex on two levels with a terrace and a magnificent lake view. The latter is an interesting solution for a caretaker or for guests. The swimming pool is located in an upper area of ??the park, this part is equipped with a gazebo, changing room and shower. Inside the property there is a gym area of ??about 60 square meters, with large windows. The large garage of 160 square meters, can accommodate four cars and the laundry room complete the property. Historic villa with annex, park and swimming pool for sale in Luino on Lake Maggiore Period villa for sale in Luino, on the Lombard shore of Lake Maggiore. The year of construction is 1896, the complete renovation is in 1996. The prestigious period villa has a wonderful view of Lake Maggiore. The total area measures 800 square meters which encloses the main villa, the loft and the annex. The park is pleasantly planted, such as to offer a fascinating flowering, for most of the year. Its surface is 5,000 square meters. The prestigious villa has been renovated with particular attention to detail and using the best materials. The villa has four floors, all connected by the lift and the scenic staircase, illuminated at its peak by a large skylight. The ground floor is distributed with a large living room, dining room, kitchen. There are two large terraces with romantic views of the lake. The first floor with the sleeping area with a double bedroom with en suite bathroom with whirlpool tub and a wardrobe room. Continuing, there is another room with private bathroom and terrace. Upstairs in the attic there are two suites both with living area and bathroom. On this floor, of course, the view of the lake is even more beautiful. In the basement there is the area of ??the guest bathrooms. The loft measures 180sqm plus 100sqm of basement with large ceilings, and large lounges, which could be used as an office. These areas are surrounded by a large terrace. Thanks to the double height, this floor has a mezzanine divided into three rooms. Inside the property there is a pleasant independent annex on two levels with a terrace and a magnificent lake view. The latter is an interesting solution for a caretaker or for guests. The swimming pool is located in an upper area of ??the park, this part is equipped with a gazebo, changing room and shower. Inside the property there is a gym area of ??about 60 square meters, with large windows. The large 160 square meter garage can accommodate four cars and the laundry room complete the property.

Highlights:

  • Elevator

  • Whirlpool tub

  • Lake-view terraces

  • Skylight

  • Gym area Large garage

  • Swimming pool with gazebo

  • Custom renovations

  • Annex with lake view

  • Show More Show Less
Reference ID: 2494603 Web ID: ckyr

Contact Agent | Stresa Luxury Real Estate

Contact email form:

Highlights:

  • Elevator

  • Whirlpool tub

  • Lake-view terraces

  • Skylight

  • Gym area Large garage

  • Swimming pool with gazebo

  • Custom renovations

  • Annex with lake view

Continue Exploring Related Collections