Beds: 7
Baths: 3 Full

Kraiburg am Inn, Germany

Listed by: VON POLL IMMOBILIEN Mühldorf am Inn | von Poll Immobilien GmbH

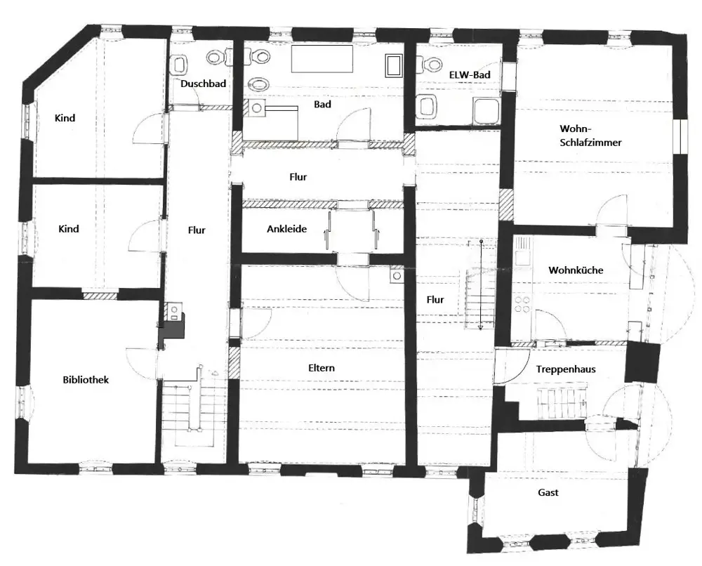
This listed baroque residence with extensive grounds is located within the historic town center and just a few steps away from the southern-style market square - in an idyllic location. The property is situated on an island with a surrounding artificial stream fed by the Wanklbach. This unique location promises absolute privacy in a secluded setting in the middle of the village center - completely untouched by the hustle and bustle of urban life. The picturesque main building of the former Bruckmühle dating from 1767 in the style of a baroque manor house was completely renovated back in the 1990s and most recently extensively and lovingly modernized in 2016. Today, a successful combination of historical splendor and modern living comfort awaits you in the multifaceted walls. On two lovingly renovated floors, residents will find plenty of space for living, well-being and self-fulfilment on over 380 m² of living space. The first floor impresses above all with its cross vaults and Bohemian vaults, but also with a variety of special rooms and retreats. Whether it's the eat-in kitchen with luxury fittings, the atmospheric parlor with tiled stove, the spacious split-level living room with fireplace or the cosy lounge with bay window, each room has its very own character and reveals its very own purpose. The upper floor offers no fewer highlights and impresses with a total of three high-quality, modern bathrooms, stately bedrooms and study rooms and a separate granny apartment, which exudes its very own charm with large arched windows. The top floor also offers exciting expansion potential for a partial area. But it's not just the top floor that has considerable potential; the longhouse, the former farmhouse along the stream, also offers around 100 m² of further expansion potential for a wide variety of uses and space for a studio with a large glass front, for example. The technical building infrastructure such as water, sewage, electricity and heating has already been prepared. The garage, former horse boxes and an outdoor seating area are currently located there. The long house and the residential building are connected by the arched gateway with a restored wooden gate over 100 years old and 5 meters high, which provides access to the outside area and the idyllic garden. Whether you choose access via the archway, the various points in the house or via the imposing outdoor seating area, the garden offers views from all sides and on two levels and, above all, maximum privacy. The central point in the garden is undoubtedly the elaborate, high-quality swimming pond with a depth of up to 3.5 meters and exquisite botanical planting. Here you can jump into the water from the jetty, enjoy a wonderful view of the house and garden from the deckchair on the wooden deck or simply let your mind wander while watching the koi. These and other atmospheric oases in the garden round off an exquisite living ambience on this stately property. The symbiosis of urbanity and maximum privacy, paired with superior living comfort and plenty of space in a historic setting leaves virtually nothing to be desired! Come and see for yourself! We would be delighted to introduce you to this dream retreat! As a first step, please send us a written inquiry (real estate portal, homepage, e-mail) with your full contact details. We look forward to your inquiry! ...and here are a few more impressions of the property: https://youtu.be/hDTbViBUSDg
Show More Show Less

This listed baroque residence with extensive grounds is located within the historic town center and just a few steps away from the southern-style market square - in an idyllic location. The property is situated on an island with a surrounding artificial stream fed by the Wanklbach. This unique location promises absolute privacy in a secluded setting in the middle of the village center - completely untouched by the hustle and bustle of urban life. The picturesque main building of the former Bruckmühle dating from 1767 in the style of a baroque manor house was completely renovated back in the 1990s and most recently extensively and lovingly modernized in 2016. Today, a successful combination of historical splendor and modern living comfort awaits you in the multifaceted walls. On two lovingly renovated floors, residents will find plenty of space for living, well-being and self-fulfilment on over 380 m² of living space. The first floor impresses above all with its cross vaults and Bohemian vaults, but also with a variety of special rooms and retreats. Whether it's the eat-in kitchen with luxury fittings, the atmospheric parlor with tiled stove, the spacious split-level living room with fireplace or the cosy lounge with bay window, each room has its very own character and reveals its very own purpose. The upper floor offers no fewer highlights and impresses with a total of three high-quality, modern bathrooms, stately bedrooms and study rooms and a separate granny apartment, which exudes its very own charm with large arched windows. The top floor also offers exciting expansion potential for a partial area. But it's not just the top floor that has considerable potential; the longhouse, the former farmhouse along the stream, also offers around 100 m² of further expansion potential for a wide variety of uses and space for a studio with a large glass front, for example. The technical building infrastructure such as water, sewage, electricity and heating has already been prepared. The garage, former horse boxes and an outdoor seating area are currently located there. The long house and the residential building are connected by the arched gateway with a restored wooden gate over 100 years old and 5 meters high, which provides access to the outside area and the idyllic garden. Whether you choose access via the archway, the various points in the house or via the imposing outdoor seating area, the garden offers views from all sides and on two levels and, above all, maximum privacy. The central point in the garden is undoubtedly the elaborate, high-quality swimming pond with a depth of up to 3.5 meters and exquisite botanical planting. Here you can jump into the water from the jetty, enjoy a wonderful view of the house and garden from the deckchair on the wooden deck or simply let your mind wander while watching the koi. These and other atmospheric oases in the garden round off an exquisite living ambience on this stately property. The symbiosis of urbanity and maximum privacy, paired with superior living comfort and plenty of space in a historic setting leaves virtually nothing to be desired! Come and see for yourself! We would be delighted to introduce you to this dream retreat! As a first step, please send us a written inquiry (real estate portal, homepage, e-mail) with your full contact details. We look forward to your inquiry! ...and here are a few more impressions of the property: https://youtu.be/hDTbViBUSDg

Highlights:

  • Baroque manor house with cross vaults and Bohemian vaults

  • Eat-in kitchen with luxury fittings

  • Atmospheric parlor with tiled stove

  • Split-level living room with fireplace

  • High-quality, modern bathrooms

  • Studio potential with large glass front

  • Elaborate swimming pond with botanical planting

  • Restored wooden gate over 100 years old

  • Maximum privacy in garden with multiple viewing points

  • Show More Show Less
Reference ID: 25338023-03 Web ID: fewe

Listed by VON POLL IMMOBILIEN Mühldorf am Inn | von Poll Immobilien GmbH

Contact email form:

Highlights:

  • Baroque manor house with cross vaults and Bohemian vaults

  • Eat-in kitchen with luxury fittings

  • Atmospheric parlor with tiled stove

  • Split-level living room with fireplace

  • High-quality, modern bathrooms

  • Studio potential with large glass front

  • Elaborate swimming pond with botanical planting

  • Restored wooden gate over 100 years old

  • Maximum privacy in garden with multiple viewing points

Continue Exploring Related Collections