Beds: 0
Baths: 2 Full

Radebeul, Germany

Listed by: VON POLL IMMOBILIEN Radebeul | von Poll Immobilien GmbH

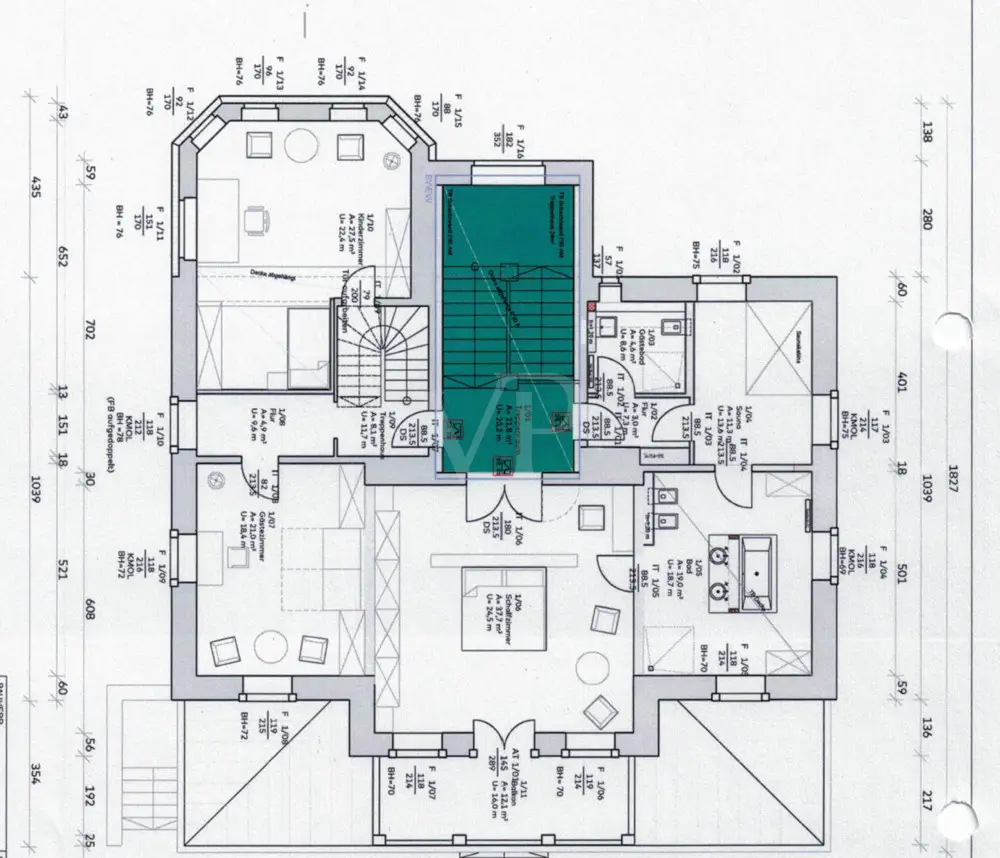
For sale is a well-known listed villa, built around 1870 by the Ziller brothers, with well-kept grounds and views of the vineyards. The property has been renovated to a high standard and in an exemplary manner. From 2012, the roof, façade, windows and their frames were renovated true to the original. Inside, the owners have adhered to the design typical of the period and have been able to preserve the stately charm of the high, bright rooms as far as possible. The floor plan is individual and also offers the option of use as a residential and commercial building thanks to the commercial space in the basement and on the first floor. On the ground floor there are 4 large, bright rooms, including the "library" with fireplace, a huge living room and the modern kitchen with access to the large conservatory. Particularly impressive on this floor is the dining room, bright and flooded with light. The spacious floor plan offers the possibility of running a law firm, practice or office on the ground floor and accessing the private rooms via the staircase. The upper floor is reached via a sophisticated staircase with original Art Nouveau glazing in the large windows. The spacious floor plan offers the possibility of running a law firm, practice or office on the ground floor and accessing the private rooms via the staircase. The upper floor, with 3 large living rooms and a beautiful bathroom, has also been renovated to a high standard and with great attention to detail. A large bathroom, a guest bathroom, a sauna preparation room and a balcony can also be found on this floor. The top floor offers an additional 140 m² of expansion space. The rooms are generously proportioned and flooded with light. The furnishings are of a high standard and the bathrooms have been exclusively renovated. Other special features include the fireplace on the first floor, the high-quality fitted kitchen, an alarm system and the sophisticated color scheme. A staircase leads to the top floor, a large room was formerly used as a master bedroom and offers plenty of space, followed by 2 further rooms. In this dreamlike villa, with a magnificent view of the vineyards, you can enjoy the peace and quiet you deserve while still being very close to urban life. We would therefore be delighted to show you your new home at a viewing appointment.
Show More Show Less

For sale is a well-known listed villa, built around 1870 by the Ziller brothers, with well-kept grounds and views of the vineyards. The property has been renovated to a high standard and in an exemplary manner. From 2012, the roof, façade, windows and their frames were renovated true to the original. Inside, the owners have adhered to the design typical of the period and have been able to preserve the stately charm of the high, bright rooms as far as possible. The floor plan is individual and also offers the option of use as a residential and commercial building thanks to the commercial space in the basement and on the first floor. On the ground floor there are 4 large, bright rooms, including the "library" with fireplace, a huge living room and the modern kitchen with access to the large conservatory. Particularly impressive on this floor is the dining room, bright and flooded with light. The spacious floor plan offers the possibility of running a law firm, practice or office on the ground floor and accessing the private rooms via the staircase. The upper floor is reached via a sophisticated staircase with original Art Nouveau glazing in the large windows. The spacious floor plan offers the possibility of running a law firm, practice or office on the ground floor and accessing the private rooms via the staircase. The upper floor, with 3 large living rooms and a beautiful bathroom, has also been renovated to a high standard and with great attention to detail. A large bathroom, a guest bathroom, a sauna preparation room and a balcony can also be found on this floor. The top floor offers an additional 140 m² of expansion space. The rooms are generously proportioned and flooded with light. The furnishings are of a high standard and the bathrooms have been exclusively renovated. Other special features include the fireplace on the first floor, the high-quality fitted kitchen, an alarm system and the sophisticated color scheme. A staircase leads to the top floor, a large room was formerly used as a master bedroom and offers plenty of space, followed by 2 further rooms. In this dreamlike villa, with a magnificent view of the vineyards, you can enjoy the peace and quiet you deserve while still being very close to urban life. We would therefore be delighted to show you your new home at a viewing appointment.

Highlights:

  • Fireplace with original Art Nouveau glazing

  • Solarium with access to the garden

  • High-quality fitted kitchen

  • Stately charm with bright, spacious rooms

  • Sophisticated staircase

  • Sauna preparation room

  • Large conservatory with garden access

  • Show More Show Less
Reference ID: 25229028 Web ID: kflp

Listed by VON POLL IMMOBILIEN Radebeul | von Poll Immobilien GmbH

Contact email form:

Highlights:

  • Fireplace with original Art Nouveau glazing

  • Solarium with access to the garden

  • High-quality fitted kitchen

  • Stately charm with bright, spacious rooms

  • Sophisticated staircase

  • Sauna preparation room

  • Large conservatory with garden access

Continue Exploring Related Collections