Beds: 10
Baths: 8 Full | 1 Half

182 Ballston Avenue, Saratoga Springs, New York, 12866, USA

Listed by: Ritch Gregory | Howard Hanna Real Estate Services

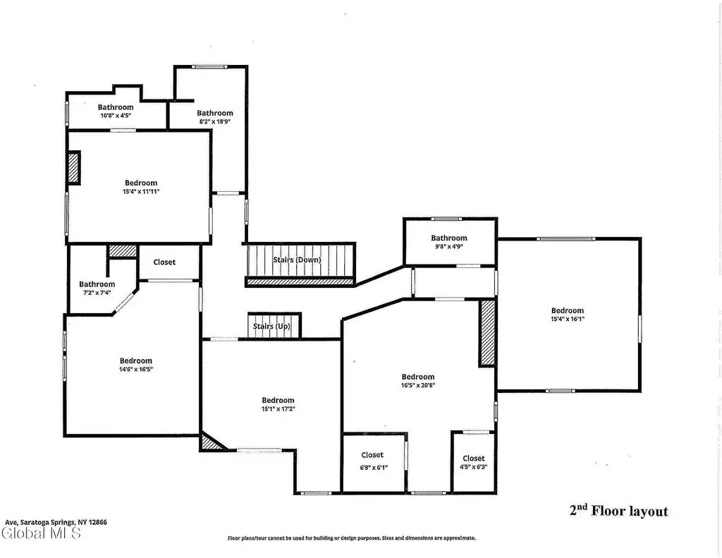
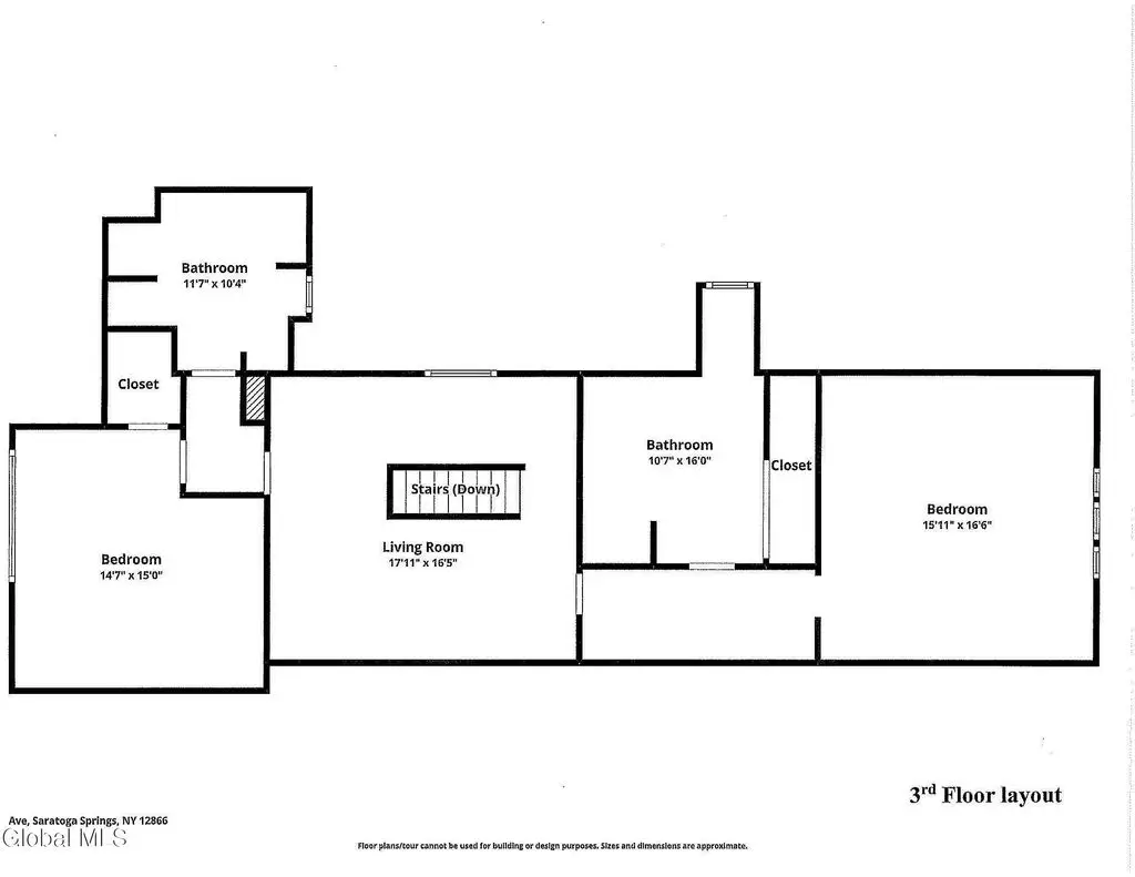
Step into Saratoga's history with this extraordinary Queen Anne-style home and carriage house, dating back to the 1800s. Once a thriving Bed & Breakfast, this property has evolved into a sought-after short-term rental, offering strong income potential. The carriage house, originally the owner's residence, complements the main home with flexible living options for guests, family, or investment purposes. A private in-ground pool, nestled between the two residences, creates the perfect retreat for relaxation or entertaining. Spanning .65 acres and bordered by three streets, the property offers privacy while being just minutes from Broadway, SPAC, the State Park, dog park, world-famous race track, Saratoga Casino, shopping, and dining. Whether envisioned as a family compound, investment property, or continuation of its hospitality legacy, this is a rare chance to own a piece of Saratoga's charm in a highly desirable location.To give an overview, the main dwelling has a total of 8 bedrooms, 7 full baths, 1 half bath. These totals include an attached 1 bedroom apartment (currently rented). This apartment is not shown on the floor layout drawings. The carriage house is comprised of 2 bedrooms, full bathroom, dining room, living room and kitchen..
Show More Show Less

Step into Saratoga's history with this extraordinary Queen Anne-style home and carriage house, dating back to the 1800s. Once a thriving Bed & Breakfast, this property has evolved into a sought-after short-term rental, offering strong income potential. The carriage house, originally the owner's residence, complements the main home with flexible living options for guests, family, or investment purposes. A private in-ground pool, nestled between the two residences, creates the perfect retreat for relaxation or entertaining. Spanning .65 acres and bordered by three streets, the property offers privacy while being just minutes from Broadway, SPAC, the State Park, dog park, world-famous race track, Saratoga Casino, shopping, and dining. Whether envisioned as a family compound, investment property, or continuation of its hospitality legacy, this is a rare chance to own a piece of Saratoga's charm in a highly desirable location.To give an overview, the main dwelling has a total of 8 bedrooms, 7 full baths, 1 half bath. These totals include an attached 1 bedroom apartment (currently rented). This apartment is not shown on the floor layout drawings. The carriage house is comprised of 2 bedrooms, full bathroom, dining room, living room and kitchen..

Highlights:

  • Queen Anne-style architecture

  • Carriage house with flexible living options

  • Private in-ground pool for relaxation

  • .65-acre property with privacy

  • Close proximity to Broadway, SPAC, and State Park

  • Show More Show Less
Reference ID: 202525344 Web ID: lmga

Listed by Ritch Gregory | Howard Hanna Real Estate Services

Contact by phone:  518-466-0677
Contact email form:

Highlights:

  • Queen Anne-style architecture

  • Carriage house with flexible living options

  • Private in-ground pool for relaxation

  • .65-acre property with privacy

  • Close proximity to Broadway, SPAC, and State Park

Continue Exploring Related Collections