Beds: 3
Baths: 4 Full

3435 Wendover Road, Dallas, Texas, 75214, USA

Listed by: Lance Blann | Dave Perry-Miller Real Estate

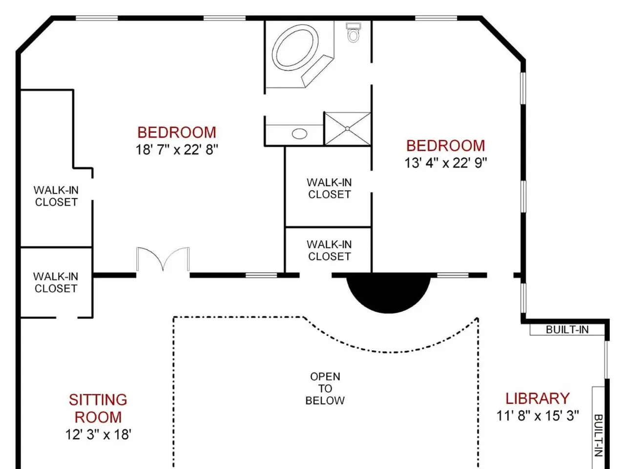
Step into your slice of Texas Hill Country in the heart of Lakewood, one of Dallas' most prestigious neighborhoods. Home also being sold as a building lot. An incredibly private setting with 1.290 acres, 56,190 square feet per plat. This creekside property is hidden behind rolling lawns and mature trees, creating a private oasis in the middle of Dallas. Built to last a lifetime by the owner, a commercial builder, high-quality construction is evident throughout. This luxurious home was built with thoughtful design, premium materials, and custom features throughout. Oversized bedrooms including an enormous primary suite with two full baths. The lower level has over 2,000 square feet of flexible space perfect for a media room, studio, or office. Walking distance to Lakewood Elementary and White Rock Lake, this property includes two dwellings, the 6,570 square foot main house and an 800 square foot guest house. Additional features: Beautiful library, cathedral ceilings, temp-controlled four-car garage, backup generator, tankless water heater. Pool renderings and guest house photos available.
Show More Show Less

Step into your slice of Texas Hill Country in the heart of Lakewood, one of Dallas' most prestigious neighborhoods. Home also being sold as a building lot. An incredibly private setting with 1.290 acres, 56,190 square feet per plat. This creekside property is hidden behind rolling lawns and mature trees, creating a private oasis in the middle of Dallas. Built to last a lifetime by the owner, a commercial builder, high-quality construction is evident throughout. This luxurious home was built with thoughtful design, premium materials, and custom features throughout. Oversized bedrooms including an enormous primary suite with two full baths. The lower level has over 2,000 square feet of flexible space perfect for a media room, studio, or office. Walking distance to Lakewood Elementary and White Rock Lake, this property includes two dwellings, the 6,570 square foot main house and an 800 square foot guest house. Additional features: Beautiful library, cathedral ceilings, temp-controlled four-car garage, backup generator, tankless water heater. Pool renderings and guest house photos available.

Highlights:

  • Cathedral ceilings

  • Premium materials throughout

  • Temp-controlled four-car garage

  • Backup generator

  • Tankless water heater

  • Show More Show Less
Reference ID: 21029474 Web ID: mdfs

Listed by Lance Blann | Dave Perry-Miller Real Estate

Contact by phone:  (972) 200-3664
Contact email form:

Highlights:

  • Cathedral ceilings

  • Premium materials throughout

  • Temp-controlled four-car garage

  • Backup generator

  • Tankless water heater