Beds: 4
Baths: 4 Full | 1 Half

21 North May Street #305, Chicago, Illinois, 60607, USA

Listed by: Sarah Marsh | @properties Christie’s International Real Estate

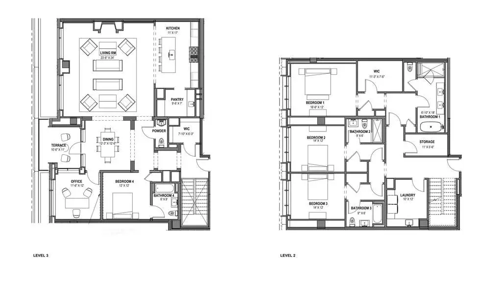
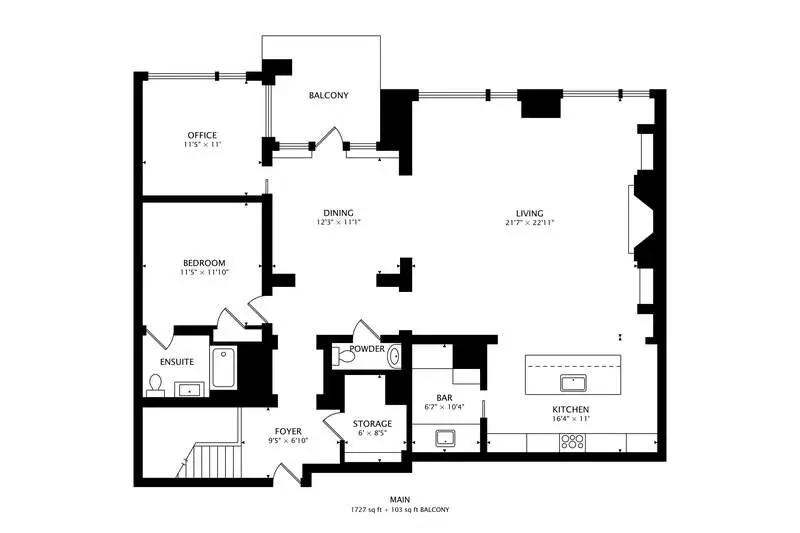
Introducing the first duplex resale at the Embry! Welcome to Unit 305, an exceptionally rare four-bedroom, four-and-a-half-bath duplex residence in the heart of the West Loop. One of only four duplex homes built in this celebrated luxury development, this home at almost 3,700 sq ft offers impeccable features including elegant herringbone hardwood floor in the foyer and living room along with arched entryways and fireplace surrounds. The dramatic ceiling heights and striking grand staircase create a sense of arrival from the moment you step inside. The main level is anchored by an expansive great room and an upgraded Atelier Jouvence Fireplace with floor-to-ceiling windows that fill the space with natural light. A stunning chef's kitchen is outfitted with Bovelli cabinetry, Wolf, Sub-Zero, and Miele appliances, upgraded 2' quartzite countertops, and a large butler's pantry. The open flow between the kitchen, dining area, and living room makes the home ideal for both entertaining and daily living. A private terrace off the dining room offers charming city tree lined views and creates the perfect indoor-outdoor connection. Thoughtful design continues with multiple flexible spaces rarely found in a condominium, including a separate den/office, a fully built-out lower-level office with custom desk and shelving, and an oversized laundry room with dual washers and dryers and a second office area complete with built-in desk and cabinetry. Each of the four bedrooms is ensuite, providing privacy and comfort for family and guests alike. The primary suite is a serene retreat featuring a custom walk-in closet and spa-caliber bath with dual vanities, freestanding soaking tub, radiant heated floors, Lefroy Brooks fixtures and a glass-enclosed walk-in shower. Additional details include designer lighting, multi-zoned HVAC, prewiring for smart home integration, automated shades, abundant storage, and a heated tandem parking space accommodating two cars. Embry is a boutique fifteen-story building that has quickly become the West Loop's most sought-after address. Residents enjoy a full suite of amenities including 24-hour door staff, a dramatic double-height lobby, an open-air firepit oasis, outdoor kitchen with grill and dining, an indoor/outdoor fitness center with putting green, a private luxe owner's lounge, and dog run. With its premier location just steps from world-class dining, boutique shopping, vibrant nightlife, and neighborhood parks, Embry offers a lifestyle of sophistication and convenience. With its rare duplex layout, extensive customizations, and unmatched location, this residence represents a truly special opportunity in one of Chicago's most architecturally significant developments. Broker owned.
Show More Show Less

Introducing the first duplex resale at the Embry! Welcome to Unit 305, an exceptionally rare four-bedroom, four-and-a-half-bath duplex residence in the heart of the West Loop. One of only four duplex homes built in this celebrated luxury development, this home at almost 3,700 sq ft offers impeccable features including elegant herringbone hardwood floor in the foyer and living room along with arched entryways and fireplace surrounds. The dramatic ceiling heights and striking grand staircase create a sense of arrival from the moment you step inside. The main level is anchored by an expansive great room and an upgraded Atelier Jouvence Fireplace with floor-to-ceiling windows that fill the space with natural light. A stunning chef's kitchen is outfitted with Bovelli cabinetry, Wolf, Sub-Zero, and Miele appliances, upgraded 2' quartzite countertops, and a large butler's pantry. The open flow between the kitchen, dining area, and living room makes the home ideal for both entertaining and daily living. A private terrace off the dining room offers charming city tree lined views and creates the perfect indoor-outdoor connection. Thoughtful design continues with multiple flexible spaces rarely found in a condominium, including a separate den/office, a fully built-out lower-level office with custom desk and shelving, and an oversized laundry room with dual washers and dryers and a second office area complete with built-in desk and cabinetry. Each of the four bedrooms is ensuite, providing privacy and comfort for family and guests alike. The primary suite is a serene retreat featuring a custom walk-in closet and spa-caliber bath with dual vanities, freestanding soaking tub, radiant heated floors, Lefroy Brooks fixtures and a glass-enclosed walk-in shower. Additional details include designer lighting, multi-zoned HVAC, prewiring for smart home integration, automated shades, abundant storage, and a heated tandem parking space accommodating two cars. Embry is a boutique fifteen-story building that has quickly become the West Loop's most sought-after address. Residents enjoy a full suite of amenities including 24-hour door staff, a dramatic double-height lobby, an open-air firepit oasis, outdoor kitchen with grill and dining, an indoor/outdoor fitness center with putting green, a private luxe owner's lounge, and dog run. With its premier location just steps from world-class dining, boutique shopping, vibrant nightlife, and neighborhood parks, Embry offers a lifestyle of sophistication and convenience. With its rare duplex layout, extensive customizations, and unmatched location, this residence represents a truly special opportunity in one of Chicago's most architecturally significant developments. Broker owned.

Highlights:

  • Herringbone hardwood floors

  • Arched entryways and fireplace surrounds

  • Grand staircase

  • Chef's kitchen with Bovelli cabinetry

  • Floor-to-ceiling windows

  • Private terrace with city views

  • Multiple flexible spaces

  • Ensuite bedrooms

  • Spa-caliber primary bath

  • Automated shades

  • Show More Show Less
Reference ID: 12487435 Web ID: fhbd

Listed by Sarah Marsh | @properties Christie’s International Real Estate

Contact email form:

Highlights:

  • Herringbone hardwood floors

  • Arched entryways and fireplace surrounds

  • Grand staircase

  • Chef's kitchen with Bovelli cabinetry

  • Floor-to-ceiling windows

  • Private terrace with city views

  • Multiple flexible spaces

  • Ensuite bedrooms

  • Spa-caliber primary bath

  • Automated shades