Beds: 4
Baths: 2 Full

Baveno, Italy

Listed by: Stresa Luxury Real Estate

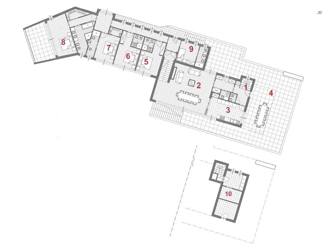
In a fascinating position in Baveno with a view on Lake Maggiore and the Borromeo Islands, a great property with a villa to be restructured and park of 10.980 sqm. The villa is on a only level, and now composed by a living room, kitchen, four bedrooms and two bathrooms. It has been realized a project for the renovation and amplification that sees a modern villa with big windows and on two levels following the ground disposition. The villa will be of 252 sqm, 160 smq of terraces. The magnificent view over the Stresa bay and the Islands makes this property absolutely unique.
Show More Show Less

In a fascinating position in Baveno with a view on Lake Maggiore and the Borromeo Islands, a great property with a villa to be restructured and park of 10.980 sqm. The villa is on a only level, and now composed by a living room, kitchen, four bedrooms and two bathrooms. It has been realized a project for the renovation and amplification that sees a modern villa with big windows and on two levels following the ground disposition. The villa will be of 252 sqm, 160 smq of terraces. The magnificent view over the Stresa bay and the Islands makes this property absolutely unique.

Highlights:

  • Lake Maggiore and Borromeo Islands view

  • Modern villa with big windows

  • Two-level villa

  • 10,980 sqm park

  • Magnificent Stresa bay view

  • Show More Show Less
Reference ID: 2494148 Web ID: jsuw

Contact Agent | Stresa Luxury Real Estate

Contact email form:

Highlights:

  • Lake Maggiore and Borromeo Islands view

  • Modern villa with big windows

  • Two-level villa

  • 10,980 sqm park

  • Magnificent Stresa bay view