Beds: 5
Baths: 4 Full | 1 Half

16 TBD Bramblebrook Road, Ardsley, New York, 10502, USA

Listed by: James J Mulvey Jr | Houlihan Lawrence

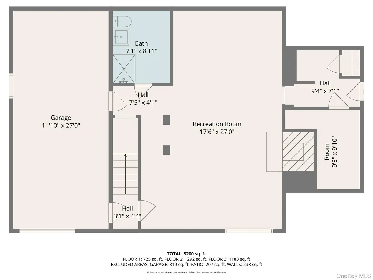
Be the first to own this stunning brand-new construction home designed with modern living in mind. This spacious five-bedroom, four and a half-bath residence features a thoughtfully designed layout, including a sought-after first-floor master suiteperfect for privacy and convenience. Flooded with natural light from oversized windows throughout, the open-concept main level offers seamless flow for entertaining and everyday living. A finished lower level adds versatile space for a media room, gym, or guest suite. The one-car garage provides added convenience in a thoughtfully scaled footprint. Set in the highly sought-after Ardsley School District, this home is ideally located near shops, restaurants, schools, parks, and major highways, offering both comfort and accessibility. Now in progress, this home presents a rare opportunity for buyers to customize final details and truly make it their own. From finishes to fixtures, you can bring your vision to life and create the home you've always dreamed of. Dont miss the chance to be part of this exciting new buildwhere every square foot reflects your style.
Show More Show Less

Be the first to own this stunning brand-new construction home designed with modern living in mind. This spacious five-bedroom, four and a half-bath residence features a thoughtfully designed layout, including a sought-after first-floor master suiteperfect for privacy and convenience. Flooded with natural light from oversized windows throughout, the open-concept main level offers seamless flow for entertaining and everyday living. A finished lower level adds versatile space for a media room, gym, or guest suite. The one-car garage provides added convenience in a thoughtfully scaled footprint. Set in the highly sought-after Ardsley School District, this home is ideally located near shops, restaurants, schools, parks, and major highways, offering both comfort and accessibility. Now in progress, this home presents a rare opportunity for buyers to customize final details and truly make it their own. From finishes to fixtures, you can bring your vision to life and create the home you've always dreamed of. Dont miss the chance to be part of this exciting new buildwhere every square foot reflects your style.

Highlights:

  • Custom cabinetry

  • Oversized windows

  • Open-concept layout

  • Finished lower level

  • First-floor master suite

  • Show More Show Less
Reference ID: 859094 Web ID: gued

Listed by James J Mulvey Jr | Houlihan Lawrence

Contact by phone:  (914) 447-6422
Contact email form:

Highlights:

  • Custom cabinetry

  • Oversized windows

  • Open-concept layout

  • Finished lower level

  • First-floor master suite