Beds:2
Baths:2 Full | 1 Half

1225 East Grand Avenue #B, El Segundo, California, 90245, USA

Listed by: Bill Ruane | Estate Properties

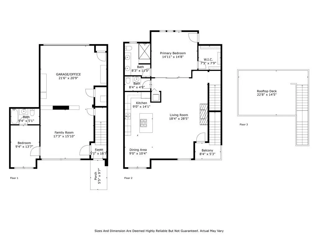
This beautifully updated 2 bedroom, 2.5 bathroom home offers just under 1800 sq ft of thoughtfully designed living space. The main level features new vinyl plank flooring, a private bedroom with an en-suite bathroom as well as two additional flexible spaces that can be used as a family room, office space, and/or a garage. The second floor showcases hardwood floors and an open-concept layout between the spacious kitchen and living room, complete with an electric fireplace. The kitchen itself has a large island, wine fridge, dishwasher, and plenty of storage.The spacious primary suite features a walk-in closet, a dual vanity bathroom, a large shower with seating, and a private balcony. A convenient half bath and stacked laundry are also located upstairs. The updated stairwell off the living room leads to a brand-new private deck with gas and water lines and electrical outlets—ideal for entertaining. Additional highlights include a new A/C unit, new Milgard windows, plenty of parking in the garage and/or carport, and ample storage under the stairs.
Show More Show Less

This beautifully updated 2 bedroom, 2.5 bathroom home offers just under 1800 sq ft of thoughtfully designed living space. The main level features new vinyl plank flooring, a private bedroom with an en-suite bathroom as well as two additional flexible spaces that can be used as a family room, office space, and/or a garage. The second floor showcases hardwood floors and an open-concept layout between the spacious kitchen and living room, complete with an electric fireplace. The kitchen itself has a large island, wine fridge, dishwasher, and plenty of storage.The spacious primary suite features a walk-in closet, a dual vanity bathroom, a large shower with seating, and a private balcony. A convenient half bath and stacked laundry are also located upstairs. The updated stairwell off the living room leads to a brand-new private deck with gas and water lines and electrical outlets—ideal for entertaining. Additional highlights include a new A/C unit, new Milgard windows, plenty of parking in the garage and/or carport, and ample storage under the stairs.

Highlights:

  • Vinyl plank flooring

  • Hardwood floors

  • Electric fireplace

  • Large kitchen island

  • Wine fridge

  • Walk-in closet

  • Dual vanity bathroom

  • Private balcony

  • Private deck with gas and water lines

  • Ample storage space

  • Show More Show Less
Walk-Thru
Reference ID:SB25201366 Web ID:xbhb

Listed by Bill Ruane | Estate Properties

Contact by phone:  3108772374
Contact email form:

Highlights:

  • Vinyl plank flooring

  • Hardwood floors

  • Electric fireplace

  • Large kitchen island

  • Wine fridge

  • Walk-in closet

  • Dual vanity bathroom

  • Private balcony

  • Private deck with gas and water lines

  • Ample storage space