Beds:6
Baths:3 Full

11333 Braddock Drive, Los Angeles, California, 90230, USA

Listed by: Bill Ruane | Estate Properties

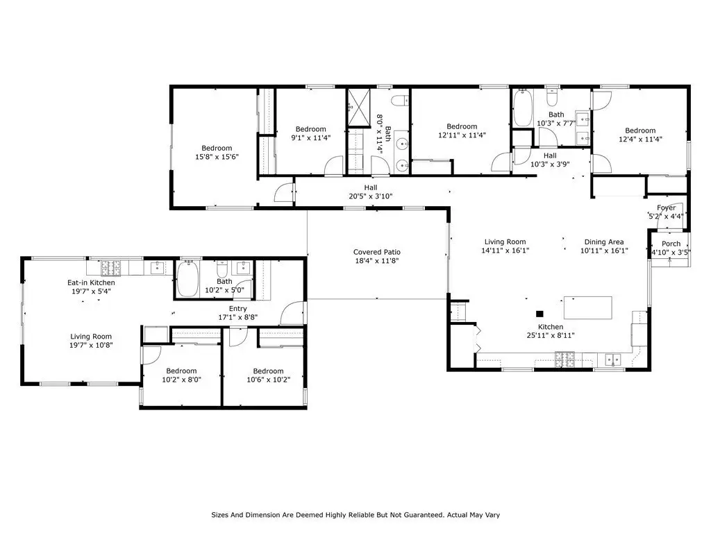
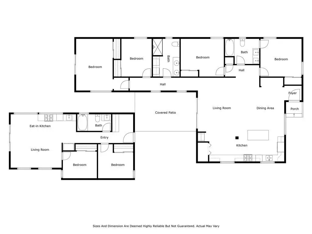
Welcome to 11333 Braddock Dr, a beautifully updated 6-bedroom, 3-bathroom mid-century home in the highly sought-after Blair Hills neighborhood of Culver City. This 2,390 sq. ft. gem, built in 1951, seamlessly blends classic charm with modern upgrades throughout. The open-concept living area is bathed in natural light, featuring gleaming hardwood floors and large windows that capture the surrounding greenery. The updated kitchen is a chef’s dream, with stainless steel appliances, quartz countertops, and ample cabinetry for storage. The spacious primary suite provides a peaceful retreat, while three additional bedrooms offer versatile space for a home office or guest rooms. Recent updates include a new roof, new high-efficiency furnace and AC, tankless water heaters, and energy-efficient windows. The exterior has been thoughtfully upgraded with a new driveway, walkway, and fully irrigated front and back yards—ideal for pets and relaxation. Enjoy the private backyard oasis with a manicured lawn, patio area for al fresco dining, and a hot tub for unwinding. The home also includes a charming unpermitted MILS (mother-in-law suite), with 2 bedrooms and 1 bathroom, that has been brought up to code. Located close to the 405 yet surprisingly quiet, this home offers the perfect blend of comfort, style, and convenience.
Show More Show Less

Welcome to 11333 Braddock Dr, a beautifully updated 6-bedroom, 3-bathroom mid-century home in the highly sought-after Blair Hills neighborhood of Culver City. This 2,390 sq. ft. gem, built in 1951, seamlessly blends classic charm with modern upgrades throughout. The open-concept living area is bathed in natural light, featuring gleaming hardwood floors and large windows that capture the surrounding greenery. The updated kitchen is a chef’s dream, with stainless steel appliances, quartz countertops, and ample cabinetry for storage. The spacious primary suite provides a peaceful retreat, while three additional bedrooms offer versatile space for a home office or guest rooms. Recent updates include a new roof, new high-efficiency furnace and AC, tankless water heaters, and energy-efficient windows. The exterior has been thoughtfully upgraded with a new driveway, walkway, and fully irrigated front and back yards—ideal for pets and relaxation. Enjoy the private backyard oasis with a manicured lawn, patio area for al fresco dining, and a hot tub for unwinding. The home also includes a charming unpermitted MILS (mother-in-law suite), with 2 bedrooms and 1 bathroom, that has been brought up to code. Located close to the 405 yet surprisingly quiet, this home offers the perfect blend of comfort, style, and convenience.

Highlights:

  • Hardwood floors

  • Quartz countertops

  • Stainless steel appliances

  • Tankless water heaters

  • Manicured lawn

  • Hot tub

  • Show More Show Less
Walk-Thru
Reference ID:SB25195285 Web ID:nlhl

Listed by Bill Ruane | Estate Properties

Contact by phone:  3108772374
Contact email form:

Highlights:

  • Hardwood floors

  • Quartz countertops

  • Stainless steel appliances

  • Tankless water heaters

  • Manicured lawn

  • Hot tub