Beds:2
Baths:2 Full

Rheinsberg, Germany

Listed by: VON POLL IMMOBILIEN Wandlitz | von Poll Immobilien GmbH

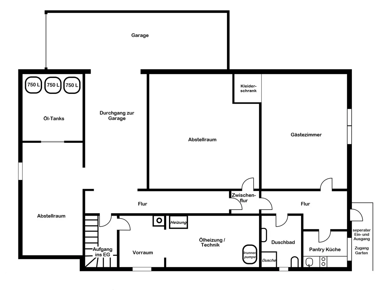
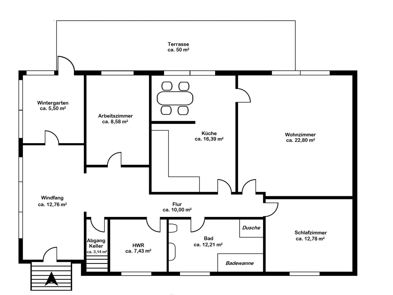
We offer you an exceptional property in a fantastic lakeside location in Rheinsberg in the Zechlinerhütte district. The unique location directly on the shore of the Schlabbornsee not only offers an unobstructed view of the water, but also direct access to your own private jetty. Here you live embedded in the beauty of the Mark Brandenburg countryside - and with a connection to the Havel-Oder waterway. This charming detached house with a full basement is located on a spacious waterfront plot in the first row directly on the Schlabbornsee - a real rarity that combines living close to nature with a high quality of life. Whether it's a morning swim, fishing, paddling or simply enjoying the view over the water. This home offers relaxation right on your doorstep. The house was built in 1982 with a solid basement and extensively modernized in 2001 and furnished by the current owners according to their wishes. A few steps take you into the interior of the house, where you are already granted a unique view of the lake in the vestibule. Further rooms open up on this level. The approx. 50 m² terrace, accessible via the conservatory, leaves nothing to be desired. Here you can enjoy wonderful hours as a couple, with family or friends with fantastic views. The property is also technically well equipped: A power connection enables a wide range of possible uses - be it for a workshop, the operation of powerful appliances or future extensions. The gas supply on the street side can be easily connected if required. A private well reliably supplies the garden with water and ensures independence. A small guest area in the basement with a separate entrance has a shower room and small kitchen unit. Ideal for your visitors or as a self-sufficient work area. The space is complemented by practical outbuildings. A garage is located under the terrace and provides access to further rooms in the basement. This offers generous storage space for tools, water sports equipment or hobby equipment as well as technology and heating. The boat shed, which was built close to the water, provides secure storage for your boat. A garden shed and a carport are also part of the offer. Whether as a new residence, as a retreat for creative time-outs or as a prestigious vacation home - this property is truly unique with many possible uses. Be inspired by the tranquillity, the unique location and the special charm of this property.
Show More Show Less

We offer you an exceptional property in a fantastic lakeside location in Rheinsberg in the Zechlinerhütte district. The unique location directly on the shore of the Schlabbornsee not only offers an unobstructed view of the water, but also direct access to your own private jetty. Here you live embedded in the beauty of the Mark Brandenburg countryside - and with a connection to the Havel-Oder waterway. This charming detached house with a full basement is located on a spacious waterfront plot in the first row directly on the Schlabbornsee - a real rarity that combines living close to nature with a high quality of life. Whether it's a morning swim, fishing, paddling or simply enjoying the view over the water. This home offers relaxation right on your doorstep. The house was built in 1982 with a solid basement and extensively modernized in 2001 and furnished by the current owners according to their wishes. A few steps take you into the interior of the house, where you are already granted a unique view of the lake in the vestibule. Further rooms open up on this level. The approx. 50 m² terrace, accessible via the conservatory, leaves nothing to be desired. Here you can enjoy wonderful hours as a couple, with family or friends with fantastic views. The property is also technically well equipped: A power connection enables a wide range of possible uses - be it for a workshop, the operation of powerful appliances or future extensions. The gas supply on the street side can be easily connected if required. A private well reliably supplies the garden with water and ensures independence. A small guest area in the basement with a separate entrance has a shower room and small kitchen unit. Ideal for your visitors or as a self-sufficient work area. The space is complemented by practical outbuildings. A garage is located under the terrace and provides access to further rooms in the basement. This offers generous storage space for tools, water sports equipment or hobby equipment as well as technology and heating. The boat shed, which was built close to the water, provides secure storage for your boat. A garden shed and a carport are also part of the offer. Whether as a new residence, as a retreat for creative time-outs or as a prestigious vacation home - this property is truly unique with many possible uses. Be inspired by the tranquillity, the unique location and the special charm of this property.

Highlights:

  • Private jetty for direct lake access

  • 50 m² terrace with stunning water views

  • Modernized interior with custom furnishings

  • Gas supply available for future upgrades

  • Well-equipped guest area with separate entrance

  • Garage with ample storage space

  • Boat shed for secure boat storage

  • Garden shed and carport included

  • Ideal for creative retreats or vacation home

  • Show More Show Less
Reference ID:25412017 Web ID:erke

Listed by VON POLL IMMOBILIEN Wandlitz | von Poll Immobilien GmbH

Contact email form:

Highlights:

  • Private jetty for direct lake access

  • 50 m² terrace with stunning water views

  • Modernized interior with custom furnishings

  • Gas supply available for future upgrades

  • Well-equipped guest area with separate entrance

  • Garage with ample storage space

  • Boat shed for secure boat storage

  • Garden shed and carport included

  • Ideal for creative retreats or vacation home

Continue Exploring Related Collections