Beautifully Crafted Home in Forest Creek at Porters Neck Plantation
8249 Sage Valley Drive, Wilmington, North Carolina, 28411, USA
Listed by: Beatty Pittman Team | Intracoastal Realty Corporation
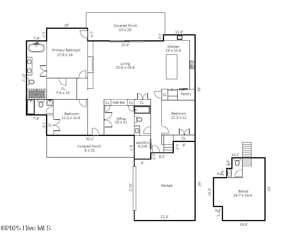
Welcome to Forest Creek at Porters Neck Plantation a picturesque gated community just one mile from the entrance of the prestigious Porters Neck Country Club. With winding, tree-lined streets and a peaceful, private ambiance, Forest Creek offers the perfect blend of serenity and convenience. This beautifully crafted home by Venture Homes showcases exceptional design and custom finishes. The chef's kitchen is complete with upgraded appliance package and a walk-in pantry. The open-concept layout is ideal for easy living, offering seamless flow between the kitchen, dining, and living spaces. A gas fireplace with a flush hearth adds warmth to the living area, while a thoughtfully designed wet bar and expansive 9-foot kitchen island enhance the home's entertaining potential. Oversized 16' x 8' sliding glass doors open to a covered back porch, extending your living area outdoorsperfect for relaxing or entertaining guests. Designed for comfort and flexibility, the main level features three bedrooms, three full baths, a dedicated office, and upstairs, a spacious bonus room with a vaulted ceiling and half bath. The primary suite includes a spa-like bath with a tiled shower, 60'' soaking tub, dual vanities, private water closet, and a large walk-in closet. A two-car garage with extra storage rounds out this home's thoughtful amenities. Ideally located just minutes from Porters Neck shopping, dining, and area beaches, this is coastal Carolina living at its finest. Residents have the opportunity to join the country club (note: golf membership has a one-year waitlist), which features an acclaimed 18-hole Tom Fazio golf course, two pools, tennis and pickleball courts, a fitness center, and a clubhouse with dining and a fully stocked pro shop.
Highlights:
Custom finishes
Chef's kitchen with walk-in pantry
Gas fireplace with flush hearth
Listed by Beatty Pittman Team | Intracoastal Realty Corporation
Highlights:
Custom finishes
Chef's kitchen with walk-in pantry
Gas fireplace with flush hearth
Thoughtfully designed wet bar
Expansive 9-foot kitchen island
Oversized sliding glass doors to covered back porch
Spa-like bath with tiled shower and soaking tub
Vaulted ceiling in bonus room
Two-car garage with extra storage
Access to Porters Neck Country Club amenities