Beds:2
Baths:2 Full | 1 Half

77 Havemeyer Lane #420, Stamford, Connecticut, 06902, USA

Listed by: William Raveis Real Estate

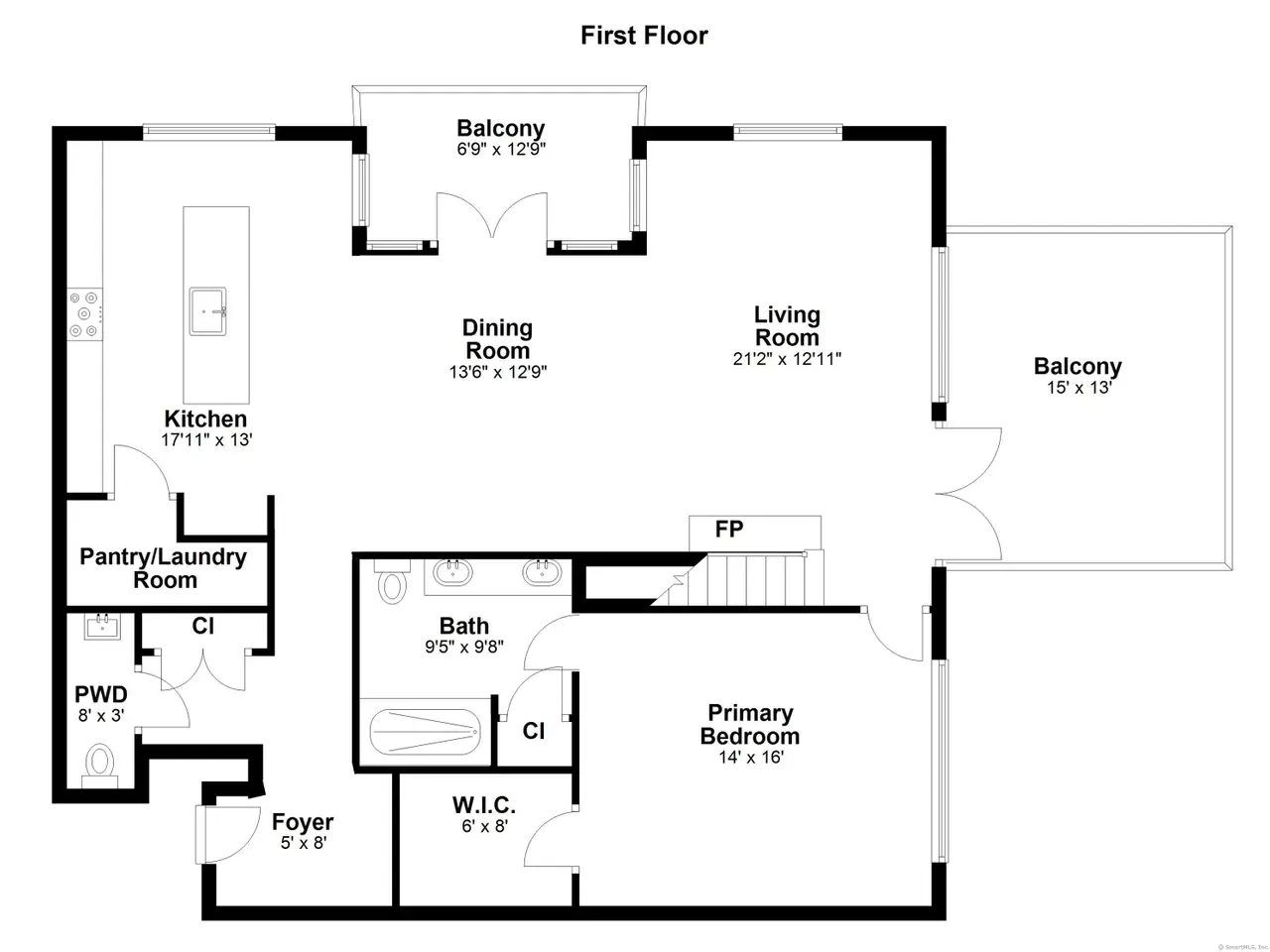
Penthouse duplex with dual private terraces offers a rare opportunity at the exclusive gated Palmer Hill Community on the Greenwich/Stamford border. This 2,077 sqft residence features soaring ceilings, floor-to-ceiling windows, and abundant natural light throughout. The home includes two primary suites and two and a half bathrooms; all finished with custom details. A gracious formal foyer leads to the open living and dining area with a fireplace and French doors to both terraces with a fountain, creating perfect indoor-outdoor living. The gourmet kitchen includes a generous eat-at island, six-burner stove, Liebherr refrigerator with two-drawer freezer, wine refrigerator, sink disposal, walk-in pantry with shelving, and full-size washer and dryer. The first-floor primary suite features detailed ceiling moldings, a custom walk-in closet, and a luxurious bath with steam shower, dual vanity, designer fixtures, and cabinetry. The second primary suite offers a custom walk-in closet, marble bathroom with dual vanity, and marble shower and flooring. A second-floor bonus room provides a flexible space ideal for a home office or lounge. Two indoor garage spaces and a private storage unit complete this exceptional home. Life feels like your on a vacation at Palmer Hill with a newly renovated clubhouse, fitness center, yoga room, business center, outdoor pool, hot tub, and fire pit. Quiet lanes invite leisurely walks and time with your dog. Enjoy easy access to I-95, Metro-North, Downtown Old Greenwich, Stamford, and Greenwich. Welcome to the easy life.
Show More Show Less

Penthouse duplex with dual private terraces offers a rare opportunity at the exclusive gated Palmer Hill Community on the Greenwich/Stamford border. This 2,077 sqft residence features soaring ceilings, floor-to-ceiling windows, and abundant natural light throughout. The home includes two primary suites and two and a half bathrooms; all finished with custom details. A gracious formal foyer leads to the open living and dining area with a fireplace and French doors to both terraces with a fountain, creating perfect indoor-outdoor living. The gourmet kitchen includes a generous eat-at island, six-burner stove, Liebherr refrigerator with two-drawer freezer, wine refrigerator, sink disposal, walk-in pantry with shelving, and full-size washer and dryer. The first-floor primary suite features detailed ceiling moldings, a custom walk-in closet, and a luxurious bath with steam shower, dual vanity, designer fixtures, and cabinetry. The second primary suite offers a custom walk-in closet, marble bathroom with dual vanity, and marble shower and flooring. A second-floor bonus room provides a flexible space ideal for a home office or lounge. Two indoor garage spaces and a private storage unit complete this exceptional home. Life feels like your on a vacation at Palmer Hill with a newly renovated clubhouse, fitness center, yoga room, business center, outdoor pool, hot tub, and fire pit. Quiet lanes invite leisurely walks and time with your dog. Enjoy easy access to I-95, Metro-North, Downtown Old Greenwich, Stamford, and Greenwich. Welcome to the easy life.

Highlights:

  • Soaring ceilings with floor-to-ceiling windows

  • Custom finishes throughout

  • Fireplace in open living area

  • French doors to dual private terraces with fountain

  • Gourmet kitchen with high-end appliances

  • First-floor primary suite with luxury bath

  • Second primary suite with marble bathroom

  • Bonus room for home office or lounge

  • Indoor garage spaces

  • Private storage unit

  • Show More Show Less
Reference ID:24133140 Web ID:pikp

Contact Agent | William Raveis Real Estate

Contact email form:

Highlights:

  • Soaring ceilings with floor-to-ceiling windows

  • Custom finishes throughout

  • Fireplace in open living area

  • French doors to dual private terraces with fountain

  • Gourmet kitchen with high-end appliances

  • First-floor primary suite with luxury bath

  • Second primary suite with marble bathroom

  • Bonus room for home office or lounge

  • Indoor garage spaces

  • Private storage unit