床位: 3
浴室:3 全 | 1 半

美国加利福尼亚州曼哈顿海滩41街209号,邮编90266

列出者: Bill Ruane | 房地产

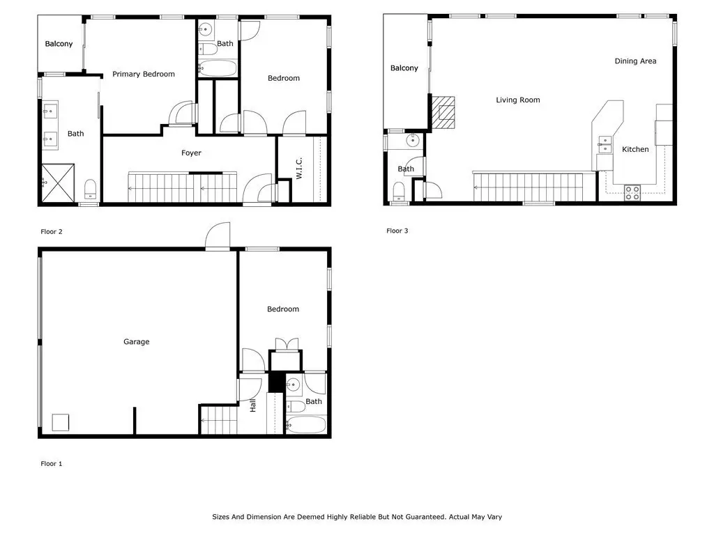
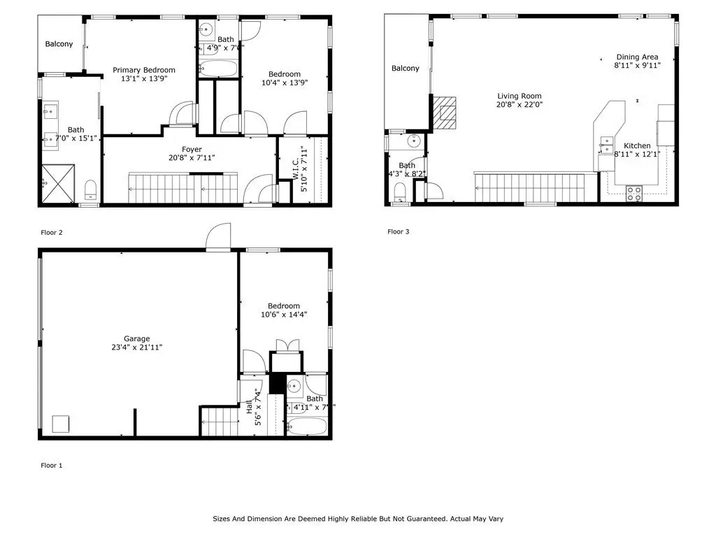
位于曼哈顿海滩备受追捧的埃尔波尔图 (El Porto) 社区中心地带,41 街 209 号提供令人叹为观止的无敌海景和海滨生活,距离海滩仅几步之遥。顶层大房间自然采光充足,从各个角度都能欣赏到一览无余的海景。您可以从私人阳台欣赏日落,在壁炉旁放松身心,或在开放式厨房招待客人——厨房配有吧台座位,并与视野开阔的用餐区无缝衔接。顶层还设有一间时尚的化妆间,可欣赏壮丽的海景。 中层入口通向宽敞的次卧套房,套房内设有步入式衣橱、独立浴室,并享有开阔的海景。主卧套房是一处私密的休憩之所,拥有独立阳台、定制谷仓门、双盥洗台浴室和玻璃淋浴间,所有这些都以迷人的海岸为背景。楼下的第三间卧室配备全套卫浴,非常适合招待客人或用作家庭办公室,此外还有一个宽敞的双车位车库,车库铺设了环氧树脂地板,并设有洗衣房和储藏室。崭新的地毯、重新抛光的硬木地板以及中央吸尘系统提升了这颗可立即入住的海滨瑰宝的舒适度。
显示更多 显示较少

位于曼哈顿海滩备受追捧的埃尔波尔图 (El Porto) 社区中心地带,41 街 209 号提供令人叹为观止的无敌海景和海滨生活,距离海滩仅几步之遥。顶层大房间自然采光充足,从各个角度都能欣赏到一览无余的海景。您可以从私人阳台欣赏日落,在壁炉旁放松身心,或在开放式厨房招待客人——厨房配有吧台座位,并与视野开阔的用餐区无缝衔接。顶层还设有一间时尚的化妆间,可欣赏壮丽的海景。 中层入口通向宽敞的次卧套房,套房内设有步入式衣橱、独立浴室,并享有开阔的海景。主卧套房是一处私密的休憩之所,拥有独立阳台、定制谷仓门、双盥洗台浴室和玻璃淋浴间,所有这些都以迷人的海岸为背景。楼下的第三间卧室配备全套卫浴,非常适合招待客人或用作家庭办公室,此外还有一个宽敞的双车位车库,车库铺设了环氧树脂地板,并设有洗衣房和储藏室。崭新的地毯、重新抛光的硬木地板以及中央吸尘系统提升了这颗可立即入住的海滨瑰宝的舒适度。

亮点:

  • 每个房间都可欣赏海景

  • 顶楼大房间设有壁炉

  • 开放式厨房,配有吧台座位

  • 享有日落美景的私人阳台

  • 时尚的化妆间,可欣赏海景

  • 带定制谷仓门的套间主卧套房

  • 玻璃淋浴间,海岸背景

  • 宽敞的双车位车库,铺有环氧树脂地板

  • 中央吸尘系统,方便使用

  • 配有新地毯和翻新硬木地板,可立即入住

  • 显示更多 显示较少
步行通过
参考编号:SB25128269 网页 ID:niqj

列出者 Bill Ruane | 房地产

Contact by phone:  3108772374
联系电子邮件表格:

亮点:

  • 每个房间都可欣赏海景

  • 顶楼大房间设有壁炉

  • 开放式厨房,配有吧台座位

  • 享有日落美景的私人阳台

  • 时尚的化妆间,可欣赏海景

  • 带定制谷仓门的套间主卧套房

  • 玻璃淋浴间,海岸背景

  • 宽敞的双车位车库,铺有环氧树脂地板

  • 中央吸尘系统,方便使用

  • 配有新地毯和翻新硬木地板,可立即入住

继续探索相关收藏