Victorian Grandeur Meets Contemporary Garden Sanctuary
1636 West Julian Street, Chicago, Illinois, 60622, USA
Listed by: Karen Schwartz | Baird & Warner
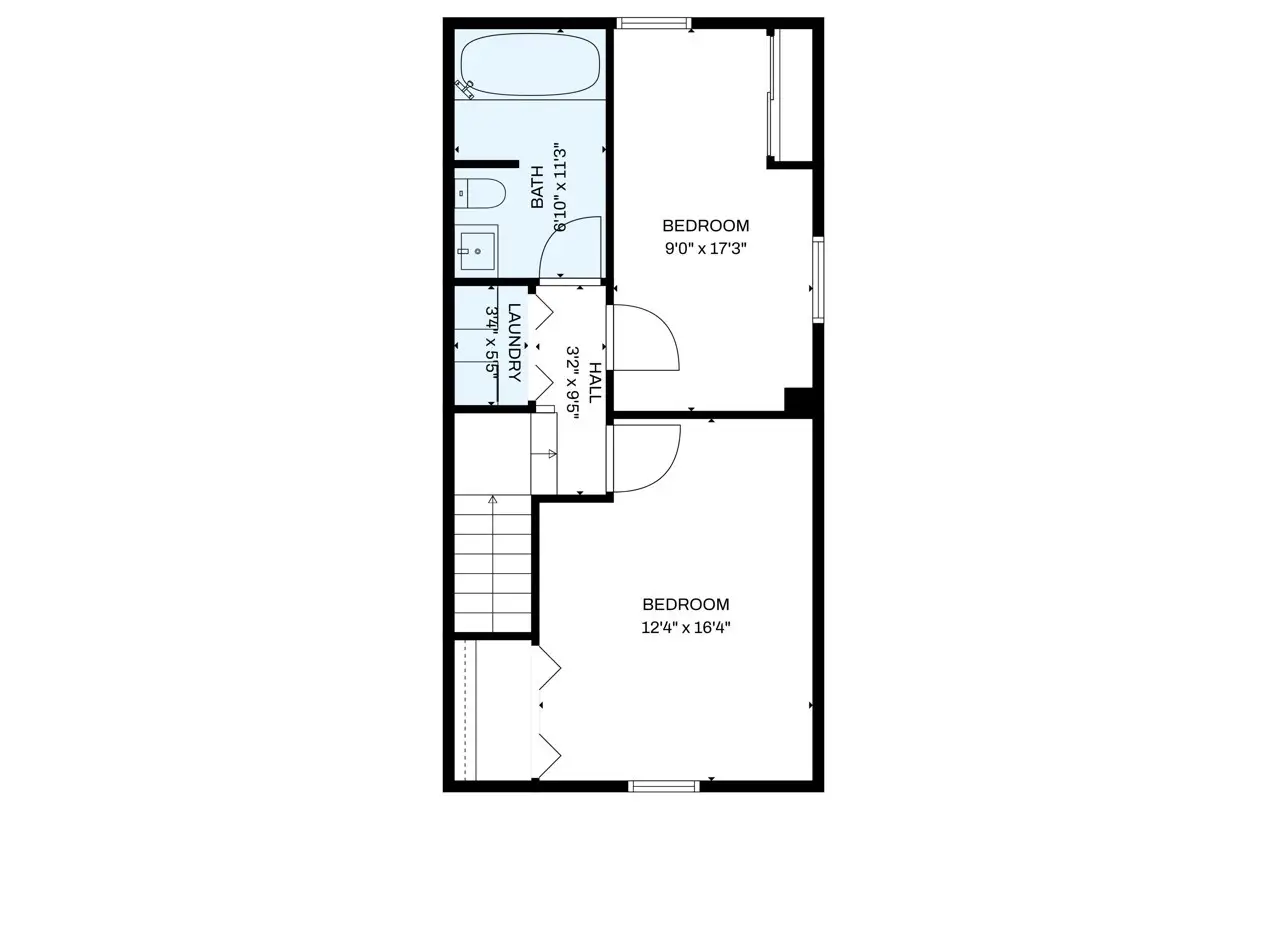
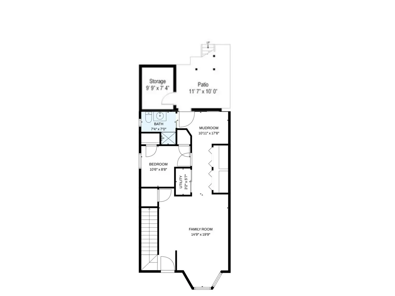
This exquisitely restored Victorian residence is a true architectural gem, seamlessly blending timeless historic charm with contemporary luxury. The expansive main floor features high ceilings, exposed brick, and an open-layout with both the living and dining room flowing into a chef's kitchen that has been thoughtfully renovated with brand-new custom cabinetry and premium appliances. Step out of the kitchen into an outdoor oasis: the private backyard is an entertainer's dream, featuring a beautifully landscaped garden, two decks, and a tranquil patio. In addition to the expansive outdoor space, the backyard features a two-car garage and a storage shed. Upstairs, the second level presents a sun-soaked library with a dramatic bay window and a serene primary suite with a luxurious walk-in closet and spa-inspired ensuite bath. The third floor features two generously-sized bedrooms, a full bath with an oversized soaking tub for ultimate relaxation, and conveniently located side-by-side laundry. The lower level features a spacious family room, a private bedroom with an adjacent full bath, and a private entrance leading to a serene back patio and the lush garden - ideal for an in-law suite, guest retreat, or peaceful home office. Perfectly positioned on a quiet, tree-lined street just steps away from Wicker Park's celebrated dining, boutiques, and vibrant arts scene, and a short walk to the Division Blue Line and the 606. This move-in ready home is a rare find, combining historic architecture, modern luxury, and serene indoor-outdoor living, all within the heart of Wicker Park.
Highlights:
- Exposed brick
- Chef's kitchen with custom cabinetry
- Two decks
Listed by Karen Schwartz | Baird & Warner
Highlights:
- Exposed brick
- Chef's kitchen with custom cabinetry
- Two decks
- Tranquil patio
- Sun-soaked library
- Luxurious walk-in closet
- Spa-inspired ensuite bath
- Oversized soaking tub
- Serene back patio
- Lush garden
 
                     
                     
                     
                     
                     
                     
                     
                     
                     
             
                     
                     
        
    
            
     
        
    
            
     
        
    
            
     
        
    
            
     
        
    
            
     
        
    
            
     
        
    
           
        
    
           
        
    
          