床位: 5
浴室:4 全 | 1 半

美国伊利诺伊州芝加哥西苏必利尔街425号,邮编60654

列出者: Carrie McCormick | @properties佳士得国际地产

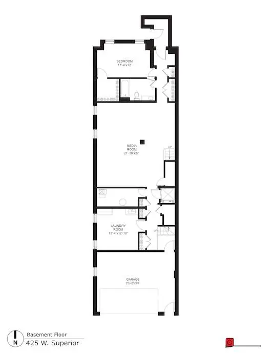
这套 7000 平方英尺的住宅位于河北岸备受欢迎的豪宅区,装修精美,维护得无可挑剔,拥有以下设施:5 间卧室、4.1 间浴室、4 个私人露台、完全装修好的底层、一个两车位车库,以及一部覆盖所有楼层的室内电梯。住宅设有多个楼层的户外空间和大型娱乐室,是您举办大型娱乐活动的场所。第一层设有一个带壁炉的正式客厅,透过落地窗可以眺望绿树成荫的 Superior 街。宽敞的独立餐厅毗邻私人中心露台,可通过带窗户的法式门进入。这种布局非常适合扩大餐厅以及娱乐和生活空间。主层露台的独特之处在于它被住宅的砖墙环绕,营造出一个真正僻静的户外空间。露台可从三面进入,是举办大型派对或餐饮活动的理想场所。厨房是厨师的梦想,配备顶级不锈钢电器、充足的橱柜储物空间、漂亮的白色台面、餐具室、两个水槽以及一个可容纳五人的岛台/早餐吧。厨房与一个宽敞的家庭活动室共享空间,家庭活动室设有早餐区,并可通往第二个露台,为烹饪、休闲和非正式用餐提供了完美的空间。主卧套房占据了二楼的一半空间,设有一间豪华卧室、一个超大的步入式衣橱以及一间带蒸汽淋浴、独立按摩浴缸和双梳妆台的套内浴室。另外两间卧室也占据了这一层,以及一间带浴缸/淋浴和双梳妆台的共用全功能浴室。三楼设有一个很棒的娱乐室,配有方便的吧台和宽敞的专用露台空间。宽敞的第四间卧室配有套内浴室和私人露台,使整个空间更加完美。装修完毕的底层设有一间超大的媒体室、宽敞的洗衣房和充足的储物柜。五卧室位于地上,配备百叶窗、步入式衣橱和一间设施齐全的浴室,非常适合互惠生或姻亲入住。地下室设有可停放两辆车的独立车库。毗邻密歇根大道、东岸俱乐部、餐厅、咖啡馆、公园以及城市的所有精彩设施。
显示更多 显示较少

这套 7000 平方英尺的住宅位于河北岸备受欢迎的豪宅区,装修精美,维护得无可挑剔,拥有以下设施:5 间卧室、4.1 间浴室、4 个私人露台、完全装修好的底层、一个两车位车库,以及一部覆盖所有楼层的室内电梯。住宅设有多个楼层的户外空间和大型娱乐室,是您举办大型娱乐活动的场所。第一层设有一个带壁炉的正式客厅,透过落地窗可以眺望绿树成荫的 Superior 街。宽敞的独立餐厅毗邻私人中心露台,可通过带窗户的法式门进入。这种布局非常适合扩大餐厅以及娱乐和生活空间。主层露台的独特之处在于它被住宅的砖墙环绕,营造出一个真正僻静的户外空间。露台可从三面进入,是举办大型派对或餐饮活动的理想场所。厨房是厨师的梦想,配备顶级不锈钢电器、充足的橱柜储物空间、漂亮的白色台面、餐具室、两个水槽以及一个可容纳五人的岛台/早餐吧。厨房与一个宽敞的家庭活动室共享空间,家庭活动室设有早餐区,并可通往第二个露台,为烹饪、休闲和非正式用餐提供了完美的空间。主卧套房占据了二楼的一半空间,设有一间豪华卧室、一个超大的步入式衣橱以及一间带蒸汽淋浴、独立按摩浴缸和双梳妆台的套内浴室。另外两间卧室也占据了这一层,以及一间带浴缸/淋浴和双梳妆台的共用全功能浴室。三楼设有一个很棒的娱乐室,配有方便的吧台和宽敞的专用露台空间。宽敞的第四间卧室配有套内浴室和私人露台,使整个空间更加完美。装修完毕的底层设有一间超大的媒体室、宽敞的洗衣房和充足的储物柜。五卧室位于地上,配备百叶窗、步入式衣橱和一间设施齐全的浴室,非常适合互惠生或姻亲入住。地下室设有可停放两辆车的独立车库。毗邻密歇根大道、东岸俱乐部、餐厅、咖啡馆、公园以及城市的所有精彩设施。

亮点:

  • 落地窗,带壁炉

  • 室内电梯服务所有楼层

  • 顶级不锈钢器具

  • 多层私人露台

  • 底层已完全装修完毕,设有媒体室

  • 大型娱乐室,配有吧台

  • 豪华主套房配有蒸汽淋浴

  • 砖墙主层露台

  • Chef's dream kitchen with butler's pantry

  • 宽敞的洗衣房

  • 显示更多 显示较少
步行通过
参考编号:12392188 网页 ID:lymo

列出者 Carrie McCormick | @properties佳士得国际地产

联系电子邮件表格:

亮点:

  • 落地窗,带壁炉

  • 室内电梯服务所有楼层

  • 顶级不锈钢器具

  • 多层私人露台

  • 底层已完全装修完毕,设有媒体室

  • 大型娱乐室,配有吧台

  • 豪华主套房配有蒸汽淋浴

  • 砖墙主层露台

  • Chef's dream kitchen with butler's pantry

  • 宽敞的洗衣房