Exceptional Home with Generous Proportions
USD $1,019,436
Hattingen, Germany
Listed by: VON POLL IMMOBILIEN Bochum | von Poll Immobilien GmbH
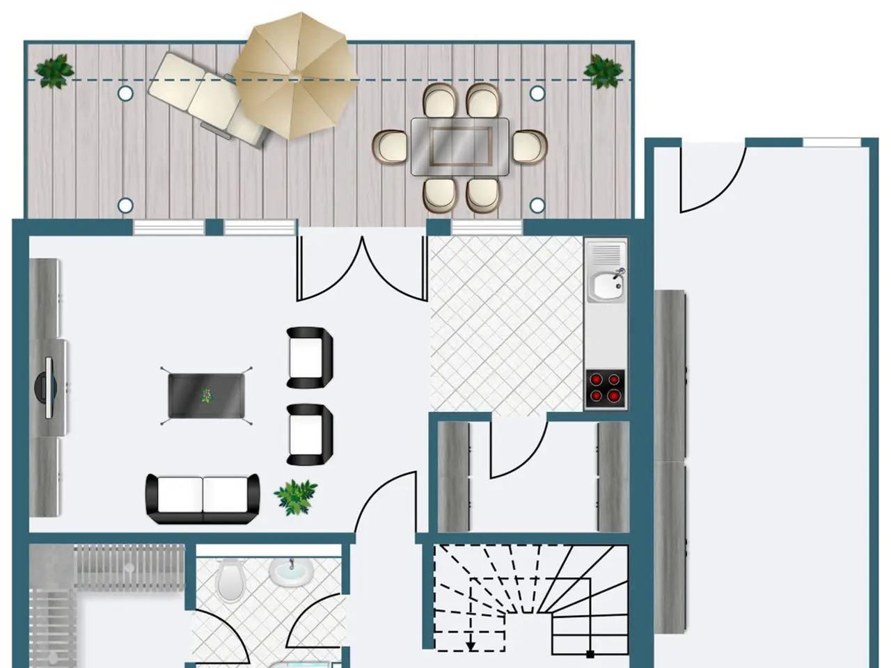
This family-friendly detached house was built in 2009 in solid construction. It is equipped to an above-average standard and is in an exceptionally well-kept condition. On the first floor, starting from the hallway with checkroom and guest WC, there is the generously proportioned living/dining area with access to a large, sunny balcony and the well-equipped kitchen with dining area and access to the terrace and garden. There are four similarly sized rooms on the top floor, which are suitable as bedrooms, children's rooms or studies. The well-lit bathroom is equipped with a floor-level shower. On the garden level, there is a large, versatile room with access to a partially covered terrace and the garden, a shower room with sauna, a room suitable for use as a study, a storage room and a utility room. The storage room under the garage is accessible from the terrace. The terraced and beautifully landscaped garden faces south. The terraces and the balcony are equipped with a shading system. An extra-long car garage and a parking space in front of the garage complete the offer.
Highlights:
Solid construction
Generously proportioned living/dining area
Well-equipped kitchen with dining area
Listed by VON POLL IMMOBILIEN Bochum | von Poll Immobilien GmbH
Highlights:
Solid construction
Generously proportioned living/dining area
Well-equipped kitchen with dining area
Large, sunny balcony
Well-lit bathroom with floor-level shower
Versatile room with access to garden
Shower room with sauna
Partially covered terrace
Shading system on terraces and balcony
Extra-long car garage