Beds: 3
Baths: 1 Full

91 Ourimbah Road, Mosman, NSW, 2088, Australia

Listed by: Megan Thomas | Belle Property Australia

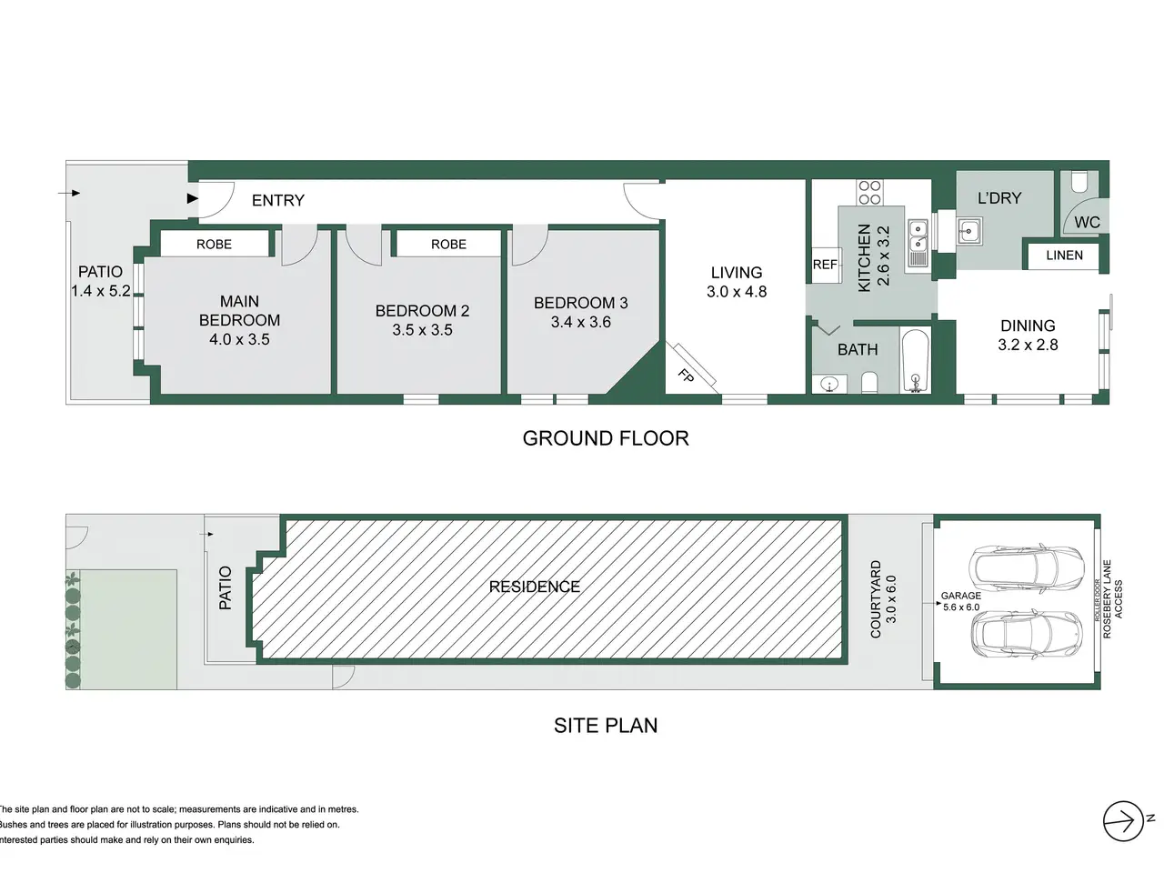
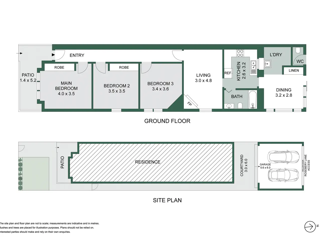
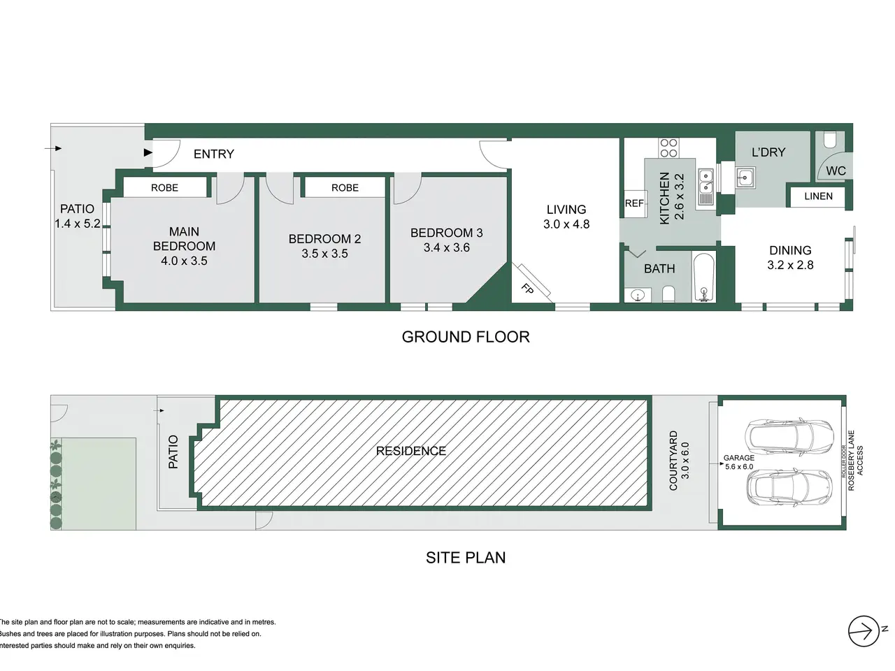
Behind its timeless brick façade, this classic semi offers a peaceful and private retreat moments from the heart of Mosman village life. Enclosed front gardens and a traditional verandah set the scene for inviting interiors, where high ceilings, original floorboards and a cast iron fireplace reflect the home's enduring charm. The effortless single-level layout features a spacious central lounge and a casual dining area which flows to a sunny north-facing rear courtyard. The granite-topped kitchen and skylit bathroom are well-presented, offering immediate comfort with scope to update. Three generous bedrooms provide ample accommodation, two complete with built-ins. A rare inclusion for the area, the enormous dual-height double garage with rear lane access offers outstanding space for vehicles, storage or future conversion (STCA). Delivering exceptional convenience to city transport, local schools and the cafés, shops and harbour beaches that define the Lower North Shore lifestyle, this home is both practical and full of potential. - Classic double brick semi in a central, convenient Mosman location. - Serene and secluded interiors set behind a traditional verandah façade - Private, enclosed front garden ideal for kids or entertaining - High ceilings, pine floorboards and cast-iron feature fireplace - Granite-topped gas kitchen, skylit bathroom with bath and shower - Casual dining area opening to sunny north-to-rear courtyard - Three generous bedrooms, two appointed with built-in robes - Huge dual-height double garage, rear lane access via Rosebery Lane - Endless potential for future updates or garage conversion (STCA) - Stroll to city buses, local schools, shops and harbour beaches Disclaimer: All information contained herewith, including but not limited to the general property description, price and the address, is provided to Belle Property by third parties. We have obtained this information from sources we believe to be reliable; however, we cannot guarantee its accuracy. The information contained herewith should not be relied upon and you should make your own enquiries and seek advice in respect of this property or any property on this website.
Show More Show Less

Behind its timeless brick façade, this classic semi offers a peaceful and private retreat moments from the heart of Mosman village life. Enclosed front gardens and a traditional verandah set the scene for inviting interiors, where high ceilings, original floorboards and a cast iron fireplace reflect the home's enduring charm. The effortless single-level layout features a spacious central lounge and a casual dining area which flows to a sunny north-facing rear courtyard. The granite-topped kitchen and skylit bathroom are well-presented, offering immediate comfort with scope to update. Three generous bedrooms provide ample accommodation, two complete with built-ins. A rare inclusion for the area, the enormous dual-height double garage with rear lane access offers outstanding space for vehicles, storage or future conversion (STCA). Delivering exceptional convenience to city transport, local schools and the cafés, shops and harbour beaches that define the Lower North Shore lifestyle, this home is both practical and full of potential. - Classic double brick semi in a central, convenient Mosman location. - Serene and secluded interiors set behind a traditional verandah façade - Private, enclosed front garden ideal for kids or entertaining - High ceilings, pine floorboards and cast-iron feature fireplace - Granite-topped gas kitchen, skylit bathroom with bath and shower - Casual dining area opening to sunny north-to-rear courtyard - Three generous bedrooms, two appointed with built-in robes - Huge dual-height double garage, rear lane access via Rosebery Lane - Endless potential for future updates or garage conversion (STCA) - Stroll to city buses, local schools, shops and harbour beaches Disclaimer: All information contained herewith, including but not limited to the general property description, price and the address, is provided to Belle Property by third parties. We have obtained this information from sources we believe to be reliable; however, we cannot guarantee its accuracy. The information contained herewith should not be relied upon and you should make your own enquiries and seek advice in respect of this property or any property on this website.

Highlights:

  • Traditional verandah

  • High ceilings and pine floorboards

  • Cast iron fireplace

  • Granite-topped gas kitchen

  • Skylit bathroom with bath and shower

  • Sunny north-facing rear courtyard

  • Dual-height double garage with rear lane access

  • Potential for future updates

  • Convenient Mosman location

  • Close to harbor beaches and amenities

  • Show More Show Less
Reference ID: 111P17260 Web ID: eubk

Listed by Megan Thomas | Belle Property Australia

Contact by phone:  0413 047 473
Contact email form:

Highlights:

  • Traditional verandah

  • High ceilings and pine floorboards

  • Cast iron fireplace

  • Granite-topped gas kitchen

  • Skylit bathroom with bath and shower

  • Sunny north-facing rear courtyard

  • Dual-height double garage with rear lane access

  • Potential for future updates

  • Convenient Mosman location

  • Close to harbor beaches and amenities

Continue Exploring Related Collections