Beds: 4
Baths: 4 Full | 1 Half

65 Francis Street, Brookline, Massachusetts, 02446, USA

Listed by: Rozita Taba | William Raveis Real Estate

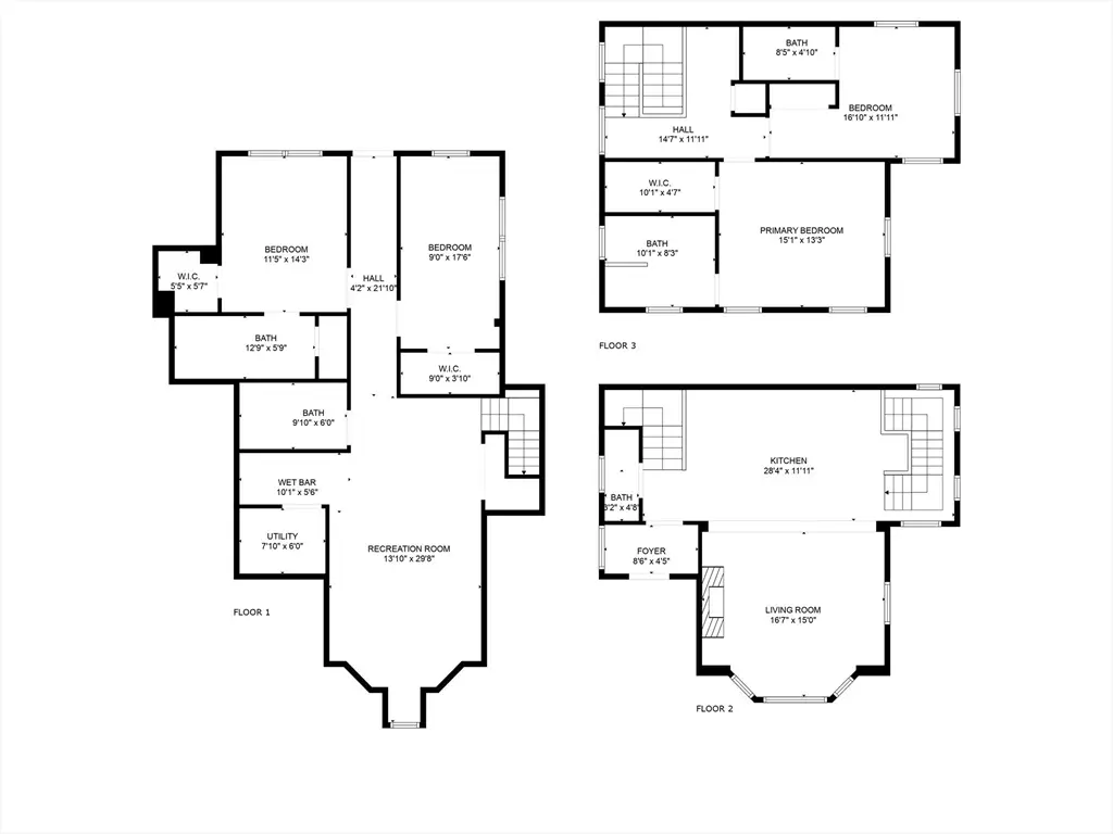
Welcome to this beautifully renovated 2025 Coolidge Corner unit, where timeless charm meets modern comfort. A welcoming mudroom opens to a sunlit kitchen with generous counter space, perfect for cooking together or hosting friends. The cozy family room with fireplace and a cheerful breakfast nook make the main level inviting, while a powder room adds convenience. A graceful curved staircase leads to a reading nook, laundry closet, and a serene primary suite with walk-in closet and ensuite bath featuring a double vanity. A second bedroom with its own ensuite completes this floor. The finished lower level offers flexible space for relaxation and fun with a rec room, wet bar, two bedrooms (one ensuite), and another full bath. Direct walk-out access leads to the patio, backyard and parking area. Move-in ready and filled with natural light, this home is designed for everyday living and entertaining, all just steps from Brookline's cafes, shops, schools, medical facilities and parks.
Show More Show Less

Welcome to this beautifully renovated 2025 Coolidge Corner unit, where timeless charm meets modern comfort. A welcoming mudroom opens to a sunlit kitchen with generous counter space, perfect for cooking together or hosting friends. The cozy family room with fireplace and a cheerful breakfast nook make the main level inviting, while a powder room adds convenience. A graceful curved staircase leads to a reading nook, laundry closet, and a serene primary suite with walk-in closet and ensuite bath featuring a double vanity. A second bedroom with its own ensuite completes this floor. The finished lower level offers flexible space for relaxation and fun with a rec room, wet bar, two bedrooms (one ensuite), and another full bath. Direct walk-out access leads to the patio, backyard and parking area. Move-in ready and filled with natural light, this home is designed for everyday living and entertaining, all just steps from Brookline's cafes, shops, schools, medical facilities and parks.

Highlights:

  • Custom cabinetry

  • Fireplace

  • Ensuite bathrooms

  • Reading nook

  • Wet bar

  • Walk-in closet

  • Double vanity

  • Finished lower level

  • Mudroom

  • Patio

  • Show More Show Less
Reference ID: 73444322 Web ID: dliq

Listed by Rozita Taba | William Raveis Real Estate

Contact by phone:  617-877-8839
Contact email form:

Highlights:

  • Custom cabinetry

  • Fireplace

  • Ensuite bathrooms

  • Reading nook

  • Wet bar

  • Walk-in closet

  • Double vanity

  • Finished lower level

  • Mudroom

  • Patio