Beds: 5
Baths: 5 Full | 1 Half

11869 Marquette Drive, New Buffalo, Michigan, 49117, USA

Listed by: Liz Roch | @properties Christie’s International Real Estate

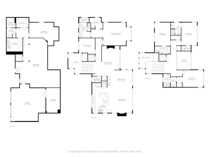
Perched along the shores of Lake Michigan within the exclusive Riviera Association, this 5-bed, 5.5 bath home epitomizes the elegance & timelessness of Lakefront contemporary architecture. Designed in 2013 by the renowned architects Perkins, Pryde & Kennedy & completed in 2015, this 5,000+ sq ft home masterfully represents a modified Prairie Style design full of modern luxury & stunning natural surroundings. Exquisite hardwood floors infuse warmth into every room. Expansive glass walls offer panoramic views of Lake Michigan, seamlessly connecting the indoor & outdoor spaces. The open and light-filled design allows residents to fully immerse themselves in the tranquil landscape. Featuring five spacious bedrooms and five and a half beautifully appointed baths. Each ensuite bedroom is thoughtfully designed to provide comfort & a sense of serenity. The living areas are characterized by their openness, flooded with natural light, and offering breathtaking vistas of the lake. Enjoy the all-level elevator for convenience; private lakefront office; lush green lawn with plenty of room for a pool; spacious decks; Elan Smart Home system; beach cabana for relaxing by the shore & easy access to the private association beach via a low bluff. For the discerning buyer who desires more than just a home, this work of art captures the essence of Lakefront Contemporary design while offering modern luxury.
Show More Show Less

Perched along the shores of Lake Michigan within the exclusive Riviera Association, this 5-bed, 5.5 bath home epitomizes the elegance & timelessness of Lakefront contemporary architecture. Designed in 2013 by the renowned architects Perkins, Pryde & Kennedy & completed in 2015, this 5,000+ sq ft home masterfully represents a modified Prairie Style design full of modern luxury & stunning natural surroundings. Exquisite hardwood floors infuse warmth into every room. Expansive glass walls offer panoramic views of Lake Michigan, seamlessly connecting the indoor & outdoor spaces. The open and light-filled design allows residents to fully immerse themselves in the tranquil landscape. Featuring five spacious bedrooms and five and a half beautifully appointed baths. Each ensuite bedroom is thoughtfully designed to provide comfort & a sense of serenity. The living areas are characterized by their openness, flooded with natural light, and offering breathtaking vistas of the lake. Enjoy the all-level elevator for convenience; private lakefront office; lush green lawn with plenty of room for a pool; spacious decks; Elan Smart Home system; beach cabana for relaxing by the shore & easy access to the private association beach via a low bluff. For the discerning buyer who desires more than just a home, this work of art captures the essence of Lakefront Contemporary design while offering modern luxury.

Highlights:

  • Hardwood floors

  • Panoramic views of Lake Michigan

  • Expansive glass walls

  • Elevator

  • Smart Home system

  • Show More Show Less
Reference ID: 25053655 Web ID: cyfz

Listed by Liz Roch | @properties Christie’s International Real Estate

Contact email form:

Highlights:

  • Hardwood floors

  • Panoramic views of Lake Michigan

  • Expansive glass walls

  • Elevator

  • Smart Home system