Beds: 4
Baths: 3 Full | 1 Half

232 Pell Meadow Drive, Fairfield, Connecticut, 06824, USA

Listed by: Lois Lipow | William Raveis Real Estate

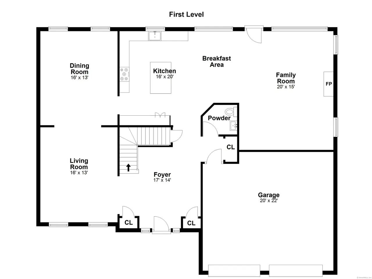
Move right in to this beautiful four bedroom, four bath colonial on a quiet street in Fairfield's desirable University area. Set on a flat landscaped property, this home offers the perfect combination of style, comfort and convenience. Just minutes to town, train and Riverfield school. The spacious white kitchen opens into the family room with quartz countertops, stainless steel appliances, gas range and an island which makes this kitchen a cook's delight. The sun-filled main level features a family room with stone fireplace and access to totally fenced backyard with a fabulous bluestone patio. Step outside to the stunning gunite salt water pool, complete with an electric safety cover-perfect for relaxing and entertaining. The primary bedroom offers a walk in closet, vaulted ceiling, wood floors and a large bathroom with a whirlpool tub, double vanity and private water closet. All other bedrooms are spacious, one with private bathroom and the other two bedrooms share a jack and jill bathroom. The partially finished basement has high end finishes, perfect for a media room, playroom, or gym. There is ample storage in the basement. The third floor, a large flex space offers endless options/ ideal as a playroom, office or guest room. New HVAC in 2024. This is an exceptional opportunity in one of Fairfield's most sought-after neighborhoods.
Show More Show Less

Move right in to this beautiful four bedroom, four bath colonial on a quiet street in Fairfield's desirable University area. Set on a flat landscaped property, this home offers the perfect combination of style, comfort and convenience. Just minutes to town, train and Riverfield school. The spacious white kitchen opens into the family room with quartz countertops, stainless steel appliances, gas range and an island which makes this kitchen a cook's delight. The sun-filled main level features a family room with stone fireplace and access to totally fenced backyard with a fabulous bluestone patio. Step outside to the stunning gunite salt water pool, complete with an electric safety cover-perfect for relaxing and entertaining. The primary bedroom offers a walk in closet, vaulted ceiling, wood floors and a large bathroom with a whirlpool tub, double vanity and private water closet. All other bedrooms are spacious, one with private bathroom and the other two bedrooms share a jack and jill bathroom. The partially finished basement has high end finishes, perfect for a media room, playroom, or gym. There is ample storage in the basement. The third floor, a large flex space offers endless options/ ideal as a playroom, office or guest room. New HVAC in 2024. This is an exceptional opportunity in one of Fairfield's most sought-after neighborhoods.

Highlights:

  • Quartz countertops

  • Stone fireplace

  • Gunite salt water pool

  • Bluestone patio

  • Whirlpool tub

  • High-end finishes

  • Vaulted ceiling

  • Stainless steel appliances

  • Show More Show Less
Reference ID: 24121593 Web ID: bhrq

Listed by Lois Lipow | William Raveis Real Estate

Contact by phone:  203-767-2335
Contact email form:

Highlights:

  • Quartz countertops

  • Stone fireplace

  • Gunite salt water pool

  • Bluestone patio

  • Whirlpool tub

  • High-end finishes

  • Vaulted ceiling

  • Stainless steel appliances