Beds:4
Baths:2 Full

Bad Godesberg, Germany

Listed by: VON POLL IMMOBILIEN Bad Godesberg | von Poll Immobilien GmbH

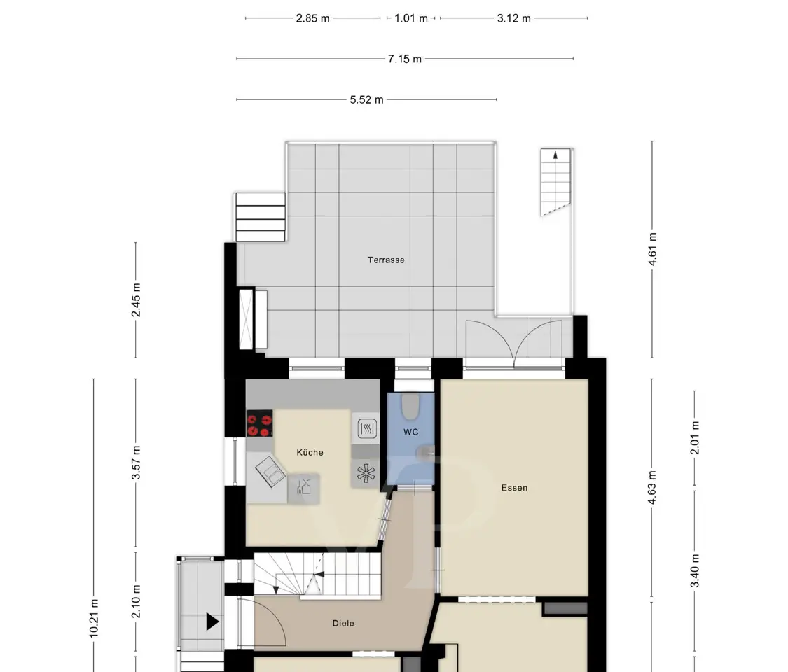
This charming detached house from the Wilhelminian era, built on one side, offers generous living space for the whole family with approx. 166 m² of living space and a total of six rooms on three levels. The 340 m² plot includes a quiet south-west-facing garden with a high level of privacy - a place you will love to return to. The sunny terrace on the garden side with a brick-built outdoor fireplace invites you to spend convivial hours with family and friends. The entrance area impresses with stylish, contemporary tiles, which were laid as part of an earlier modernization and blend harmoniously into the overall appearance of the house. The central hallway provides access to all living spaces on the first floor as well as - via the well-preserved wooden staircase - to the upper floors and the basement. The open-plan living and dining area impresses with its spaciousness and is cozily complemented by a stylish fireplace. If required, the room can be flexibly divided into two areas. The adjoining kitchen is equipped with a functional fitted kitchen, which is already included in the purchase price. A daylight guest WC is a useful addition to this level. Three well-designed rooms await you on the upper floor, including one with access to the street-facing balcony, from which you can enjoy a view of the Siebengebirge. The tastefully furnished daylight bathroom has a bathtub, a walk-in shower and a double washbasin - well thought-out and of high quality. The converted attic offers a further bedroom and a separate walk-through room, which is ideal as a work, guest or play area. An additional daylight bathroom with shower tray makes this floor a self-sufficient area for guests or teenagers. Elements typical of old buildings such as original wooden floorboards, stucco decorations and high ceilings give the house its special character. The wooden floors have been refurbished and freshly sanded in some areas of the house. Numerous windows flood all rooms with natural light and create a bright, friendly atmosphere to feel at home in. In the basement you will find a practical laundry room, two storage rooms and the boiler room. Particularly practical: the external basement staircase provides direct access from the laundry room to the garden - ideal for everyday use. The house is also in excellent technical condition: new, triple-glazed plastic windows with matching blinds, a modern front door and efficient gas central heating ensure contemporary comfort and good energy efficiency. Be inspired by the special charm of this property - your dream home can become reality here. Please contact us for further information or to arrange a viewing. Good to know: - The purchase of this property is commission-free for the buyer - there is no estate agent's commission. - An energy certificate is being processed and is available for viewing. - The property is ready for occupation from July.
Show More Show Less

This charming detached house from the Wilhelminian era, built on one side, offers generous living space for the whole family with approx. 166 m² of living space and a total of six rooms on three levels. The 340 m² plot includes a quiet south-west-facing garden with a high level of privacy - a place you will love to return to. The sunny terrace on the garden side with a brick-built outdoor fireplace invites you to spend convivial hours with family and friends. The entrance area impresses with stylish, contemporary tiles, which were laid as part of an earlier modernization and blend harmoniously into the overall appearance of the house. The central hallway provides access to all living spaces on the first floor as well as - via the well-preserved wooden staircase - to the upper floors and the basement. The open-plan living and dining area impresses with its spaciousness and is cozily complemented by a stylish fireplace. If required, the room can be flexibly divided into two areas. The adjoining kitchen is equipped with a functional fitted kitchen, which is already included in the purchase price. A daylight guest WC is a useful addition to this level. Three well-designed rooms await you on the upper floor, including one with access to the street-facing balcony, from which you can enjoy a view of the Siebengebirge. The tastefully furnished daylight bathroom has a bathtub, a walk-in shower and a double washbasin - well thought-out and of high quality. The converted attic offers a further bedroom and a separate walk-through room, which is ideal as a work, guest or play area. An additional daylight bathroom with shower tray makes this floor a self-sufficient area for guests or teenagers. Elements typical of old buildings such as original wooden floorboards, stucco decorations and high ceilings give the house its special character. The wooden floors have been refurbished and freshly sanded in some areas of the house. Numerous windows flood all rooms with natural light and create a bright, friendly atmosphere to feel at home in. In the basement you will find a practical laundry room, two storage rooms and the boiler room. Particularly practical: the external basement staircase provides direct access from the laundry room to the garden - ideal for everyday use. The house is also in excellent technical condition: new, triple-glazed plastic windows with matching blinds, a modern front door and efficient gas central heating ensure contemporary comfort and good energy efficiency. Be inspired by the special charm of this property - your dream home can become reality here. Please contact us for further information or to arrange a viewing. Good to know: - The purchase of this property is commission-free for the buyer - there is no estate agent's commission. - An energy certificate is being processed and is available for viewing. - The property is ready for occupation from July.

Highlights:

  • Outdoor brick-built fireplace

  • Stylish contemporary tiles

  • Original wooden floorboards

  • High ceilings

  • Triple-glazed windows

  • Spa-like bathroom

  • Sunny terrace

  • Functional fitted kitchen

  • Stucco decorations

  • South-west-facing garden

  • Show More Show Less
Reference ID:25378021 Web ID:rlbd

Listed by VON POLL IMMOBILIEN Bad Godesberg | von Poll Immobilien GmbH

Contact email form:

Highlights:

  • Outdoor brick-built fireplace

  • Stylish contemporary tiles

  • Original wooden floorboards

  • High ceilings

  • Triple-glazed windows

  • Spa-like bathroom

  • Sunny terrace

  • Functional fitted kitchen

  • Stucco decorations

  • South-west-facing garden