Rancher-Style Residence on 2.1-Acres
1896 Martin Place, Duncan, British Columbia, V9L 5W1, Canada
Listed by: Christine Ryan | Macdonald Realty Ltd.
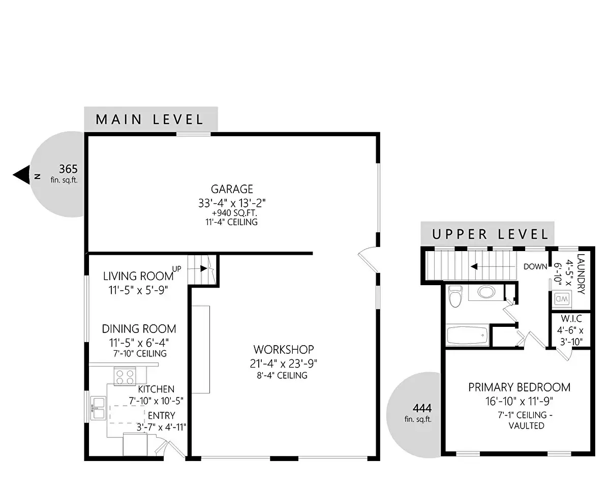
Step into your new home with over 3,000 sq. ft. of finished living space on a fully fenced 2.1-acre estate. The rancher-style residence offers 4 bedrooms, 3 bathrooms and a den with a bright primary suite opening to a deck overlooking fruit trees, gardens and vineyard views. The open kitchen and dining area are perfect for gatherings, while a heat pump, newer dishwasher and water heater provide practical convenience. Separate from the main home is your private home theatre, perfect for cozy nights in. The cold room stores your wine or harvest and the garage features an over-height ceiling ideal for your RV, boat or creative pursuits. A charming 1 bedroom, 1 bathroom carriage house with kitchen, living area and in-suite laundry welcomes family or guests. Located in a peaceful, pastoral neighbourhood just steps from Quamichan Lake and 10 minutes to Duncan, this rare offering blends tranquility, convenience, and idyllic country charm.
Highlights:
Private home theatre
Primary suite deck overlooking vineyard views
Open kitchen for gatherings
Listed by Christine Ryan | Macdonald Realty Ltd.
Highlights:
Private home theatre
Primary suite deck overlooking vineyard views
Open kitchen for gatherings
Over-height garage ceiling for RV/boat
Cold room for wine storage
Carriage house with kitchen and in-suite laundry