Beds:4
Baths:2 Full | 1 Half | 2 Three Quarter

1416 2nd Street, Kirkland, Washington, 98033, USA

Listed by: Wendy Klinker | Windermere Real Estate Western WA and OR

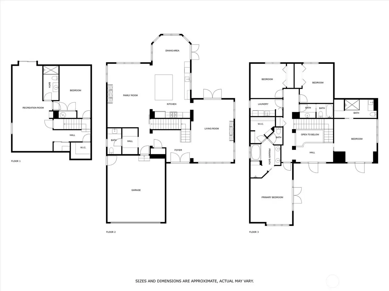
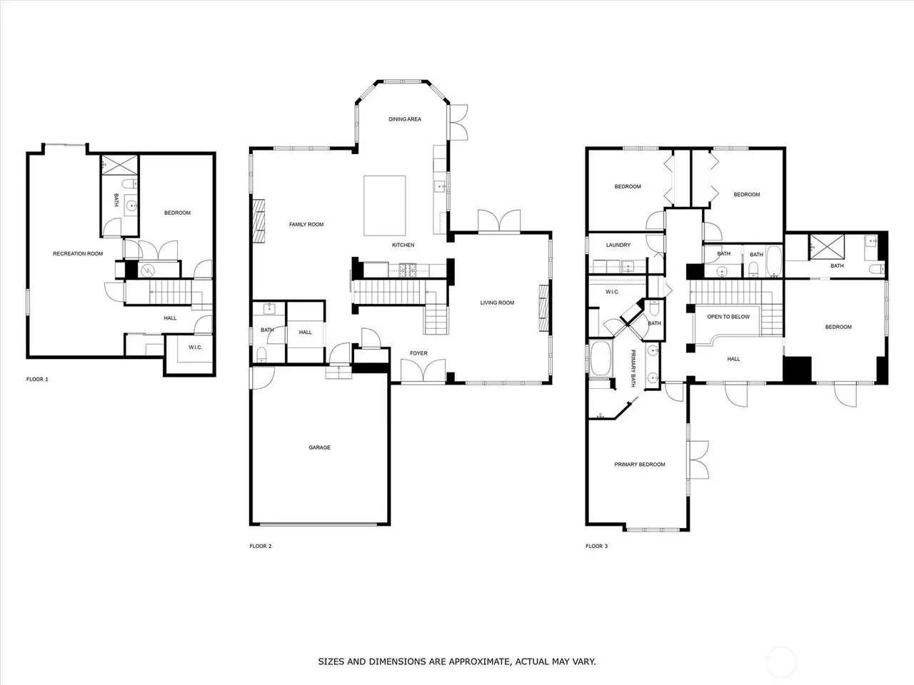
This timeless East of Market home offers 4 bedrooms, 4 baths, and blends refined design with thoughtful updates. The open floor plan features a remodeled kitchen with quartz and porcelain surfaces, high-end appliances, and classic finishes. Expansive windows and updated lighting create a bright, elegant feel. All bedrooms are located upstairs, including a private ensuite. The lower level includes a spacious bonus room - ideal for a media room, gym, and a potential 5th bedroom. Set on a quiet street with a beautifully landscaped private backyard and an upper deck showcasing lake, city, and mountain views. Includes an EV charger and attached garage. Just minutes to Google, Peter Kirk Elementary, Marina Park, and downtown Kirkland.
Show More Show Less

This timeless East of Market home offers 4 bedrooms, 4 baths, and blends refined design with thoughtful updates. The open floor plan features a remodeled kitchen with quartz and porcelain surfaces, high-end appliances, and classic finishes. Expansive windows and updated lighting create a bright, elegant feel. All bedrooms are located upstairs, including a private ensuite. The lower level includes a spacious bonus room - ideal for a media room, gym, and a potential 5th bedroom. Set on a quiet street with a beautifully landscaped private backyard and an upper deck showcasing lake, city, and mountain views. Includes an EV charger and attached garage. Just minutes to Google, Peter Kirk Elementary, Marina Park, and downtown Kirkland.

Highlights:

  • Quartz and porcelain surfaces

  • High-end appliances

  • Expansive windows

  • Private ensuite

  • Spacious bonus room

  • Upper deck with views

  • EV charger

  • Attached garage

  • Show More Show Less
Reference ID:2406193 Web ID:cggx

Listed by Wendy Klinker | Windermere Real Estate Western WA and OR

Contact email form:

Highlights:

  • Quartz and porcelain surfaces

  • High-end appliances

  • Expansive windows

  • Private ensuite

  • Spacious bonus room

  • Upper deck with views

  • EV charger

  • Attached garage