Residential
USD $2,369,991
Milano, Italy
Listed by: Benedetta VIGANÒ | Giorgio Vigano Real Estate
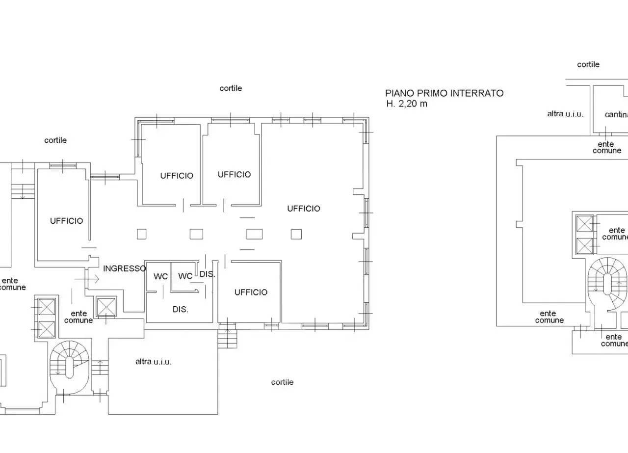
gv1370 - Via Santa Valeria - Prestigious representative office in historic complex. In the heart of Milan, in the raffinated Sant’Ambrogio neighbourhood, we propose for sale an exclusive 255sqm office, located on the ground floor of a stately complex. Immersed in the silence of the internal courtyard with a condominium garden, the office offers a reserved working environment and of high representation, perfect for professional studies, consultant companies or creative activities. The office distinguishes itself for a rational and versatile floor plan, with the well-distributed spaces illuminated thanks to the double exposition. A long central hallway links all the locals that comprehend four operative rooms and two communicating angular rooms perfect for meetings, conferences and coworking. The office also has two bathrooms, a server room and a comfortable closet/archive of great utility. The triple entrances guarantee the maximum flexibility and privacy, making the space perfect for different operative configurations. Centralized heating. The unique office atmosphere is completed by the privileged position: immersed in the silence of the courtyard the space is super quiet, although it is located in one of the most vivid and prestigious areas of Milan. The Cinque Vie represents the historical heart of Milan, a neighborhood rich of exclusive services and charm. Between luxury boutiques, art galleries and raffinated restaurants, the area offers a prestigious context a few steps from the Sant’Ambrogio Basil, from Piazza Affari and from the Sforzesco Castle. Perfectly served by public transports, the office is near to the subway stations MM2 and MM4 Sant’Ambrogio, train station Milano Cadorna at 10 minutes, besides of several tram and bus lines. Ace G – 247,2. € 2.090.000 - € 10.000,00 condo expenses. The choice of this property contributes to support the mission of Theodora onlus. Photos, texts, floor plans, etc., are purely for illustrative purposes and do not constitute documents with contractual value and presupposition. Giorgio Viganò Real Estate - 027636151 - www.giorgiovigano.com
Highlights:
Condominium garden
Double exposure for well-illuminated spaces
Versatile floor plan with flexible configurations
Listed by Benedetta VIGANÒ | Giorgio Vigano Real Estate
Highlights:
Condominium garden
Double exposure for well-illuminated spaces
Versatile floor plan with flexible configurations
Centralized heating
Quiet courtyard location
Proximity to luxury boutiques and charm
Near public transport options
Architectural charm with triple entrances
Historic complex in prestigious area
Immersive office atmosphere