Letti: 3
Bagni:3 Interi | 1 Mezzo

209 41st Street, Manhattan Beach, California, 90266, Stati Uniti

Inserito da: Bill Ruane | Proprietà immobiliari

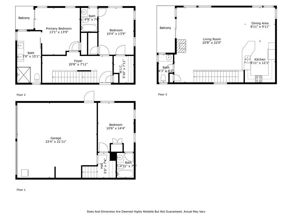
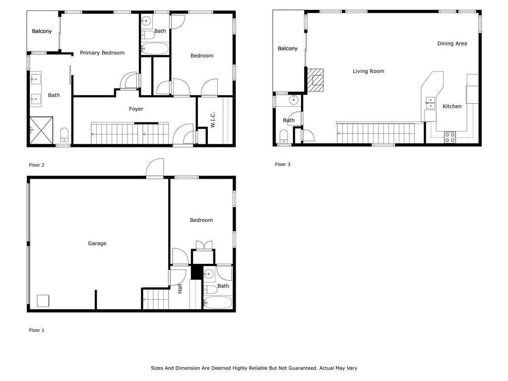
Situato nel cuore dell'ambito quartiere El Porto di Manhattan Beach, l'appartamento 209 41st Street offre una splendida vista libera sull'oceano e una vita costiera a pochi passi dalla spiaggia. L'ampio soggiorno all'ultimo piano è inondato di luce naturale e offre una vista mozzafiato sull'oceano da ogni angolazione. Ammirate il tramonto dal vostro balcone privato, rilassatevi accanto al camino o intrattenetevi nella cucina a vista, completa di bancone bar e con accesso diretto alla zona pranzo con vista panoramica. Un elegante bagno di servizio con vista sull'oceano completa il piano superiore. L'ingresso al piano intermedio si apre su una spaziosa suite secondaria con cabina armadio, bagno privato e ampia vista sull'oceano. La suite principale è un rifugio privato, con balcone privato, porta a battente personalizzata, doppio lavabo e box doccia in vetro, il tutto contornato da una splendida cornice costiera. Al piano inferiore, la terza camera da letto con bagno completo è perfetta per gli ospiti o come ufficio, insieme a un ampio garage per due auto con pavimenti in resina epossidica, lavanderia e ripostiglio. Moquette nuova, parquet ristrutturato e un sistema di aspirapolvere centralizzato aumentano il comfort di questo gioiello sulla spiaggia pronto per essere abitato.
Mostra altro Mostra meno

Situato nel cuore dell'ambito quartiere El Porto di Manhattan Beach, l'appartamento 209 41st Street offre una splendida vista libera sull'oceano e una vita costiera a pochi passi dalla spiaggia. L'ampio soggiorno all'ultimo piano è inondato di luce naturale e offre una vista mozzafiato sull'oceano da ogni angolazione. Ammirate il tramonto dal vostro balcone privato, rilassatevi accanto al camino o intrattenetevi nella cucina a vista, completa di bancone bar e con accesso diretto alla zona pranzo con vista panoramica. Un elegante bagno di servizio con vista sull'oceano completa il piano superiore. L'ingresso al piano intermedio si apre su una spaziosa suite secondaria con cabina armadio, bagno privato e ampia vista sull'oceano. La suite principale è un rifugio privato, con balcone privato, porta a battente personalizzata, doppio lavabo e box doccia in vetro, il tutto contornato da una splendida cornice costiera. Al piano inferiore, la terza camera da letto con bagno completo è perfetta per gli ospiti o come ufficio, insieme a un ampio garage per due auto con pavimenti in resina epossidica, lavanderia e ripostiglio. Moquette nuova, parquet ristrutturato e un sistema di aspirapolvere centralizzato aumentano il comfort di questo gioiello sulla spiaggia pronto per essere abitato.

Punti salienti:

  • Vista sull'oceano da ogni camera

  • Grande sala all'ultimo piano con camino

  • Cucina a vista con posti a sedere al bar

  • Balcone privato con vista sul tramonto

  • Elegante bagno di servizio con vista sull'oceano

  • Suite principale con bagno interno e porta del fienile personalizzata

  • Doccia in vetro con sfondo costiero

  • Ampio garage per due auto con pavimenti in resina epossidica

  • Sistema di aspirazione centralizzato per la massima comodità

  • Pronto per essere abitato con moquette fresca e parquet rifinito

  • Mostra altro Mostra meno
Passeggiata
ID di riferimento:SB25128269 ID Web:niqj

Inserito da Bill Ruane | Proprietà immobiliari

Contact by phone:  3108772374
Modulo di contatto e-mail:

Punti salienti:

  • Vista sull'oceano da ogni camera

  • Grande sala all'ultimo piano con camino

  • Cucina a vista con posti a sedere al bar

  • Balcone privato con vista sul tramonto

  • Elegante bagno di servizio con vista sull'oceano

  • Suite principale con bagno interno e porta del fienile personalizzata

  • Doccia in vetro con sfondo costiero

  • Ampio garage per due auto con pavimenti in resina epossidica

  • Sistema di aspirazione centralizzato per la massima comodità

  • Pronto per essere abitato con moquette fresca e parquet rifinito

Continua a esplorare le raccolte correlate