Serene and Stately Residence
2020 Knollwood Road, Lake Forest, Illinois, 60045, USA
Listed by: Andra O'Neill | @properties Christie’s International Real Estate
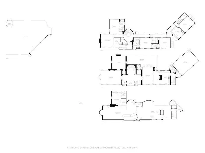
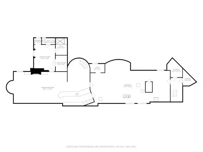
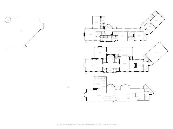
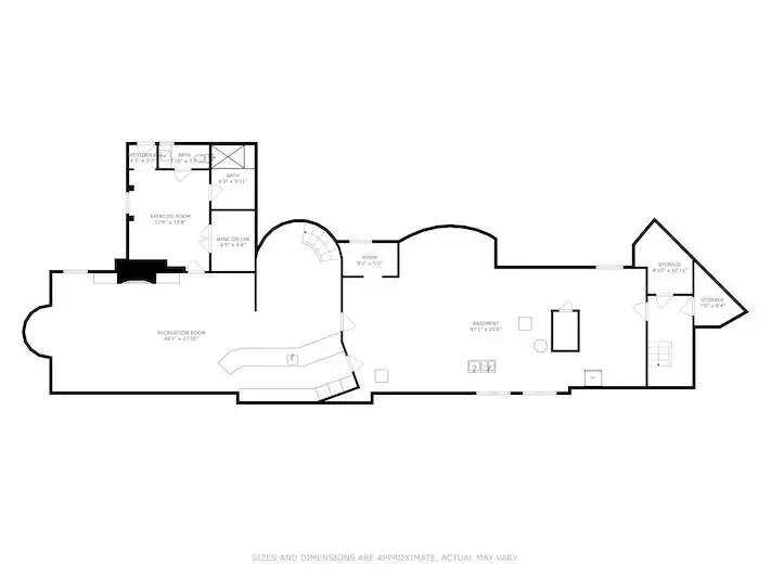
Discover authentic Lake Forest charm in this serene and stately residence, nestled within the prestigious Knollwood Country Club. This remarkable home boasts 5 bedrooms, 6 full baths and 2 half baths, seamlessly blending historical significance with modern amenities. A grand foyer greets you with its welcoming ambiance and charming bar area leading to expansive formal spaces and cozy nooks ideal for both grand celebrations and intimate gatherings. The Living Room, highlighted by a large bay window and lovely fireplace, flows into a beautiful library with pine-paneled walls. The kitchen is ideal for every chef, featuring white inset cabinets, marble countertops, high-end appliances, and a charming fireplace. A sunlit family room offers space for both dining and lounging, bathed in warm sunlight. Stunning wood features, arches and gorgeous details are integral throughout the home. Hardwood floors grace the main and second levels, complemented by exquisite ceiling moldings and a custom circular bookcase with a cozy reading nook at the top of the stairway. The second level hosts five ensuite bedrooms plus an office. This includes a luxurious primary suite complete with a fireplace and a spa-like bathroom featuring a marble shower, soaking tub, makeup vanity, and double sinks. The guest suite has outdoor access via a staircase leading to the backyard. The phenomenal basement is an entertainer's dream, showcasing a mahogany bar with a sink, dishwasher, beverage and wine fridges, along with a dedicated wine room. The space also includes an exercise room with a steam shower and a theatre area with surround sound and its own fireplace, plus access to the backyard. Set on just over 3.5 acres, the exterior boasts impeccable landscaping, a bluestone patio, elegant lighting, and a soothing fountain, creating an enchanting environment for outdoor enjoyment.
Highlights:
Marble countertops
Pine-panelled library
Custom circular bookcase
Listed by Andra O'Neill | @properties Christie’s International Real Estate
Highlights:
Marble countertops
Pine-panelled library
Custom circular bookcase
Spa-like bathroom with marble shower
Wine room
Surround sound theatre area