Letti: 4
Bagni:2 Interi | 1 Mezzo

354 Grayfriars Lane, Inverness, Illinois, 60067, USA

Inserito da: Denise Curry | Baird & Warner

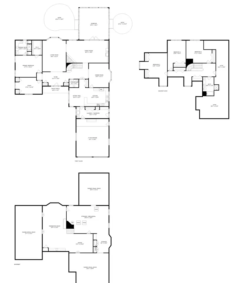
Location and Quality are the theme of this stunning French country style home! It was built in 1973 by Richard Kessler with a four season room addition by Robert Parker Coffin in 1983. The all brick home sits on a cul-de-sac in McIntosh of Inverness, on a most desirable lot of over 1 acre. The owners took pride in constructing and designing the home of their dreams and made sure that all of the crown moldings and baseboards had substantial size equal to the magnanimous style and size of the home. Enter into the marbled foyer and take in the beautiful views of the back yard through the formal living room. The first floor primary suite and study are to the left of the entry. The primary bathroom was recently remodeled by the acclaimed Abruzzo Kitchen and Bath company. A large walk in closet features built-in storage. The formal dining space is to the right of the entry. It has beautiful parquet floors, floor to ceiling windows and can seat 10 to 12 guests easily. The large kitchen has polished wood floors, updated stainless steel appliances, and a large eat in area with a beautiful window allowing natural light to flow through all day long. Adjacent to the kitchen is the laundry/mud room. The washer/dryer were purchased in 2024, and there are cabinets and two large closets for tons of storage. The cozy family room is perfect for entertaining with it's charming stone fireplace. A built-in wet bar with beverage refrigerator provides for a lively evening with friends and family. The shelves around the wet bar add character and a wonderful place to display your barware or books. As you walk up the beautiful, custom stairway you will find three large bedrooms with ample closets and extra large windows. There is one large bathroom and a walk-in attic. The four season room adds another WOW factor to this gorgeous home. Windows on all three sides bring the greenery of the outdoors inside. Both paver patios are accessed by sliding doors and each patio is professionally landscaped with mature trees providing privacy. The basement was recently upgraded and has a terrific recreation room with luxury vinyl flooring that can withstand any kind of play! There are cedar closets and plenty of storage in the back area of the basement. Amenities are as follows: 3 furnaces, 3 AC's and reverse osmosis water system. Hot water heater replaced in 2020 and the cedar shake roof was replaced in 2019. If LOCATION AND QUALITY are on your list, this home is for you!
Mostra altro Mostra meno

Location and Quality are the theme of this stunning French country style home! It was built in 1973 by Richard Kessler with a four season room addition by Robert Parker Coffin in 1983. The all brick home sits on a cul-de-sac in McIntosh of Inverness, on a most desirable lot of over 1 acre. The owners took pride in constructing and designing the home of their dreams and made sure that all of the crown moldings and baseboards had substantial size equal to the magnanimous style and size of the home. Enter into the marbled foyer and take in the beautiful views of the back yard through the formal living room. The first floor primary suite and study are to the left of the entry. The primary bathroom was recently remodeled by the acclaimed Abruzzo Kitchen and Bath company. A large walk in closet features built-in storage. The formal dining space is to the right of the entry. It has beautiful parquet floors, floor to ceiling windows and can seat 10 to 12 guests easily. The large kitchen has polished wood floors, updated stainless steel appliances, and a large eat in area with a beautiful window allowing natural light to flow through all day long. Adjacent to the kitchen is the laundry/mud room. The washer/dryer were purchased in 2024, and there are cabinets and two large closets for tons of storage. The cozy family room is perfect for entertaining with it's charming stone fireplace. A built-in wet bar with beverage refrigerator provides for a lively evening with friends and family. The shelves around the wet bar add character and a wonderful place to display your barware or books. As you walk up the beautiful, custom stairway you will find three large bedrooms with ample closets and extra large windows. There is one large bathroom and a walk-in attic. The four season room adds another WOW factor to this gorgeous home. Windows on all three sides bring the greenery of the outdoors inside. Both paver patios are accessed by sliding doors and each patio is professionally landscaped with mature trees providing privacy. The basement was recently upgraded and has a terrific recreation room with luxury vinyl flooring that can withstand any kind of play! There are cedar closets and plenty of storage in the back area of the basement. Amenities are as follows: 3 furnaces, 3 AC's and reverse osmosis water system. Hot water heater replaced in 2020 and the cedar shake roof was replaced in 2019. If LOCATION AND QUALITY are on your list, this home is for you!

Punti salienti:

  • Marbled foyer

  • Mobili su misura

  • camino in pietra

  • Formal dining with floor-to-ceiling windows

  • Custom stairway

  • Four season room

  • Professionally landscaped paver patios

  • Recreation room with luxury vinyl flooring

  • Armadi in cedro

  • Sistema di osmosi inversa dell'acqua

  • Mostra altro Mostra meno
ID di riferimento:12444940 ID Web:rhwz

Inserito da Denise Curry | Baird & Warner

Contact by phone:  708-502-0008
Modulo di contatto e-mail:

Punti salienti:

  • Marbled foyer

  • Mobili su misura

  • camino in pietra

  • Formal dining with floor-to-ceiling windows

  • Custom stairway

  • Four season room

  • Professionally landscaped paver patios

  • Recreation room with luxury vinyl flooring

  • Armadi in cedro

  • Sistema di osmosi inversa dell'acqua