1930s Duplex with Modern Updates and Potential
3416 Audubon Place, Houston, Texas, 77006, USA
Listed by: Jennifer Puls | Greenwood King Properties
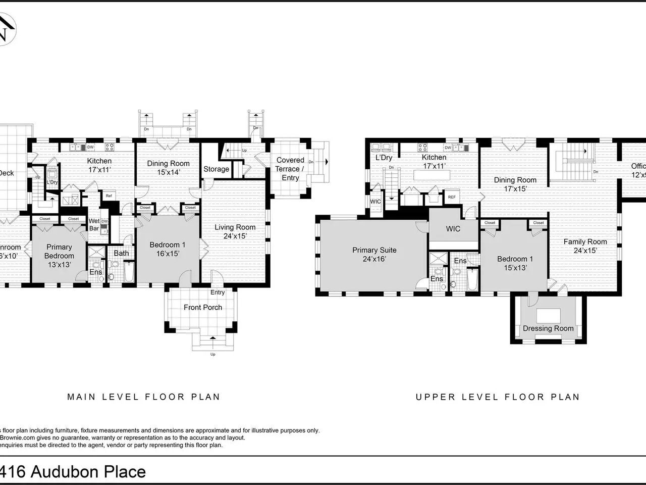
Spectacular opportunity to live/work, invest for rental income, or convert to a single family residence in beautiful Audubon Place. Located in the heart of vibrant Montrose, this enormous 1930 (HCAD) up/down duplex has endless potential and so much space to work with! Dedicated exterior entrances to each unit. Upstairs unit is approximately 2500 sf, with 2 bedrooms, 2 en-suite baths, and dedicated office space off the spacious living area. Plentiful closet space, a dedicated dressing room, and laundry area off the kitchen. The downstairs unit contains 2 beds, 2 en-suite baths, in unit laundry, and the primary bedroom has an attached sunroom. Downstairs can also be separated into two units, as the wet bar area can be used as a kitchenette and there are separate outdoor entrances to each side. Enjoy the green space of the freshly landscaped front & side yard with recent automated sprinkler system (2025), all under the graceful canopy of a breathtaking live oak tree. All info per Seller.
Highlights:
Enormous 1930 duplex with dedicated exterior entrances
Spacious living area with custom dressing room
Dedicated office space and laundry area
Listed by Jennifer Puls | Greenwood King Properties
Highlights:
Enormous 1930 duplex with dedicated exterior entrances
Spacious living area with custom dressing room
Dedicated office space and laundry area
Attached sunroom in primary bedroom
Freshly landscaped front & side yard with automated sprinkler system