Letti: 6
Bagni:4 Interi | 1 Mezzo

1732 North Winchester Avenue, Chicago, Illinois, 60622, USA

Inserito da: Lucas Blahnik | @properties Christie's International Real Estate

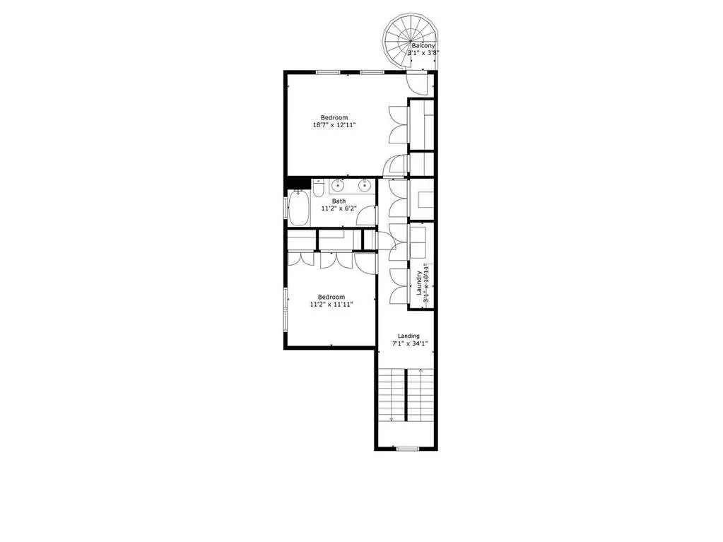
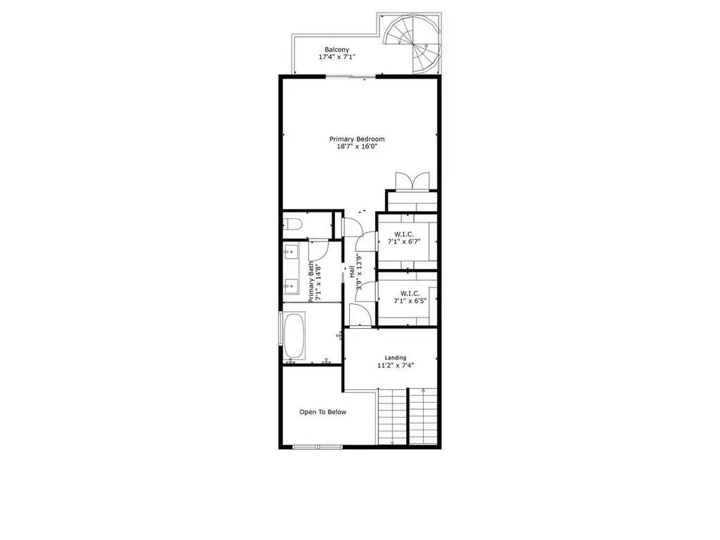
Wonderfully modern, six bedroom home in the perfect Bucktown location! This unique floorplan allows for light to flood the entire home and offers architectural details everywhere. At the front of the home is a secluded office and powder room with a formal living room above that overlooks Winchester with floor to ceiling windows. The main level has a large dining room with a huge skylight stories above, an updated kitchen with quartzite countertops and a full wet bar, and a spacious family room at the rear of the home where you can step outside directly at grade to a multi-level outdoor space. One level up is a huge primary suite that includes a fully renovated bathroom with separate shower and tub, double vanity, heated floors, and more. Additionally enjoy a balcony, three closets including two full walk-ins. The next bedroom is the perfect guest suite with an on-suite bathroom, followed by two more bedrooms and side by side laundry. The stairs take you up to the roof where there is the opportunity to build out a roofdeck with great city views. The lower level includes a large recreation room and huge bedroom with an on-suite bathroom or place to create an incredible home gym. This location can't be beat and is walkable to everything Bucktown and Wicker Park offer, the 606, shopping, dining, Churchill Park and the Blue Line!
Mostra altro Mostra meno

Wonderfully modern, six bedroom home in the perfect Bucktown location! This unique floorplan allows for light to flood the entire home and offers architectural details everywhere. At the front of the home is a secluded office and powder room with a formal living room above that overlooks Winchester with floor to ceiling windows. The main level has a large dining room with a huge skylight stories above, an updated kitchen with quartzite countertops and a full wet bar, and a spacious family room at the rear of the home where you can step outside directly at grade to a multi-level outdoor space. One level up is a huge primary suite that includes a fully renovated bathroom with separate shower and tub, double vanity, heated floors, and more. Additionally enjoy a balcony, three closets including two full walk-ins. The next bedroom is the perfect guest suite with an on-suite bathroom, followed by two more bedrooms and side by side laundry. The stairs take you up to the roof where there is the opportunity to build out a roofdeck with great city views. The lower level includes a large recreation room and huge bedroom with an on-suite bathroom or place to create an incredible home gym. This location can't be beat and is walkable to everything Bucktown and Wicker Park offer, the 606, shopping, dining, Churchill Park and the Blue Line!

Punti salienti:

  • Floor-to-ceiling windows overlooking Winchester

  • Updated kitchen with quartzite countertops and wet bar

  • Multi-level outdoor space with direct grade access

  • Fully renovated primary bathroom with heated floors

  • Roofdeck opportunity with city views

  • On-suite guest bedroom

  • Side by side laundry

  • Recreation room on lower level

  • Walkable to Bucktown and Wicker Park amenities

  • Blue Line accessibility

  • Mostra altro Mostra meno
ID di riferimento:12459999 ID Web:nbxp

Inserito da Lucas Blahnik | @properties Christie's International Real Estate

Modulo di contatto e-mail:

Punti salienti:

  • Floor-to-ceiling windows overlooking Winchester

  • Updated kitchen with quartzite countertops and wet bar

  • Multi-level outdoor space with direct grade access

  • Fully renovated primary bathroom with heated floors

  • Roofdeck opportunity with city views

  • On-suite guest bedroom

  • Side by side laundry

  • Recreation room on lower level

  • Walkable to Bucktown and Wicker Park amenities

  • Blue Line accessibility